Large Georgian freehold building with parking and conversion potential, available immediately.
Substantial freehold building about 4,454 sq ft
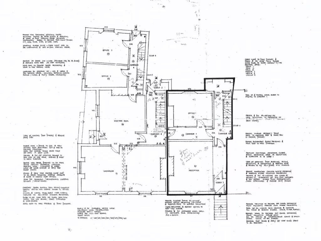
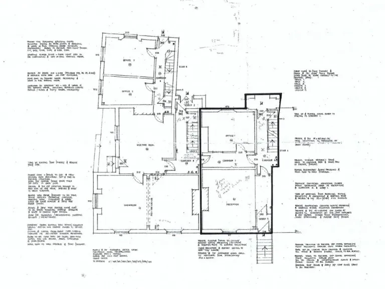
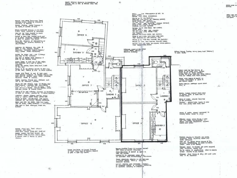
A substantial freehold commercial building in Wakefield city centre offering immediate vacant possession and clear development potential. The Georgian brick property extends to approximately 4,454 sq ft across basement and two/three storeys, with large rooms and high ceilings that suit conversion to residential units or continued commercial use.
Key value drivers include an on-site forecourt/car park with space for around 10 vehicles, excellent road and motorway links, and a short walk to Westgate Railway Station. Services are in place (gas central heating) and the building footprint and floorplates are medium-to-large, easing reconfiguration for multiple uses.
Important cautions: conversion to residential use is subject to obtaining necessary planning consent and any buyer must verify permissions. The area records high crime levels and local deprivation, which may affect tenanted values or sales yield. The property will require refurbishment works to meet modern residential or LET standards and EPCs for the referenced units vary (one listed as E-122, another C-58), so energy-performance upgrades are likely.
This opportunity suits developers or investors seeking a mid-market urban project with parking and transport advantages. Carry out formal surveys, measured floorplans and pre-application planning discussions to confirm scope, costs and viability before exchange.
Office for sale in 19 Cheapside, Wakefield, WF1 2SD, WF1 — £525,000 • 1 bed • 1 bath • 6580 ft²
Office for sale in Bond Terrace, Wakefield, WF1 — £385,000 • 1 bed • 1 bath • 2700 ft²
Office for sale in 20-22 Cheapside, Wakefield, WF1 2TF, WF1 — £350,000 • 1 bed • 1 bath • 3350 ft²
Office for sale in Stanley Road, Wakefield, West Yorkshire, WF1 — £149,950 • 1 bed • 1 bath • 653 ft²
Office for sale in 5-7 Cliff Parade, Wakefield, WF1 2TA, WF1 — £395,000 • 1 bed • 1 bath • 2604 ft²
Office for sale in The Springs, Wakefield, West Yorkshire, WF1 — £175,000 • 1 bed • 1 bath • 1471 ft²










































