Grade II listed 17th-century cottage on 0.54 acres with planning potential and strong period character.
Grade II listed 17th-century cottage with strong original features
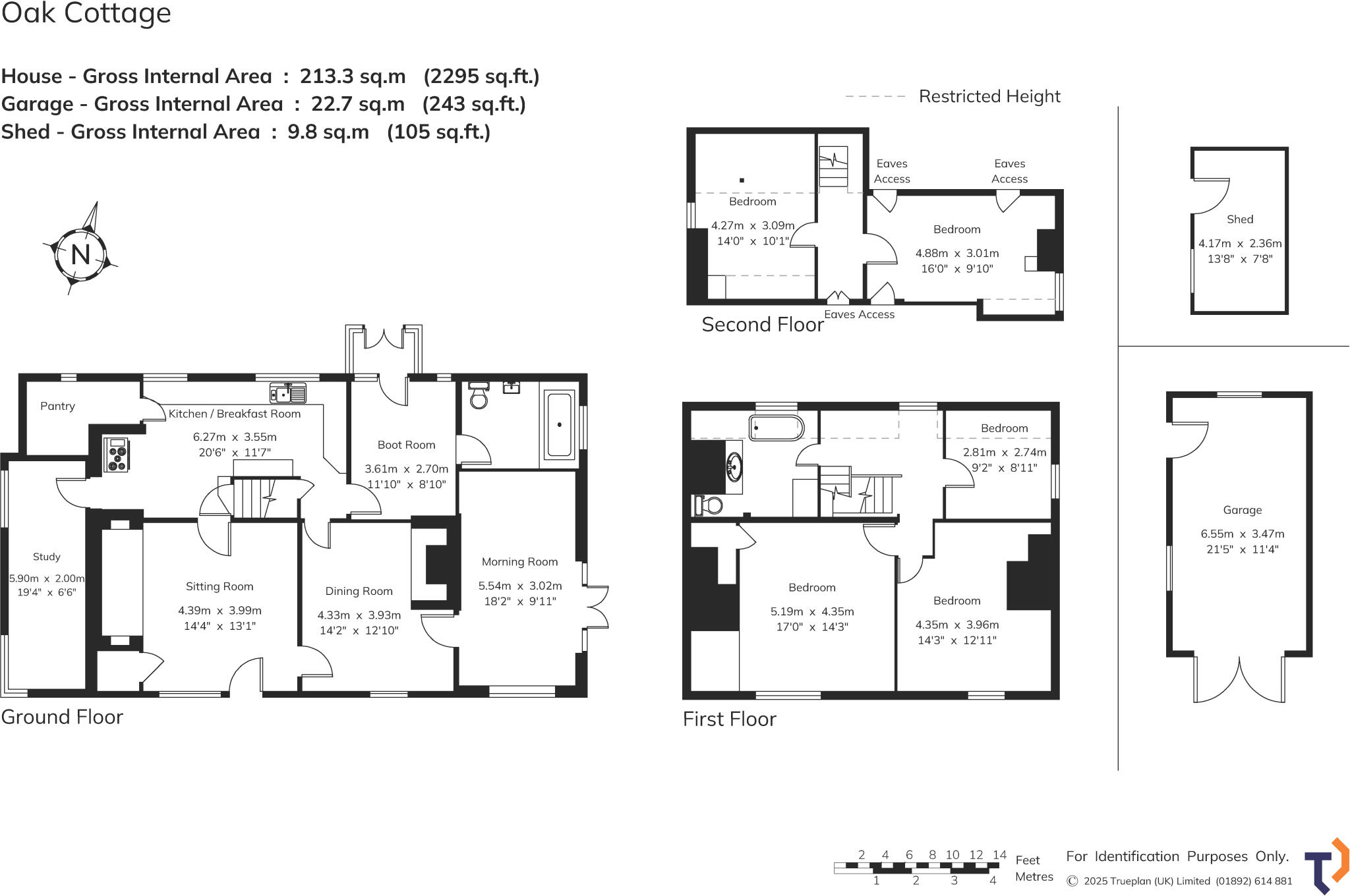
Five bedrooms across three floors; two bathrooms only
Around 0.54 acre mature gardens with greenhouse and workshop
Planning permission to extend garage and add room above (RR/2024/956/P)
Electric eco-smart radiators controllable by app, no gas central heating
Second-floor bedrooms have restricted headroom and low ceilings
Detached timber garage and off-street gravel parking for several cars
Listed status may restrict alterations and increase maintenance costs
Oak Cottage is a Grade II listed 17th-century detached cottage set on around 0.54 acres of well-established gardens, offering a character-filled family home in quiet Peasmarsh countryside. Original timbers, inglenook fireplaces and exposed floorboards give the house strong period charm while later extensions provide generous living space across three floors.
The accommodation includes five bedrooms, two bathrooms and a collection of reception rooms — kitchen/breakfast room with pantry, dining room, morning room, study and boot room — arranged for flexible family living. Every bedroom looks out over adjacent farmland; the second-floor rooms have restricted headroom and useful eaves storage.
Practical features include electric eco-smart radiators controllable by app, a greenhouse, timber workshop/shed, gravel driveway with off-street parking and a detached timber garage. Planning permission has been granted to extend the garage and add a room above, useful if you need more covered parking or ancillary space.
Important considerations: the property’s listed status means repairs, alterations and some extensions will require listed-building consent, which can complicate and add cost. There are only two bathrooms for five bedrooms, and attic bedrooms have low ceilings. Council tax is described as quite expensive. Mobile signal and broadband are average — acceptable for rural living but worth checking if you work from home.
In short, Oak Cottage will suit a family or buyer seeking a historic country home with generous gardens and planning potential, willing to manage the responsibilities and constraints of a listed property.
 3 bedroom cottage for sale in Hog Hill, Winchelsea, East Sussex TN36 4AH, TN36 — £725,000 • 3 bed • 2 bath • 1866 ft²
 3 bedroom cottage for sale in Hog Hill, Winchelsea, East Sussex TN36 4AH, TN36 — £725,000 • 3 bed • 2 bath • 1866 ft² 3 bedroom house for sale in Main Street, Peasmarsh, East Sussex TN31 6SP , TN31 — £399,950 • 3 bed • 2 bath • 1175 ft²
 3 bedroom house for sale in Main Street, Peasmarsh, East Sussex TN31 6SP , TN31 — £399,950 • 3 bed • 2 bath • 1175 ft² 4 bedroom detached house for sale in High Street, Hawkhurst, Cranbrook, Kent, TN18 — £895,000 • 4 bed • 2 bath • 1792 ft²
 4 bedroom detached house for sale in High Street, Hawkhurst, Cranbrook, Kent, TN18 — £895,000 • 4 bed • 2 bath • 1792 ft² 5 bedroom detached house for sale in Maytham Road, Rolvenden Layne, TN17 — £595,000 • 5 bed • 2 bath • 2327 ft²
 5 bedroom detached house for sale in Maytham Road, Rolvenden Layne, TN17 — £595,000 • 5 bed • 2 bath • 2327 ft² 2 bedroom end of terrace house for sale in High Street, Hawkhurst, TN18 — £310,000 • 2 bed • 1 bath • 821 ft²
 2 bedroom end of terrace house for sale in High Street, Hawkhurst, TN18 — £310,000 • 2 bed • 1 bath • 821 ft² 4 bedroom cottage for sale in Station Road, Lydd, TN29 — £250,000 • 4 bed • 2 bath • 500 ft²
 4 bedroom cottage for sale in Station Road, Lydd, TN29 — £250,000 • 4 bed • 2 bath • 500 ft²






















































