PR3 2AN - 3 bed village family home in Cumeragh Lane, PR3 2AN

View on Property Piper

3 bedroom semi-detached house for sale in Cumeragh Lane, Whittingham, PR3 2AN, PR3

Summary - Cumeragh Lane, Whittingham, PR3 2AN PR3 2AN

3 bed 1 bath Semi-Detached

Modern, compact family living with garden and two parking spaces.
New-build three-bedroom semi-detached home
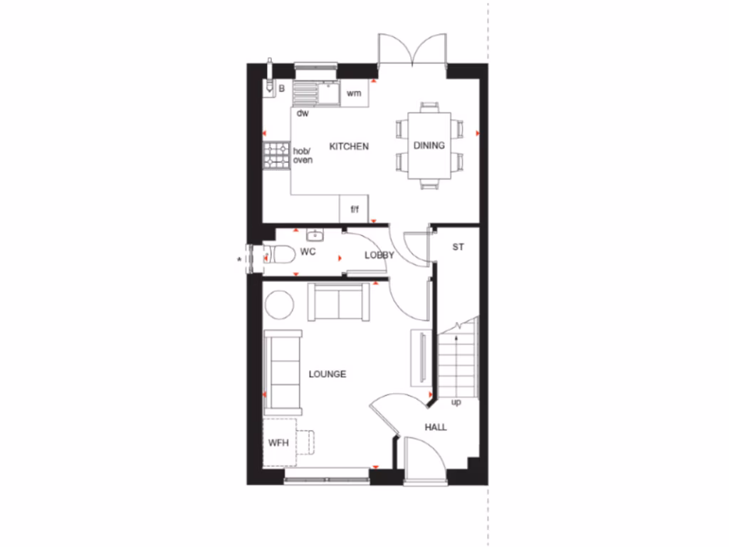
A bright three-bedroom semi-detached new build arranged over a traditional layout, designed for comfortable family life. The ground floor offers a spacious lounge and a large open-plan kitchen/dining area with French doors that lead directly to a sizable garden — ideal for family meals and playtime. The main bedroom benefits from an en suite shower room; two further bedrooms and a family bathroom meet everyday needs.

Practical extras include a ground-floor WC, dedicated storage, and off-street parking for two cars. The purchase can include a kitchen upgrade, and the developer is offering up to £12,200 deposit contribution or a 105% Part Exchange option, which may suit buyers seeking a straightforward move.

Be aware of material limitations: the home’s overall internal size is modest (approx. 674 sq ft), which means living and storage space is tighter than larger family homes. Broadband speeds in the area are reported as very slow, and the wider locality scores as deprived with an ageing rural population — factors to consider if remote working or strong local services are priorities. Tenure is not specified and should be confirmed.

Located in a quiet village development with nearby good-rated primary schools and a communal green, this house will suit first-time parents or young families seeking a modern, low-maintenance home with easy parking and outdoor space. View the show home to assess layout and proportions in person.

Property Details

Brochure Descriptions

Image Descriptions

Floorplan Description

Rooms

Textual Property Features

Target Audience

AI Tags

Detected Visual Features

Nearby Schools

Nearest Bars And Restaurants

,,,,}

Nearest General Shops

,,}

Nearest Grocery shops

,,}

Nearest Supermarkets

,,}

Nearest Religious buildings

,,}

Nearest Medical buildings

,,,}

Nearest Leisure Facilities

,,,,}

Nearest Tourist attractions

,,}

Nearest Train stations

,,,,}

Nearest Bus stations and stops

,,,,}

Nearest Hotels

,,}

Tags

Local Market Stats

Similar Properties

Meta

High Res Images

Compatible Images

Low res Images

Thumbnails

Raw Images

High Res Floorplan Images

Compatible Floorplan Images

Low res Floorplan Images

FloorplanImages Thumbnail

Raw Floorplan Images