PR3 2NA - 3 bed modern three bedroom home in Inglewhite Road, PR3 2NA

View on Property Piper

3 bedroom semi-detached house for sale in Bowland Meadow, chipping Lane, Longridge, PRESTON, LANCASHIRE, PR3 2NA, PR3

Summary - Bowland Meadow, chipping Lane, Longridge, PRESTON, LANCASHIRE, PR3 2NA PR3 2NA

3 bed 1 bath Semi-Detached

Energy-efficient three-bed with garden and two-car parking — help available towards your deposit..
Up to £12,500 deposit contribution or 105% part-exchange available
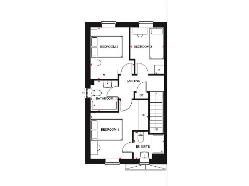
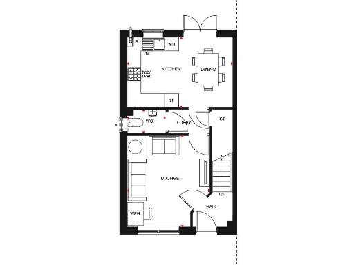
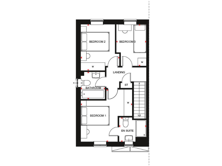
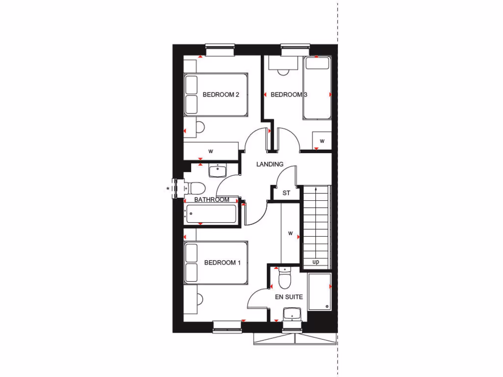
A bright new-build semi-detached home arranged over two floors, well suited to a growing family or first-time buyers seeking low-maintenance living on the edge of Longridge. The ground floor offers a generous open-plan kitchen/dining area with French doors out to a decent private garden, plus a comfortable lounge and a handy ground-floor WC. Upstairs the main bedroom benefits from an en suite; there is a second double, a single bedroom and a family bathroom.

Practical points that add value: off-street parking for two cars, contemporary integrated kitchen, and built-in eco-benefits that reduce running costs. The house is compact at about 697 sq ft, so rooms are efficient rather than expansive – the layout suits everyday family life but will feel snug with large furniture.

Help with moving costs is available: up to £12,500 deposit contribution or 105% part-exchange, which could speed a sale or help buyers move in quickly. Broadband and mobile signal are strong and local amenities include shops, a supermarket and leisure facilities within easy reach.

Notable considerations: the property is new build with an unknown tenure and sits in a small town fringe location; buyers should confirm tenure and any estate management arrangements. School options are mixed locally — there are good primary schools nearby but some secondary provision is rated as requiring improvement. Overall this is a practical, energy-efficient three-bedroom home for buyers prioritising modern finishes, convenience and low-maintenance living over large living spaces.

Property Details

Image Descriptions

Floorplan Description

Rooms

Textual Property Features

Target Audience

AI Tags

Detected Visual Features

Nearby Schools

Nearest Bars And Restaurants

,,,,}

Nearest General Shops

,,}

Nearest Grocery shops

,,}

Nearest Supermarkets

,,}

Nearest Religious buildings

,,}

Nearest Medical buildings

,,,}

Nearest Leisure Facilities

,,,,}

Nearest Tourist attractions

,,}

Nearest Train stations

,,,,}

Nearest Bus stations and stops

,,,,}

Nearest Hotels

,,}

Tags

Local Market Stats

AirBnB Data

Similar Properties

Meta

High Res Images

Compatible Images

Low res Images

Thumbnails

Raw Images

High Res Floorplan Images

Compatible Floorplan Images

Low res Floorplan Images

FloorplanImages Thumbnail

Raw Floorplan Images