Large plot and period features, ideal for a restorative family project near town.
Grade II listed five-bedroom period house over four floors
Large plot with front, side and rear gardens and garage
Off-street parking; short walk to Whitehaven town centre
Needs substantial renovation and modernisation throughout
Stone walls likely uninsulated — thermal upgrades required
Listed status will restrict alterations and complicate works
Basement with three rooms — potential but may need structural work
Mains gas boiler installed; double glazing age unknown
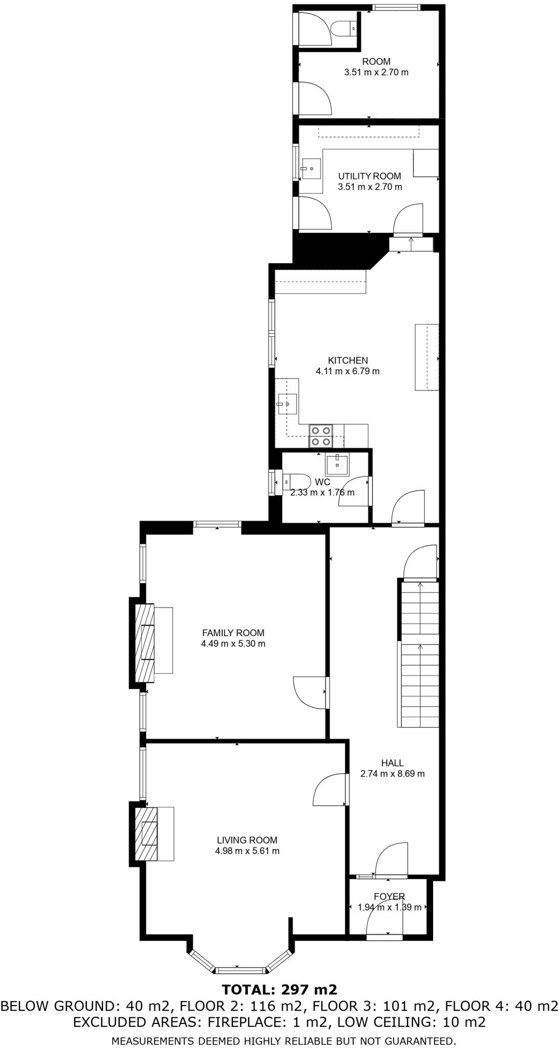
A substantial five-bedroom Grade II listed semi-detached house arranged over four floors, offering generous period rooms, tall ceilings and sweeping panoramic views. The property sits on a large plot with front, side and rear gardens plus off-street parking and a garage — a rare package so close to Whitehaven town centre.
This is a renovation project: the house requires significant work and modernisation throughout. Original features such as fireplaces, large sash-style windows and high ceilings remain, giving a strong base for restoration, but the building’s listed status will affect what can be changed and may complicate works and costs. Walls are of granite/whinstone and assumed uninsulated, so thermal upgrades will be needed.
Layout benefits a large family, with multiple reception rooms, five bedrooms, a basement level with three rooms, and several bathrooms including en-suite facilities. The mains gas boiler and radiators provide central heating; glazing is double but install date is unknown. Broadband is average and mobile signal is excellent, while local crime levels are low and nearby schools are well-rated.
This property suits a buyer seeking a characterful family home or a sympathetic restoration project with scope to add value. Be prepared for listed-building consent, comprehensive renovation costs and modern insulation/heating upgrades before the house reaches its full potential.
6 bedroom semi-detached house for sale in Inkerman Terrace, Whitehaven, CA28 — £200,000 • 6 bed • 2 bath • 3262 ft²
6 bedroom semi-detached house for sale in Inkerman Terrace, Whitehaven, CA28 — £200,000 • 6 bed • 2 bath • 2530 ft²
5 bedroom detached house for sale in Hensingham Road, Whitehaven, Cumbria, CA28 — £250,000 • 5 bed • 2 bath • 2445 ft²
3 bedroom detached house for sale in Sneckyeat Road, Whitehaven, Cumbria, CA28 — £260,000 • 3 bed • 1 bath
5 bedroom terraced house for sale in High Street, Whitehaven, CA28 — £250,000 • 5 bed • 2 bath • 1733 ft²
3 bedroom end of terrace house for sale in Brayton Terrace, Whitehaven, CA28 6BT, CA28 — £160,000 • 3 bed • 1 bath • 1268 ft²


































































































































