LN13 9GF - 2 bed quiet village bungalow in Mumby Meadows, LN13 9GF

View on Property Piper

2 bedroom detached bungalow for sale in Mumby Meadows, Mumby, Alford, LN13 9GF, LN13

Summary - 26 MUMBY MEADOWS MUMBY ALFORD LN13 9GF

2 bed 1 bath Detached Bungalow

Single-floor living with enclosed garden and garage near coastal towns.
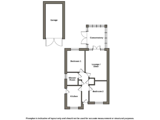
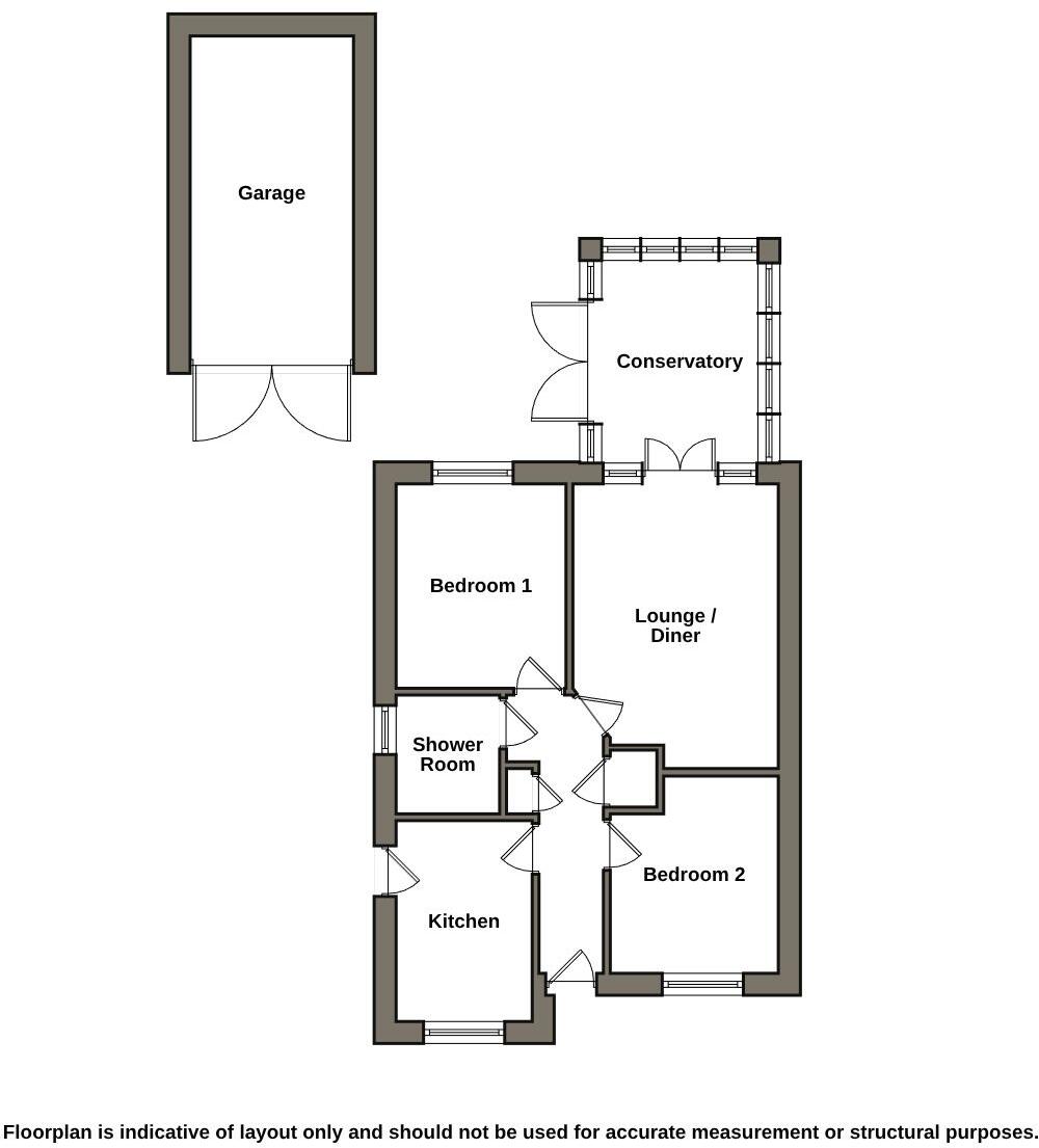
- Link-detached single-storey bungalow with two double bedrooms
- Lounge-diner opening to conservatory, ideal for relaxed living
- Fully enclosed rear garden, gated; good for pets
- Garage with power and lighting; driveway side access
- Oil-fired central heating; boiler stored in airing cupboard
- Small overall size (approx 593 sq ft); compact rooms
- Slow broadband speeds; limited digital connectivity
- Village location with few local services; quiet but remote
This link-detached bungalow in Mumby offers single-storey living in a quiet village setting, well suited for downsizers or couples wanting low-maintenance accommodation. The layout includes a generous lounge-diner opening to a conservatory, two double bedrooms and a practical kitchen with side access to the driveway. A single garage with power and lighting and a fully enclosed rear garden provide useful storage and outside space for pets or hobby gardening.

The property is heated by an oil-fired boiler with radiators and has double glazing (installed before 2002). The conservatory has an opaque roof to control temperature but is compact, so the main living space remains the lounge-diner. There is loft access via fitted ladders and useful built-in storage and an airing cupboard housing the boiler.

Practical drawbacks to note: total floor area is small (around 593 sq ft), broadband speeds are slow, and heating relies on oil rather than mains gas, which may affect running costs and supply considerations. The local area is a small rural village with limited services but good road links to nearby towns. Council tax is described as cheap and flood risk is low.

Overall this bungalow offers an uncomplicated, comfortable base for those seeking village life with manageable outdoor space and garage parking. It will particularly suit buyers prioritising single-level living and a peaceful location, although buyers sensitive to energy costs or requiring high-speed internet should factor those limitations into their decision.

Property Details

Brochure Descriptions

Image Descriptions

Floorplan Description

Rooms

Textual Property Features

Target Audience

AI Tags

Detected Visual Features

EPC Details

Nearby Schools

Nearest Bars And Restaurants

,,,,}

Nearest General Shops

,,}

Nearest Grocery shops

,,}

Nearest Supermarkets

,,}

Nearest Religious buildings

,,}

Nearest Medical buildings

,,,}

Nearest Leisure Facilities

,,,,}

Nearest Tourist attractions

,,}

Nearest Train stations

,,,,}

Nearest Bus stations and stops

,,,,}

Nearest Hotels

,,}

Tags

Local Market Stats

Similar Properties

Meta

High Res Images

Compatible Images

Low res Images

Thumbnails

Raw Images

High Res Floorplan Images

Compatible Floorplan Images

Low res Floorplan Images

FloorplanImages Thumbnail

Raw Floorplan Images