**Standout Features:**
- Three centrally located character office units
- Huge potential for refurbishment, conversion or change of use (subject to planning)
- Convenient off-street parking
- Flexible layouts conducive for various business operations
- Unit B currently let for £10,000 pa, providing immediate rental income
- Historic charm in Old Hatfield, undergoing rejuvenation
**Summary:**
Discover an exceptional investment opportunity with this expansive commercial property located in the historic Old Hatfield area. Comprising three independent mews-style office units, the versatile layout offers multiple workspaces, each with its own entrance, kitchen, and washroom facilities. Benefiting from abundant natural light through dual aspect windows, these sizable offices are ideal for a wide array of uses, including potential conversion into HMOs (subject to planning) or further commercial development.
While the property requires renovation, it presents a blank canvas tailored to your vision. The off-street parking accommodates at least five vehicles, ensuring accessibility for clients and staff. Old Hatfield is not only rich in character, boasting restaurants and independent shops, but is also undergoing an exciting revitalization, enhancing the area’s allure and future value. With a freehold title and auction terms, opportunities like this are rare—seize the potential before it’s gone!
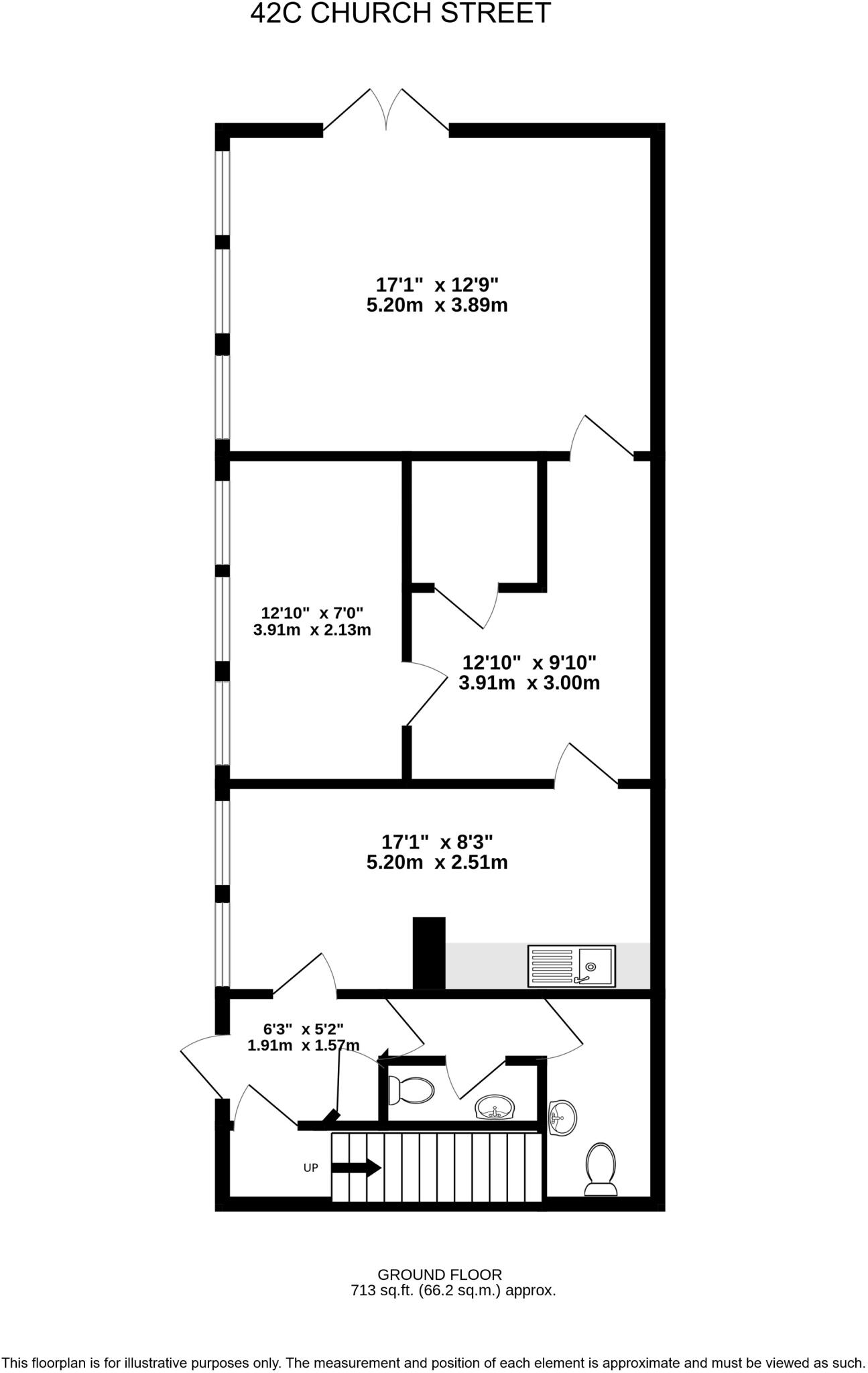
Office for sale in 42 A, B, C, Church Street, Hatfield, Hertfordshire, AL9 5AW, AL9 — £499,950 • 1 bed • 1 bath • 2196 ft²
Office for sale in 25 Park Street, Hatfield, Hertfordshire, AL9 5AT, AL9 — £300,000 • 1 bed • 1 bath • 572 ft²
Office for sale in 20 The Causeway, Bishops Stortford, Herts, CM23 — £375,000 • 1 bed • 1 bath • 2715 ft²
Office for sale in Hadham House and 3-7 Church Street, Bishop's Stortford, Hertfordshire, CM23 2LY, CM23 — £975,000 • 1 bed • 1 bath • 3163 ft²
Retail property retail park for sale in 29 Salisbury Square, Hatfield, Hertfordshire, AL9 — £595,000 • 1 bed • 1 bath • 650 ft²
Office for sale in 24 Hockerill Court, London Road, Bishop's Stortford, Hertfordshire, CM23 5SB, CM23 — £450,000 • 1 bed • 1 bath • 1292 ft²


























































