Large garden, excellent schools and commuter links with scope to extend.
Victorian period features including fireplaces and high ceilings
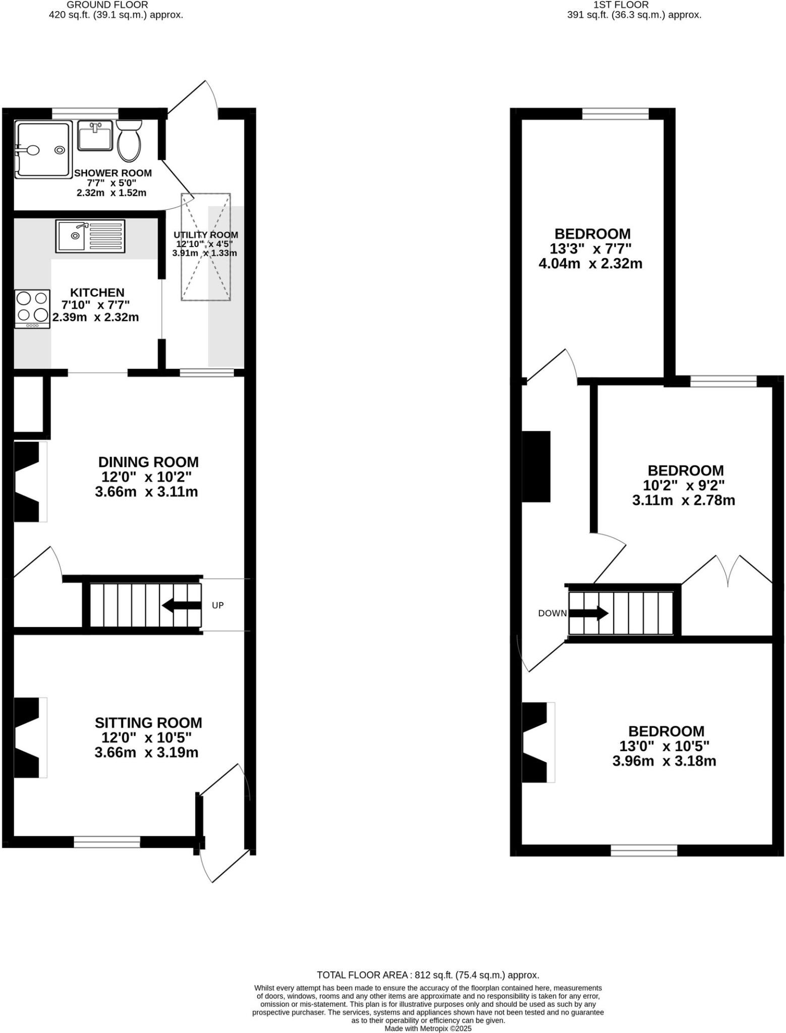
Open-plan kitchen/diner with modern fitted units
Three double bedrooms across two floors
Large rear garden and patio, decent plot size
Downstairs shower room and separate utility room
Slow broadband speeds reported; may affect remote working
Solid brick walls assumed uninsulated; consider insulation works
Single bathroom only; families may need more facilities
This Victorian three-bedroom house combines original character with practical family living. High ceilings and period fireplaces give the reception rooms charm, while an open-plan kitchen/dining room provides a social hub for everyday life and entertaining.
Accommodation includes a cosy living room, a useful downstairs shower room and a separate utility room — convenient for a busy household. Three double bedrooms upstairs offer good sleeping space and flexible use; there is scope to extend subject to planning permission if you need more room.
Outside, a large rear garden and patio deliver private outdoor space for children and entertaining. The location is a strong selling point: close to reputable primary and secondary schools, a mainline station and near the M25 for commuter journeys.
Practical considerations: broadband speeds are reported as slow, the property’s solid brick walls are assumed to lack insulation, and there is one shower room only. The home is average-sized for its type and will suit buyers prepared to update or improve aspects such as insulation and connectivity to modern standards.
3 bedroom semi-detached house for sale in Hardwick Road, Redhill, RH1 — £450,000 • 3 bed • 1 bath • 705 ft²
3 bedroom semi-detached house for sale in Tandridge Lane, Lingfield, RH7 — £775,000 • 3 bed • 3 bath • 1967 ft²
2 bedroom terraced house for sale in Station Road, Lingfield, RH7 — £400,000 • 2 bed • 1 bath • 1033 ft²
3 bedroom semi-detached house for sale in Turners Hill Road, Crawley Down, RH10 — £425,000 • 3 bed • 1 bath • 1023 ft²
3 bedroom house for sale in Charlesfield Road, Horley, Surrey, RH6 — £400,000 • 3 bed • 2 bath • 969 ft²
3 bedroom semi-detached house for sale in Barrow Green Road, Oxted, Surrey, RH8 — £895,000 • 3 bed • 2 bath • 1335 ft²














































