Characterful two-bedroom terrace close to station and village amenities, ready for modern living..
Extended Victorian mid-terrace with period charm
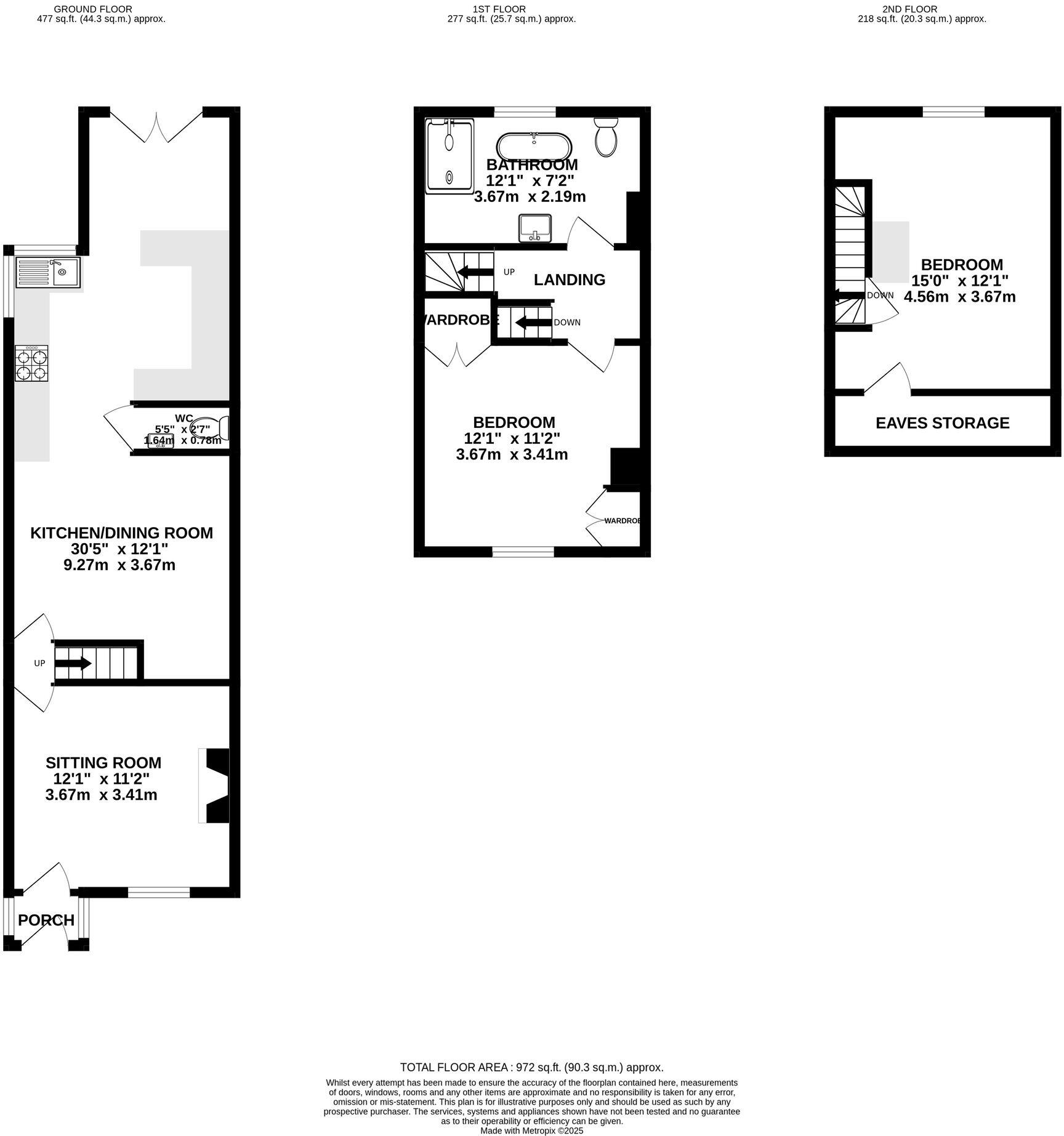
Bright modern kitchen/diner ideal for family meals
Cosy living room with working log burner
Two double bedrooms and luxury family bathroom
Downstairs cloakroom and side-alley rear access
Generous rear garden and patio; small overall plot
Solid brick walls; likely no external wall insulation
EPC D; opportunity to improve energy efficiency
A carefully extended Victorian mid-terrace combining original character with contemporary living. The cosy living room centers on a log burner, while the back extension provides a bright, modern kitchen/dining space ideal for family meals and entertaining.
Upstairs are two double bedrooms and a luxury family bathroom with separate shower and roll-top bath. Practical touches include a downstairs cloakroom and front-to-rear access via a side alley. The generous rear garden and patio offer private outdoor space for children and summer dining, though the plot is small compared with detached alternatives.
Practical considerations: the house is solid-brick (original build before 1900) and double-glazed, but external wall insulation is assumed absent — improving thermal performance may be advisable. The EPC is D and there is one family bathroom only. Council tax band is moderate.
Location is a key strength: a short walk to the mainline station for commuters, well-regarded local schools, and the village centre for shops and amenities. This home will suit buyers seeking a characterful, move-in-ready property with scope to enhance energy efficiency and personalise finishes.
2 bedroom terraced house for sale in Station Road, Lingfield, RH7 — £375,000 • 2 bed • 1 bath • 698 ft²
2 bedroom semi-detached house for sale in Moor Lane, Marsh Green, Edenbridge, TN8 — £500,000 • 2 bed • 1 bath • 1118 ft²
3 bedroom terraced house for sale in Lagham Road, South Godstone, RH9 — £425,000 • 3 bed • 1 bath • 1119 ft²
2 bedroom semi-detached house for sale in Brickhouse Lane, Newchapel, Lingfield, RH7 — £375,000 • 2 bed • 1 bath • 820 ft²
2 bedroom cottage for sale in Newchapel Road, Lingfield, Surrey, RH7 — £350,000 • 2 bed • 1 bath • 743 ft²
2 bedroom semi-detached house for sale in Ladbroke Road, Horley, Surrey, RH6 — £425,000 • 2 bed • 1 bath • 977 ft²


















































