Convenient commuter location with renovation potential and immediate occupancy.
Chain-free vacant possession, freehold tenure
Short walk (0.2 mile) to Wythenshawe Park Metrolink
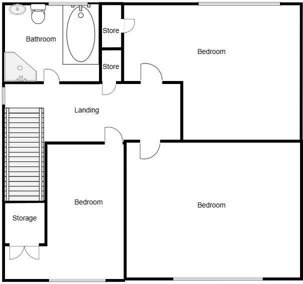
Three bedrooms, two receptions, downstairs wetroom and upstairs bathroom
Off-street driveway parking; small landscaped front garden
Approximately 800 sq ft; small overall plot and modest room sizes
Area classified as deprived; mixed school performance nearby
Motivated seller — open to offers, potential for modernization
Excellent mobile signal and fast broadband; very low council tax
A three-bedroom semi-detached home offered with vacant possession and no onward chain, positioned for everyday family life in Wythenshawe. The layout includes two reception rooms, a practical kitchen, downstairs wetroom and a separate first-floor bathroom — useful for busy households and multi-use living. Off-street parking and a small front garden add convenience in a built-up area.
The location is a strong selling point: under a five-minute walk (0.2 mile) to the Wythenshawe Park Metrolink and close to local shops, bus links and Tesco Express. Wythenshawe Hospital is around 1.8 miles away. Nearby primary schools include two rated Good; secondary-school standards vary locally, with one Outstanding option in the wider area.
Internally the house provides about 800 sq ft across two storeys with average room sizes and standard ceiling heights. It appears structurally typical of mid-20th-century suburban stock with a red-brick exterior and driveway parking for multiple cars. While the property has been maintained, parts will benefit from updating to modern tastes — this is reflected in the advertised “open to offers” and motivated seller note, presenting scope for improvement or value-add for buyers.
Be pragmatic about the local context: the area scores as deprived and the immediate neighbourhood is mixed in socioeconomic terms. Council tax is very low and utilities (mobile signal, broadband) are strong — positives for cost-conscious purchasers and those working from home. Chain-free, freehold tenure and vacant possession make this a straightforward purchase for families, commuters or buyers seeking a practical starter home with renovation upside.
3 bedroom semi-detached house for sale in Felton Avenue, Close To Civic Centre, Manchester, M22 — £230,000 • 3 bed • 1 bath • 760 ft²
3 bedroom semi-detached house for sale in Broadoak Drive, Manchester, M22 — £245,000 • 3 bed • 2 bath • 2313 ft²
3 bedroom town house for sale in Northcote Avenue, Wythenshawe, M22 — £290,000 • 3 bed • 2 bath • 1056 ft²
3 bedroom semi-detached house for sale in Woodham Road, Manchester, M23 — £299,995 • 3 bed • 2 bath
3 bedroom terraced house for sale in Wythenshawe Road, Manchester, M23 — £300,000 • 3 bed • 1 bath • 1114 ft²
3 bedroom end of terrace house for sale in Virginia Close, Manchester, M23 — £285,000 • 3 bed • 1 bath • 919 ft²






































































































































