M23 9NG - 3 bed extended end terrace in Virginia Close, M23 9NG

View on Property Piper

3 bedroom end of terrace house for sale in Virginia Close, Manchester, M23

Summary - 26 VIRGINIA CLOSE MANCHESTER M23 9NG

3 bed 1 bath End of Terrace

Spacious three-bedroom cul-de-sac home with parking and no onward chain..
No onward chain — vacant possession available
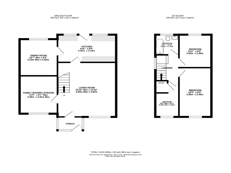
Set on a quiet cul-de-sac, this extended three-bedroom end-of-terrace offers practical family living with no onward chain. The ground floor extension creates three reception rooms, a fitted kitchen and a porch entrance — ideal for busy households needing flexible space. A contemporary family bathroom and largely well-presented bedrooms mean the home is largely move-in ready.

Outside, the house benefits from a large front hardstanding area and an allocated parking space to the rear, plus a low-maintenance paved rear garden. The plot is notably generous for the street, which gives scope for further landscaping or extension (subject to consents). Convenient local amenities include a retail park, shops, good bus links, and Wythenshawe Hospital nearby.

Practical details: the property is freehold, council tax is low, mains gas central heating is installed, and there is double glazing fitted in parts of the house (installation dates unknown). Flood risk is low and crime levels are reported as very low, which supports its appeal for families and first-time buyers.

Main drawbacks are location-related: the wider area is classified as economically deprived and the immediate neighbourhood described as hampered, which may affect resale expectations. Some internal areas show signs of cosmetic update or modernization needs (for example some windows and decorative finishes), so buyers seeking a fully modern specification should budget for improvements. There is a single family bathroom for three bedrooms, which some households may find limiting.

Overall, this extended end-of-terrace represents a practical, well-located home suited to families, first-time buyers or investors seeking rental potential, offered with the advantage of immediate vacant possession.

Property Details

Image Descriptions

Rooms

Textual Property Features

Target Audience

AI Tags

Detected Visual Features

EPC Details

Nearby Schools

Nearest Bars And Restaurants

,,,,}

Nearest General Shops

,,}

Nearest Grocery shops

,,}

Nearest Supermarkets

,,}

Nearest Religious buildings

,,}

Nearest Medical buildings

,,,}

Nearest Airports

}

Nearest Leisure Facilities

,,,,}

Nearest Tourist attractions

,,}

Nearest Train stations

,,,,}

Nearest Bus stations and stops

,,,,}

Nearest Hotels

,,}

Tags

Local Market Stats

AirBnB Data

Similar Properties

Meta

High Res Images

Compatible Images

Low res Images

Thumbnails

Raw Images

High Res Floorplan Images

Compatible Floorplan Images

Low res Floorplan Images

FloorplanImages Thumbnail

Raw Floorplan Images