**Standout Features:**
- Characterful period conversion with private entrance
- Two spacious double bedrooms, each with en-suite shower rooms
- Modern kitchen with integrated appliances and breakfast bar
- Ample built-in storage and access to a large loft space
- Share of freehold; chain-free sale
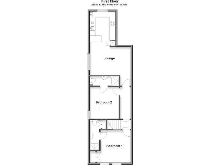
Nestled in a charming Victorian period conversion, this appealing first-floor maisonette seamlessly marries traditional elegance with modern living. Ideal for families or investors, this home offers two generously sized double bedrooms, each equipped with stylish en-suite shower rooms, perfect for sharers or overnight guests. The contemporary kitchen, featuring integrated appliances and a handy breakfast bar, flows into a bright living area, creating an inviting space for relaxation and entertaining.
Situated just minutes from Merstham Train Station and an array of local amenities, this property is a prime opportunity for commuters with convenient links to London, Gatwick, and the South Coast. Enjoy the benefits of no onward chain and distinctive character throughout, but please note that there's no parking available. Overall, this attractive home is ideally located in a highly regarded area with low crime rates and access to reputable schools, making it a perfect choice for both first-time buyers and investors looking for rental potential. Don't miss out on a chance to own this delightful property—its unique features and fantastic location make it a must-see!
2 bedroom maisonette for sale in Ash Close, Merstham, Redhill, Surrey, RH1 — £335,000 • 2 bed • 1 bath • 689 ft²
2 bedroom maisonette for sale in Nutfield Road, Merstham, Redhill, RH1 — £350,000 • 2 bed • 1 bath • 708 ft²
2 bedroom ground floor flat for sale in School Hill, Merstham, Dorking, Surrey, RH1 — £140,000 • 2 bed • 1 bath • 808 ft²
2 bedroom apartment for sale in London Road North, Merstham, Redhill, Surrey, RH1 — £315,000 • 2 bed • 1 bath • 675 ft²
2 bedroom ground floor flat for sale in School Hill, Merstham, Dorking, Surrey, RH1 — £350,000 • 2 bed • 1 bath • 808 ft²
2 bedroom ground floor maisonette for sale in Wyecliffe Gardens, Merstham, Redhill, Surrey, RH1 — £375,000 • 2 bed • 1 bath • 765 ft²






































































