Modern one-bedroom with parking and communal outdoor space.
Riverside location beside the River Avon and Bath Road
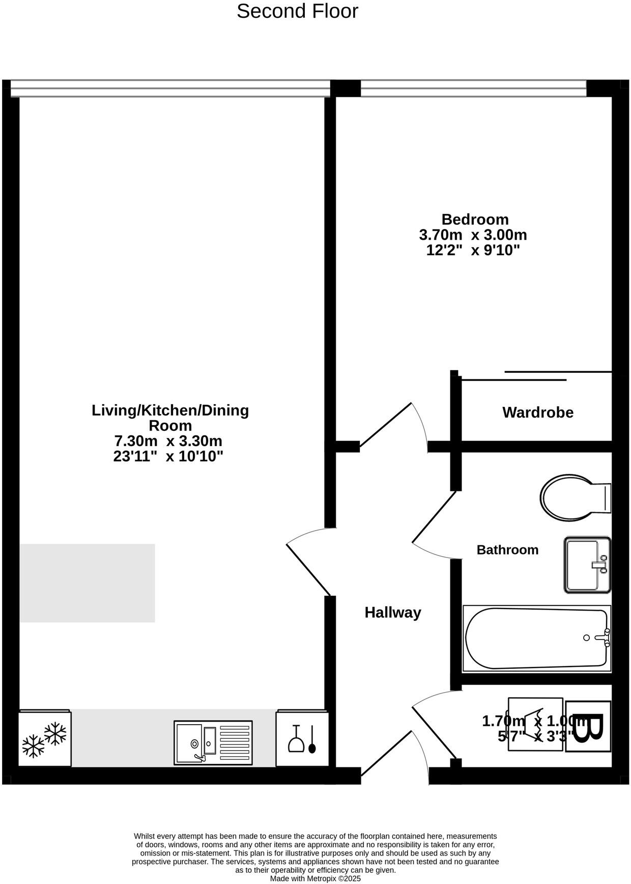
A bright, modern one-bedroom apartment in The Paintworks offers easy riverside living with excellent transport links to the city. The open-plan living, dining and kitchen benefits from full-width windows that maximise light and the development’s urban views. Allocated parking and secure cycle storage add practical everyday convenience.
This flat suits a first-time buyer or investor looking for a well-specified, compact home close to Temple Meads and local cafés, bars and riverside walks. The EPC B rating and community heating scheme help keep running costs competitive, and the apartment’s 48m² (approx. 517 sq ft) footprint feels generous for a one-bed layout.
Important practical points: the property is leasehold — buyers should confirm the exact remaining term before exchange — and there is an annual ground rent of £150 plus an average service charge of £3,519.10. The local area records above-average crime, so viewings should include checking security and management arrangements for peace of mind.
Overall, this is a modern, low-maintenance apartment in a lively, well-connected pocket of Bristol. It offers immediate move-in potential and solid rental appeal, provided prospective purchasers factor in service charges and verify lease details.
1 bedroom flat for sale in Paintworks, Arnos Vale, Bristol, BS4 — £250,000 • 1 bed • 1 bath • 526 ft²
1 bedroom flat for sale in Paintworks, Arnos Vale, BS4 — £230,000 • 1 bed • 1 bath • 657 ft²
1 bedroom flat for sale in Paintworks, Bristol, BS4 — £250,000 • 1 bed • 1 bath • 509 ft²
1 bedroom flat for sale in Paintworks, Arnos Vale, Bristol, BS4 — £250,000 • 1 bed • 1 bath • 499 ft²
1 bedroom flat for sale in Paintworks, Bristol, BS4 — £260,000 • 1 bed • 1 bath • 500 ft²
2 bedroom flat for sale in Paintworks, Arnos Vale, Bristol, BS4 — £285,000 • 2 bed • 2 bath • 686 ft²














































