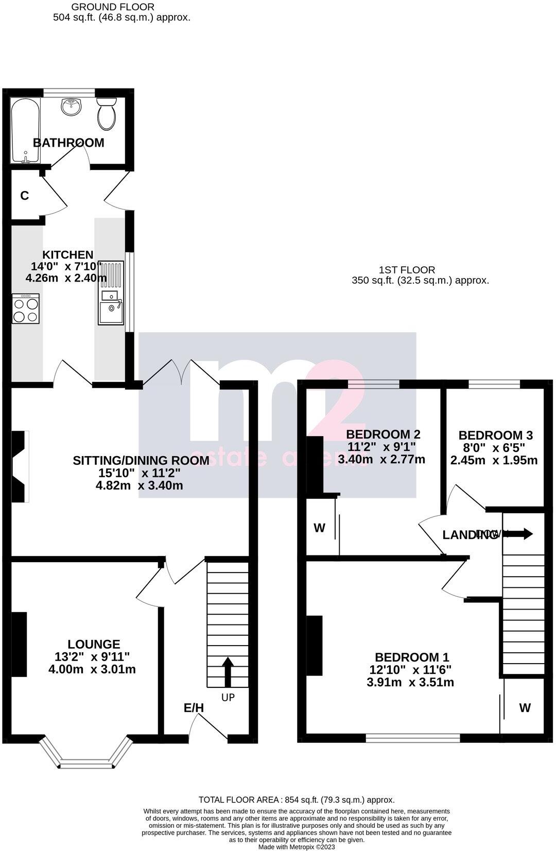
Affordable three-bedroom mid-terrace ideal for first-time buyers or investors needing light improvement..
- Three bedrooms with bay-front lounge
- Sitting/dining room opening onto enclosed rear garden
- Freehold; mains gas central heating and double glazing
- Average size: approx. 854 sq ft, compact rooms
- Small plot and paved rear garden, low garden maintenance
- Built c.1930–1949; cavity walls likely without insulation
- Area: very deprived with above-average crime rates
- Single bathroom; may need upgrades for modern standards
A mid-20th-century, bay-fronted mid-terrace offering three bedrooms across two storeys — a straightforward starter home or buy-to-let close to local amenities. The ground floor includes a bay-front lounge, separate sitting/dining room that opens to an enclosed rear garden, a fitted kitchen and a bathroom with shower-over-bath. Upstairs are three bedrooms, the master with a built-in wardrobe.
Practical positives include freehold tenure, mains gas central heating with boiler and radiators, double glazing, fast broadband and excellent mobile signal. The property is well placed for schools, shops, Newport Retail Park and quick access to the Southern Distributor Road and M4 junctions, making commuting and shopping easy.
Be clear about the context: the house sits in a very deprived area with above-average crime levels, and the plot is small. The home is of average internal size (approximately 854 sq ft) with compact rooms and cavity walls likely without added insulation. These factors may mean ongoing maintenance, retrofit insulation work and sensible security measures are needed.
Overall this is a practical, affordable three-bedroom terraced house suited to first-time buyers or investors willing to accept area-related constraints and to carry modest improvement works to personalise and upgrade thermal performance.
3 bedroom terraced house for sale in Malpas Road, Newport, NP20 — £170,000 • 3 bed • 1 bath • 1044 ft²
3 bedroom end of terrace house for sale in Beaufort Road, Newport, NP19 — £190,000 • 3 bed • 1 bath • 969 ft²
3 bedroom semi-detached house for sale in Blenheim Road, Newport, NP19 — £250,000 • 3 bed • 1 bath • 1003 ft²
3 bedroom terraced house for sale in Durham Road, Newport, NP19 — £170,000 • 3 bed • 1 bath • 926 ft²
3 bedroom terraced house for sale in Jackson Place, Newport, NP19 — £190,000 • 3 bed • 2 bath • 939 ft²
3 bedroom terraced house for sale in Heather Road, Newport, NP19 — £215,000 • 3 bed • 1 bath • 883 ft²






















































