Central, well-connected family home with garden and flexible living space.
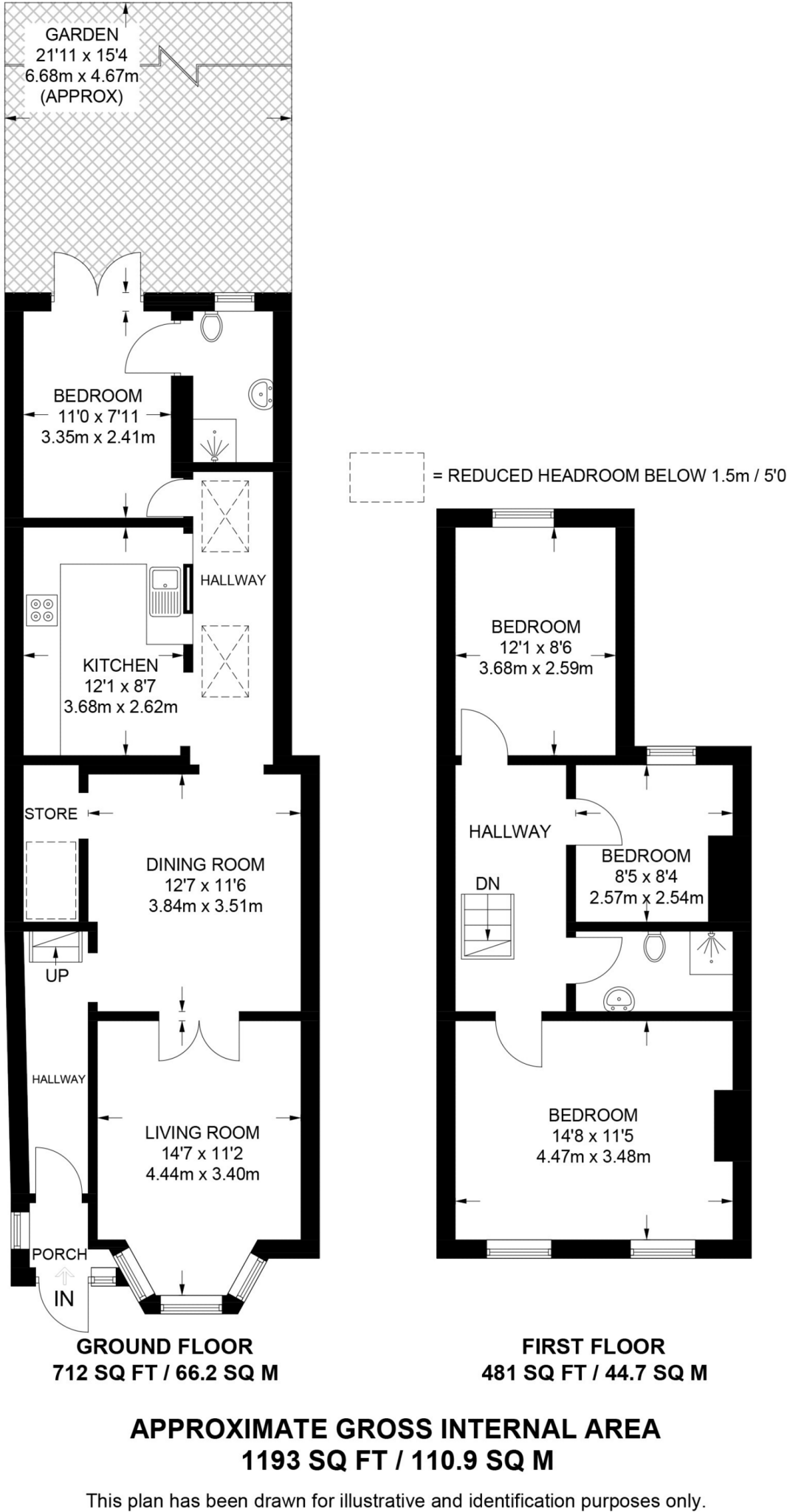
3 bedrooms across multiple storeys, charming traditional interiors
Separate dining room with high ceilings and wood flooring
Lovely reception room with arch window and neutral decor
Ample extension increases living space and practicality
Private back garden — small plot, limited outdoor space
Two modern bathrooms, suitable for family use
Freehold tenure, close to Bruce Grove and transport links
Local area: very high crime and high deprivation — consider implications
This traditional three-bedroom terraced house on St Loys Road offers comfortable family living across multiple floors. Interiors are charming and well-presented, with a lovely reception room, a separate dining room with high ceilings and wood flooring, and a practical separate kitchen. Two sleek bathrooms and an ample extension increase usable space for everyday life.
A private back garden provides outside space for children and small gatherings, while excellent mobile signal and fast broadband support home working and study. The property is freehold and sits close to Bruce Grove and local transport links, making commutes and school runs straightforward. Several well-rated primary and secondary schools are within walking distance.
Buyers should note the plot is small and the house is average-sized overall, so outdoor space and room layouts are more compact compared with larger suburban homes. The surrounding area experiences very high crime levels and significant deprivation, which may concern some purchasers and affect long-term resale expectations. For families seeking affordable, central living with good connectivity and local amenities, this home offers immediate comfort and scope to adapt interiors where desired.
3 bedroom end of terrace house for sale in Moorefield Road, London, N17 — £525,000 • 3 bed • 1 bath • 893 ft²
3 bedroom terraced house for sale in Birbeck Road, London, N17 — £625,000 • 3 bed • 1 bath • 1016 ft²
3 bedroom terraced house for sale in Grainger Road N22, Tottenham, London, N22 — £575,000 • 3 bed • 1 bath • 1089 ft²
3 bedroom terraced house for sale in Tilson Road, London, N17 — £775,000 • 3 bed • 3 bath • 1479 ft²
3 bedroom terraced house for sale in BROMLEY ROAD, Tottenham, London, N17 — £525,000 • 3 bed • 2 bath • 1424 ft²
3 bedroom terraced house for sale in Seymour Avenue N17 — £550,000 • 3 bed • 1 bath • 904 ft²


















































































































































