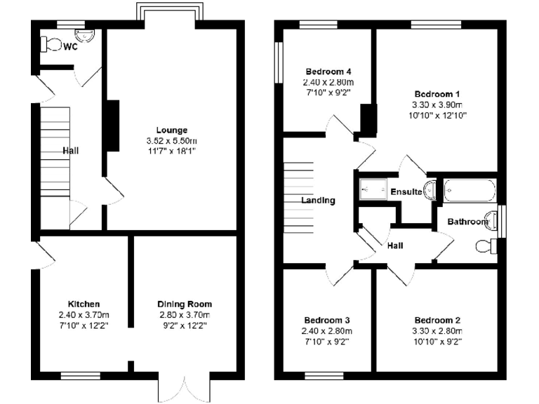
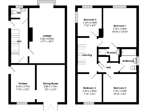
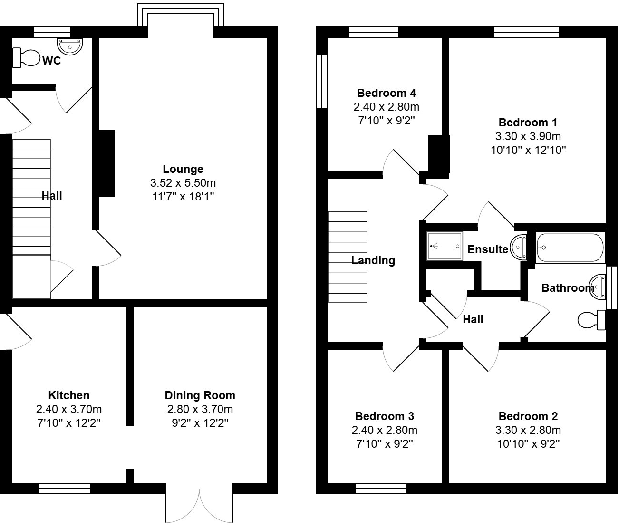
**Standout Features:**
- **4 Bedrooms** with master en-suite
- **2 Reception Rooms** – Living and Dining
- **Detached Garage** with light and power
- **NO ONWARD CHAIN** – move in hassle-free
- **Located in Debenham** – affluent, peaceful village
- **Moderate Council Tax Band D**
- **Decent plot size** with enclosed rear garden
- **Parking for approximately 3 vehicles**
This charming detached family home in the desirable village of Debenham offers a spacious 1,031 sq ft of living space, featuring four well-sized bedrooms, including a master with en-suite shower room. Enjoy the light-filled interiors with a cozy living room adorned with a bay window and a welcoming dining room with French doors leading to a fully enclosed rear garden, perfect for family gatherings or quiet evenings. The modern kitchen offers functionality with ample work surfaces and utility room, catering to all your needs.
Beyond its comfortable living spaces, the property is excitingly sold with no onward chain, providing a swift move-in opportunity. The attached garage and driveway ensure convenient off-street parking for up to three vehicles, while the reliable UPVC double glazing and modern electric heating system enhance comfort and energy efficiency.
Though the property boasts many attractions, potential buyers should keep in mind that the home may benefit from personal touch-ups and updates for modern aesthetics. With excellent primary and secondary school options nearby, along with local amenities including shops and recreational spaces, this home truly embodies family-friendly living in an affluent community.
Secure your place in this inviting home today; opportunities like this don’t last long!
4 bedroom detached house for sale in Debenham, IP14 — £560,000 • 4 bed • 2 bath • 1523 ft²
4 bedroom detached house for sale in Bloomfield Way, Debenham, Stowmarket, Suffolk, IP14 — £390,000 • 4 bed • 2 bath • 1304 ft²
4 bedroom detached house for sale in Wetheringsett, IP14 — £450,000 • 4 bed • 3 bath • 1550 ft²
3 bedroom detached house for sale in Debenham, IP14 — £250,000 • 3 bed • 2 bath • 792 ft²
3 bedroom semi-detached house for sale in Debenham, IP14 — £310,000 • 3 bed • 2 bath • 1211 ft²
3 bedroom end of terrace house for sale in Sackvylle Street, Debenham, Stowmarket, IP14 — £240,000 • 3 bed • 1 bath • 818 ft²






































































