Spacious four-bed family house with private garden and double garage in village setting.
Overlooks village church with private, mostly southerly rear garden
Four double bedrooms, including master with ensuite and walk-in wardrobe
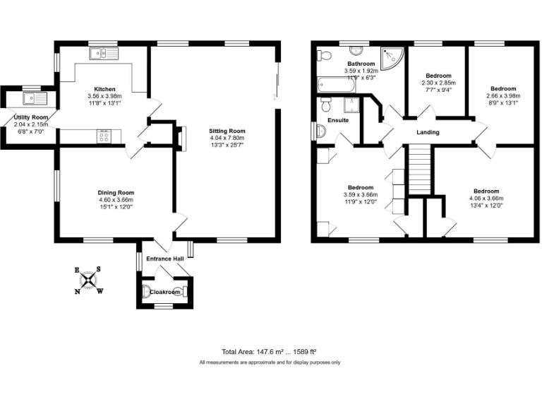
Two reception rooms plus kitchen/breakfast, utility and cloakroom
Detached double garage with power, light and driveway parking
Built 1997; approx. 1,550 sq ft of family accommodation
Oil-fired heating; oil tank replaced in 2024 (fuel costs variable)
Medium flood risk and very slow local broadband speeds
Council Tax band F (expensive); offered chain free
Set on a tucked-away plot overlooking the village church, this four-double-bedroom detached house offers well-proportioned family accommodation across approximately 1,550 sq ft. Built in 1997, the layout includes two reception rooms, a kitchen/breakfast room, separate utility and cloakroom, plus an ensuite to the principal bedroom — practical spaces for everyday family life.
Outside, the large, mostly southerly garden is private and well stocked, with a paved patio, timber shed and newly replaced oil tank (2024). A brick-paved driveway leads to a detached double garage with power and light — useful for parking, workshop space or secure storage.
Practical considerations: heating is from an oil-fired boiler and the property sits in a medium flood-risk area. Broadband speeds are very slow locally, and the home sits in Council Tax band F (expensive). The house is offered chain free and is ready for a new owner to refresh or personalise to their tastes.
Local schools include a good-rated primary and Debenham High School (good) in catchment, making this village location suited to families seeking countryside living with school access. The setting and plot size are key strengths for buyers prioritising privacy and outdoor space.
4 bedroom detached house for sale in Debenham, IP14 — £560,000 • 4 bed • 2 bath • 1523 ft²
4 bedroom detached house for sale in Debenham Road, Mickfield, Stowmarket, IP14 — £550,000 • 4 bed • 3 bath • 1228 ft²
5 bedroom detached house for sale in Debenham, IP14 — £425,000 • 5 bed • 4 bath • 1556 ft²
4 bedroom detached house for sale in Bloomfield Way, Debenham, Stowmarket, Suffolk, IP14 — £390,000 • 4 bed • 2 bath • 1304 ft²
3 bedroom detached house for sale in Debenham, IP14 — £250,000 • 3 bed • 2 bath • 792 ft²
4 bedroom detached house for sale in Debenham, IP14 — £450,000 • 4 bed • 3 bath • 1505 ft²


























































































