Two large en suite bedrooms, vast terraces and two parking spaces in sought-after Cowbridge.
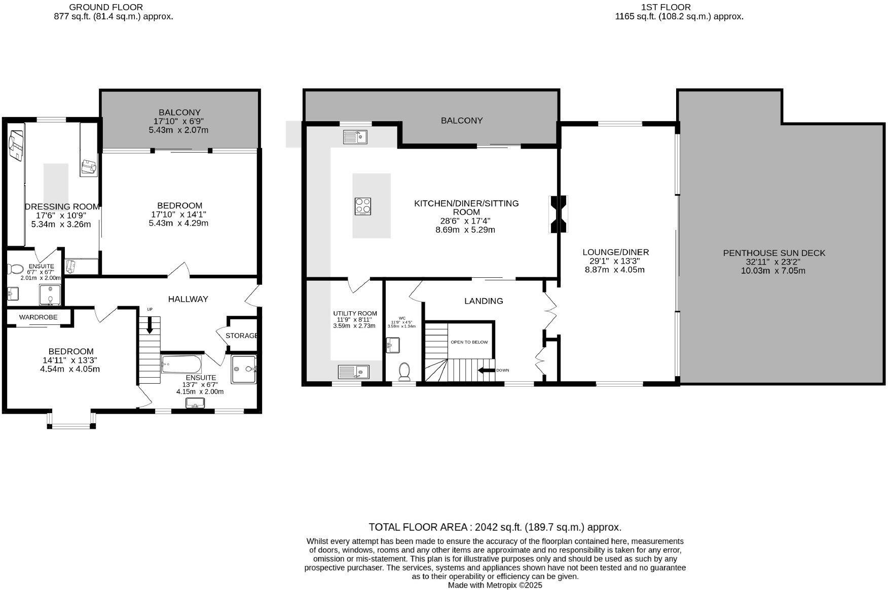
Two double bedrooms each with en suite bathrooms
Principal suite includes copper roll-top bath and private balcony
Extensive terraces and roof terrace with elevated river views
Open-plan kitchen/living with high-spec integrated appliances
Secure entry, lift access and two allocated off-street parking spaces
Built 2023; modern build with air-source heat pump heating
Leasehold tenure — check lease length, service charges and ground rent
Local area flagged as very deprived; consider neighbourhood factors
Occupying the top floor of a contemporary 2023 building, this exceptionally large two-bedroom apartment combines high-spec finish with extensive outdoor living. The principal suite is a private retreat with a walk-in wardrobe, en suite shower, copper roll-top bath and a balcony overlooking the river. The second double bedroom also benefits from an en suite; a guest cloakroom completes the internal accommodation.
The open-plan kitchen, dining and living area is designed for entertaining, with integrated appliances, a utility room and sliding doors that open onto generous riverside terraces and roof-level outdoor space. Multiple glazed balconies and large floor-to-ceiling windows deliver strong natural light and elevated outlooks. Residents have secure entry, lift access and two allocated off-street parking spaces.
Built in 2023, the building uses an air-source heat pump with radiators and runs on electricity; walls indicate average thermal performance. Broadband speeds are fast and mobile signal is average. The property is leasehold — buyers should check lease length, service charges and ground rent before committing. There is no recorded flood risk for the site.
Location is a key strength: Cowbridge offers independent shops, cafes and strong local schooling, with Cardiff reachable in under 30 minutes. A notable local concern is the area-level deprivation indicator listed as very deprived; purchasers should appraise local services and investment plans. Overall, this penthouse suits buyers seeking turn-key, contemporary living with unusually generous terraces and parking, but who understand and investigate leasehold costs and broader neighbourhood factors.
3 bedroom penthouse for sale in Minafon, Cowbridge, CF71 — £1,250,000 • 3 bed • 2 bath • 2086 ft²
2 bedroom penthouse for sale in Magretian Place, Cardiff, CF10 — £285,000 • 2 bed • 2 bath • 757 ft²
3 bedroom apartment for sale in The Market Place, 66 High Street, Cowbridge, Vale of Glamorgan, CF71 7AH, CF71 — £650,000 • 3 bed • 2 bath • 1064 ft²
2 bedroom apartment for sale in Breakwater House, Cardiff, CF11 — £269,500 • 2 bed • 2 bath • 824 ft²
3 bedroom penthouse for sale in The Bank, Cardiff Bay, CF10 — £1,050,000 • 3 bed • 4 bath • 2723 ft²
3 bedroom penthouse for sale in Greyfriars Road, Cardiff, CF10 — £475,000 • 3 bed • 3 bath • 1501 ft²










































































































