EX21 5AF - Plot for sale in Germansweek, Beaworthy, Devon, EX21

View on Property Piper

Plot for sale in Germansweek, Beaworthy, Devon, EX21

Summary - Germansweek, Beaworthy, Devon, EX21 EX21 5AF

1 bed 1 bath Plot

**Standout Features:**
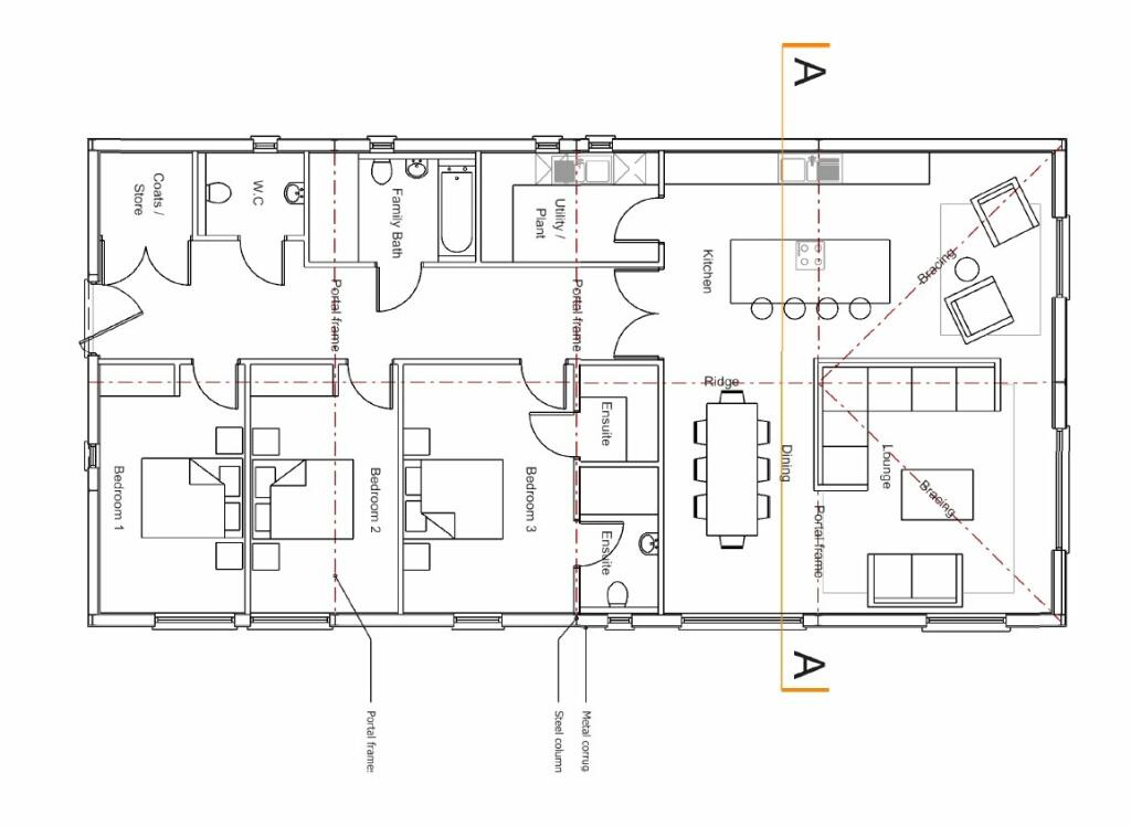
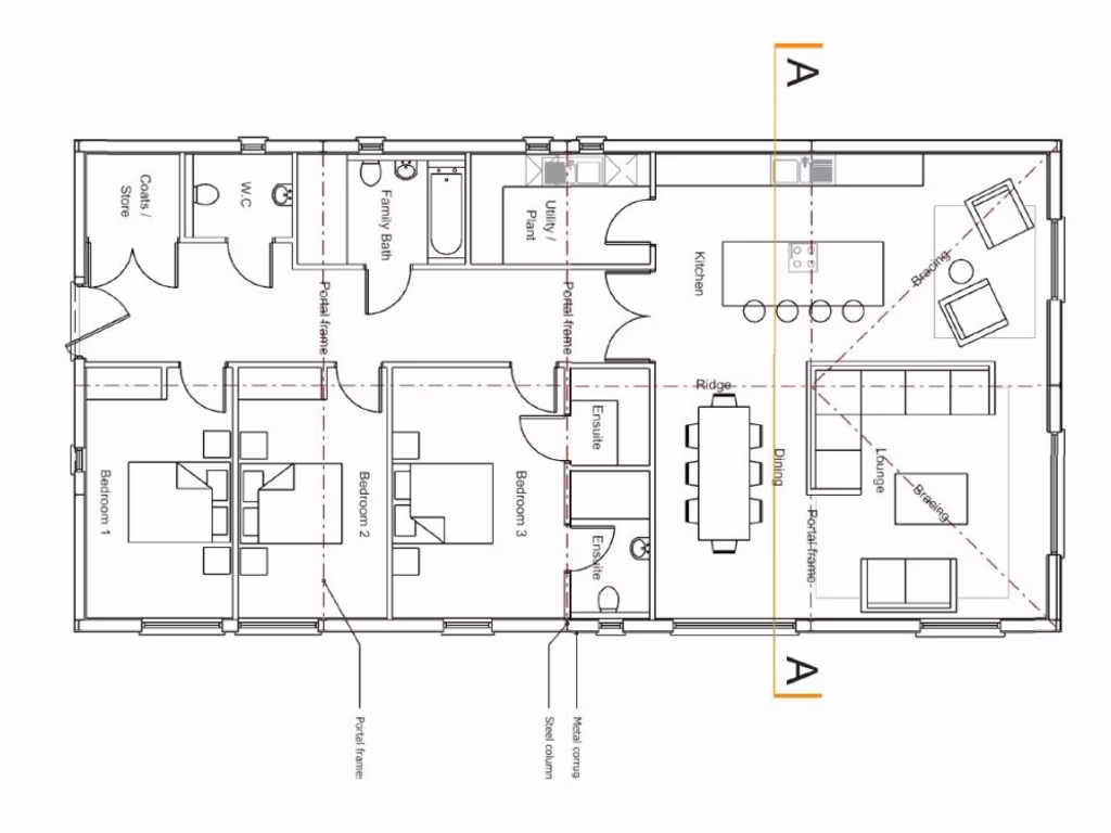
- **Class Q Planning Permission**: Approved for converting an agricultural building into a spacious 3-bedroom home.
- **Expansive Land**: Nearly 5 acres of gently sloping pastureland, ideal for a smallholding or equestrian use.
- **Secluded Location**: No immediate neighbors, providing tranquility and privacy.
- **Accessibility**: Close to Launceston, Okehampton, Bude, and Holsworthy; a short drive to the A30 for easy access to Exeter and beyond.
- **Future Flexibility**: Additional land (7 acres) available by negotiation.

**Summary:**
Seize this remarkable opportunity to transform a rustic barn into your dream home, nestled in a peaceful rural setting near Germansweek. Boasting Class Q planning permission for a generous three-bedroom dwelling, this property is perfect for families looking for country living or investors seeking a development project. Set on nearly 5 acres of rolling pastureland, you’ll enjoy privacy with no near neighbors, making it an ideal space for agri-living or equestrian pursuits.

Currently accessible to nearby towns and the A30 corridor, you have both seclusion and convenience. The property offers potential for further development with additional land negotiable, allowing for creative aspirations to flourish. While the location provides an idyllic lifestyle, it’s worth noting that broadband speeds are very slow, and mobile signal is average, so consider your connectivity needs. Don’t miss out on this unique and versatile opportunity to create your own haven in the countryside!

Property Details

Brochure Descriptions

Image Descriptions

Textual Property Features

Detected Visual Features

Nearby Schools

Nearest Bars And Restaurants

,,,,}

Nearest General Shops

,,}

Nearest Grocery shops

,,}

Nearest Supermarkets

,,}

Nearest Religious buildings

,,}

Nearest Medical buildings

,,,}

Nearest Leisure Facilities

,,,,}

Nearest Tourist attractions

,,}

Nearest Train stations

,,,,}

Nearest Bus stations and stops

,,,,}

Nearest Hotels

,,}

Tags

Local Market Stats

AirBnB Data

Similar Properties

Meta

High Res Images

Compatible Images

Low res Images

Thumbnails

Raw Images