**Standout Features:**
- One bedroom, chain-free first-floor apartment
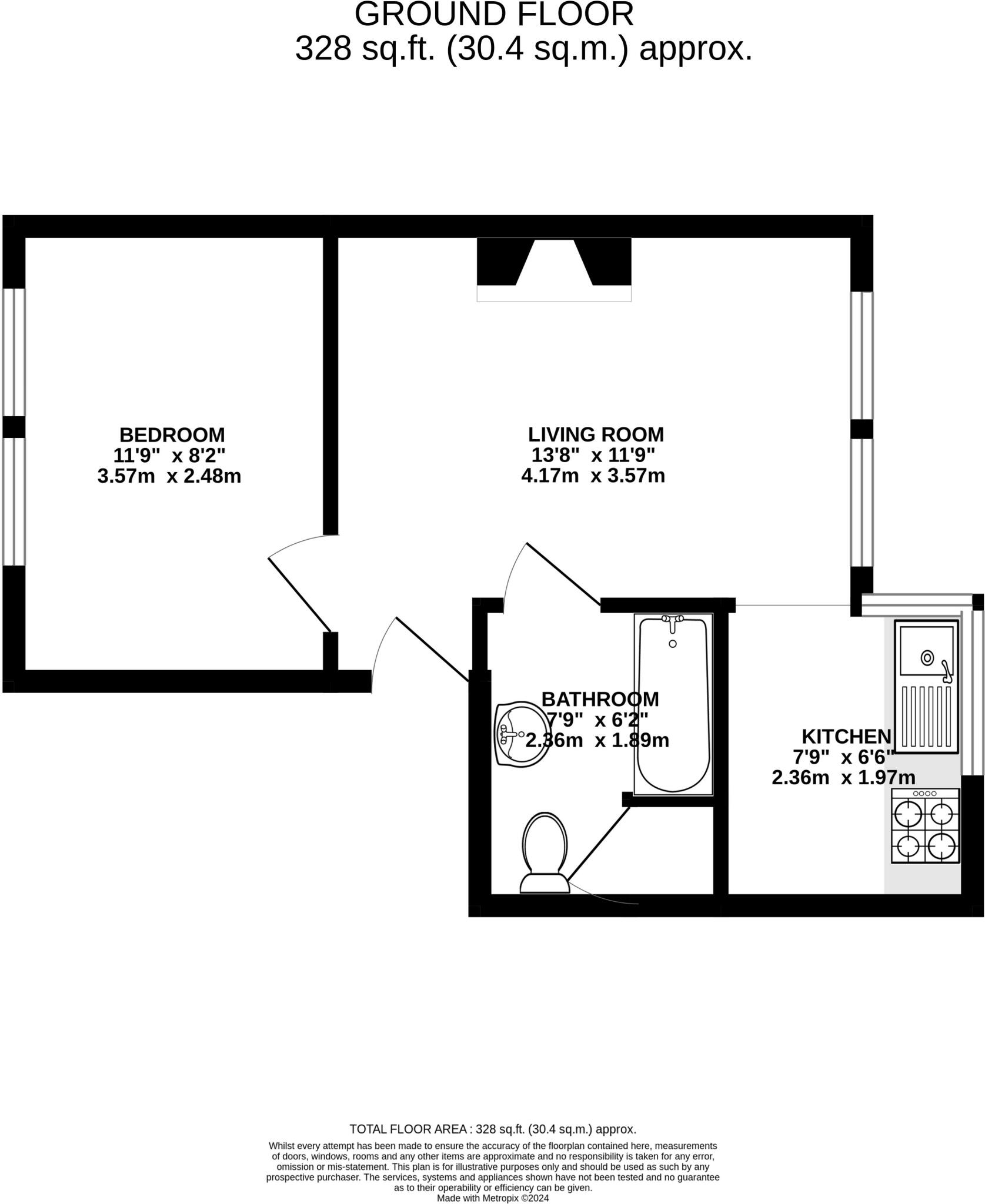
- Characterful living room with feature fireplace
- Convenient separate kitchen and family bathroom
- Accessed via a communal entrance with residents parking
- Located near the city center and Verulamium Park
- Good broadband speeds and average crime rate
- Leasehold property with a service charge of £2500/year
**Summary:**
Discover this charming one-bedroom apartment, perfect for first-time buyers or investors seeking a low-maintenance home in a prime location. Spanning approximately 328 square feet, the well-lit living room with its feature fireplace invites comfort, while a separate kitchen and family bathroom provide essential conveniences. With communal entrance access and residents parking, the property offers both practicality and an inviting atmosphere.
Set within a tranquil neighborhood of St Albans, you’ll enjoy the benefits of being just a short walk from the city center, bustling with shops, restaurants, and the historic Verulamium Park. The area is affluent and well-connected, with fast broadband and excellent mobile signals. Although the property requires some modern aesthetic updates, its solid structure and prime location present an excellent opportunity for customization and value appreciation. Don’t miss out on this chain-free gem—schedule your viewing today!
1 bedroom apartment for sale in Alban Court, Burleigh Road, St. Albans, AL1 — £290,000 • 1 bed • 1 bath • 481 ft²
1 bedroom apartment for sale in Grosvenor Road, St. Albans, Hertfordshire, AL1 — £315,000 • 1 bed • 1 bath • 554 ft²
1 bedroom apartment for sale in Camp Road, St. Albans, Hertfordshire, AL1 — £270,000 • 1 bed • 1 bath • 468 ft²
1 bedroom apartment for sale in Sandridge Road, St. Albans, Hertfordshire, AL1 — £235,000 • 1 bed • 1 bath • 362 ft²
1 bedroom apartment for sale in Camp Road, St. Albans, Hertfordshire, AL1 — £270,000 • 1 bed • 1 bath • 411 ft²
2 bedroom apartment for sale in Latium Close, Holywell Hill, St Albans, Herts, AL1 — £325,000 • 2 bed • 2 bath • 600 ft²






































