**Standout Features:**
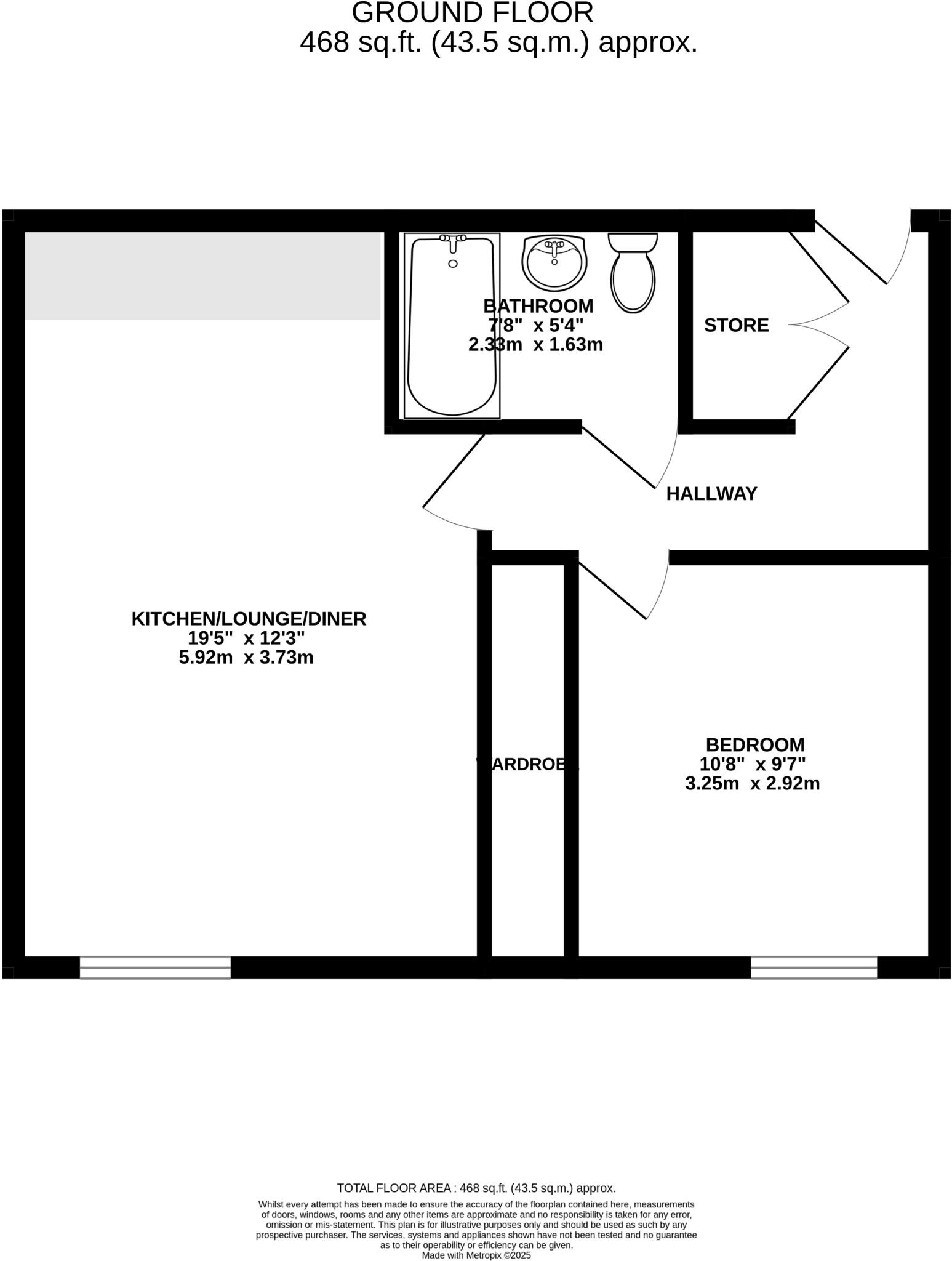
- Modern one-bedroom first-floor apartment
- Open-plan living space with integrated kitchen appliances
- Double bedroom with fitted wardrobes
- Allocated off-street parking
- Underfloor heating
- 0.5 miles from St Albans City Station
- Chain free and long lease (with only small ground rent)
**Notable Concerns:**
- Average-sized layout may not suit all preferences
- Limited views due to urban surroundings
Discover urban comfort in this contemporary one-bedroom first-floor apartment, perfectly designed for first-time buyers or professionals. The inviting open-plan living and kitchen area features sleek integrated appliances and generous natural light, creating a bright and airy atmosphere. The spacious double bedroom includes fitted wardrobes for optimal storage, while the modern bathroom suite adds to the apartment's appeal. Located just 0.5 miles from St Albans City Station, enjoy quick commute times into London alongside the convenience of allocated off-street parking and affordable council tax.
Embrace the opportunity to own this stylish apartment, offered chain-free, providing an excellent starting point for those seeking a blend of urban lifestyle and modern living. With the vibrant city center only a short distance away and a variety of nearby schools with strong ratings, this property presents a unique combination of comfort, security, and future potential. Seize the moment and envision your new life in this welcoming space!
1 bedroom apartment for sale in Camp Road, St. Albans, Hertfordshire, AL1 — £270,000 • 1 bed • 1 bath • 411 ft²
1 bedroom apartment for sale in Grosvenor Road, St. Albans, Hertfordshire, AL1 — £315,000 • 1 bed • 1 bath • 554 ft²
2 bedroom apartment for sale in Sanders Place, Camp Road, St. Albans, Hertfordshire, AL1 — £400,000 • 2 bed • 2 bath • 777 ft²
1 bedroom apartment for sale in Alban Court, Burleigh Road, St. Albans, AL1 — £290,000 • 1 bed • 1 bath • 481 ft²
2 bedroom apartment for sale in Dawn Court, Bakers Close, St. Albans, Hertfordshire, AL1 — £385,000 • 2 bed • 2 bath • 749 ft²
1 bedroom apartment for sale in Charrington Place, St. Albans, Hertfordshire, AL1 — £260,000 • 1 bed • 1 bath • 432 ft²






























