Low‑maintenance family home with solar and EV charging.
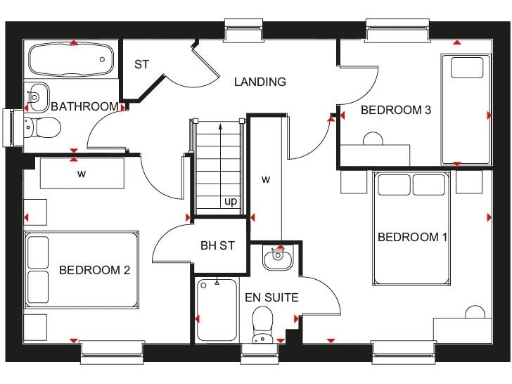
Three bedrooms, main with en‑suite
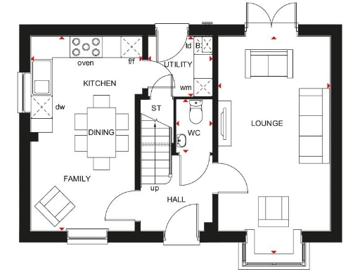
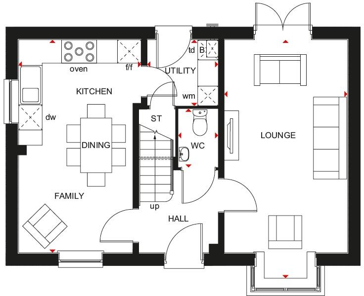
A modern three-bedroom detached home in the Darwin Green development, designed for low-maintenance family living. The ground floor offers an open-plan kitchen/diner/family area plus a dual-aspect lounge with French doors opening onto a south‑east facing garden. The main bedroom benefits from an en‑suite; two further bedrooms and a family bathroom are upstairs.
Energy and running costs are strengthened by fitted solar panels and an EV charging pod, while a garage and driveway provide practical parking. The property sits in a very low-crime, fast-broadband neighbourhood close to schools, parks and cycle routes into Cambridge — appealing for commuting families.
Be aware this is a new-build plot on a planned development with a relatively small private garden and an average overall floor area (approx. 834 sq ft). Tenure details are not specified and should be confirmed. The layout suits those seeking contemporary, efficient accommodation rather than a large mature garden or expansive rooms.
Overall, this house will suit buyers after a modern, low‑maintenance family home with eco-features and good transport and school links. It offers immediate move-in potential but limited outside space and compact internal proportions compared with larger family houses nearby.
3 bedroom detached house for sale in Darwin Green,
Shrewsbury Road,
CB3 0GX, CB3 — £594,995 • 3 bed • 1 bath • 761 ft²
3 bedroom detached house for sale in Darwin Green,
Shrewsbury Road,
CB3 0GX, CB3 — £599,995 • 3 bed • 1 bath • 761 ft²
3 bedroom semi-detached house for sale in Darwin Green,
Shrewsbury Road,
CB3 0GX, CB3 — £574,995 • 3 bed • 1 bath • 1024 ft²
3 bedroom detached house for sale in Darwin Green,
Shrewsbury Road,
CB3 0GX, CB3 — £554,995 • 3 bed • 1 bath • 1000 ft²
3 bedroom end of terrace house for sale in Darwin Green,
Shrewsbury Road,
CB3 0GX, CB3 — £597,995 • 3 bed • 1 bath • 1136 ft²
3 bedroom semi-detached house for sale in Darwin Green,
Shrewsbury Road,
CB3 0GX, CB3 — £573,995 • 3 bed • 1 bath • 870 ft²






































