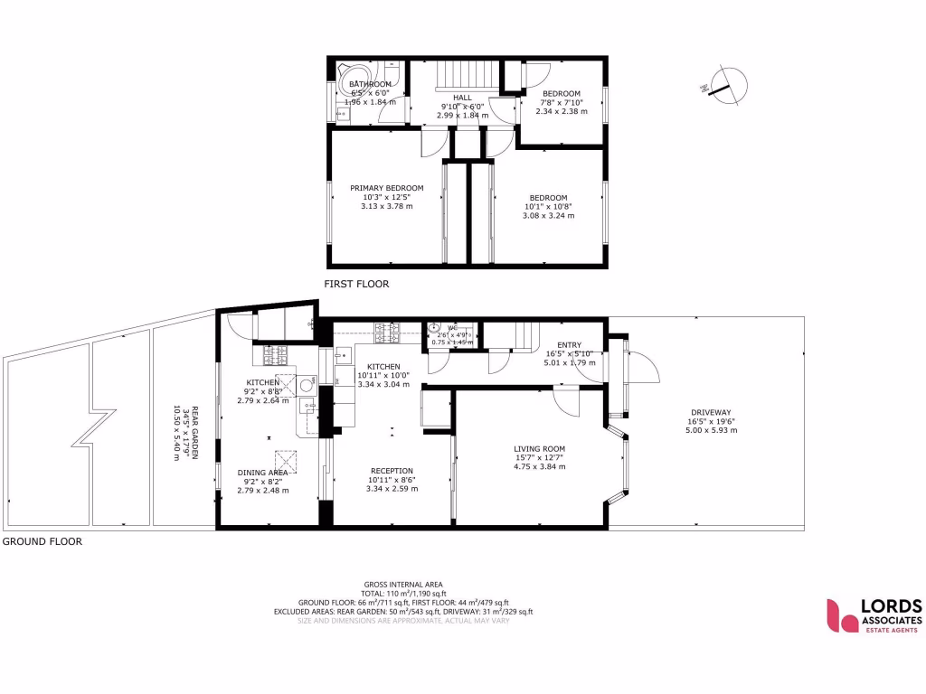
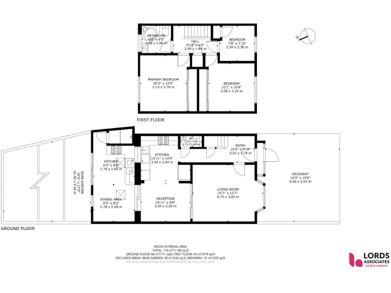
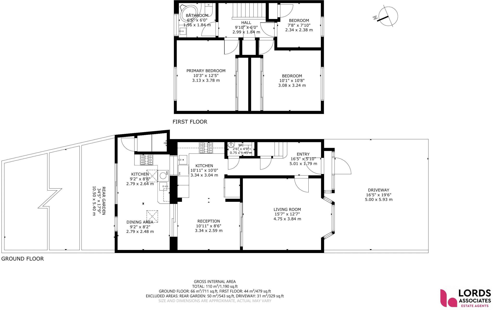
### Standout Features:
- **Three Bedrooms** with generous space
- **Open-Plan Kitchen and Living Room**: bright and modern design
- **Two Modern Bathrooms plus One WC**: added convenience
- **Large Private Garden**: ideal for families and pets
- **Spacious Driveway & Off-Street Parking**: ample vehicle space
- **Excellent Transport Links**: quick access to A40, M4, M25, and Heathrow Airport
- **Potential to Extend (Subject to Planning Permission)**: opportunity for further customization
This modern and well-maintained three-bedroom semi-detached home is a perfect blend of comfort and potential, catering to families, professionals, or savvy investors. The open-plan kitchen and living room create a bright and inviting space, ideal for entertaining or daily family life. Upstairs, you’ll find three generously sized bedrooms, supported by two stylish bathrooms and an additional WC for convenience.
The spacious private garden offers a great area for children to play or for future landscaping ventures, while the sizable driveway ensures ample off-street parking. Located in a desirable area with excellent transport links to central London and nearby airports, this home not only provides immediate comfort but also represents a sound investment opportunity with scope to extend (STPP) for those looking to create their dream space.
Don’t miss out on this chance to secure a lovely family home in a growing community!
3 bedroom semi-detached house for sale in Hornbeam Road, Hayes, UB4 — £570,000 • 3 bed • 1 bath • 898 ft²
2 bedroom semi-detached house for sale in Longhook Gardens, Northolt, UB5 — £324,950 • 2 bed • 1 bath • 547 ft²
3 bedroom semi-detached house for sale in Rushdene Crescent, Northolt, Greater London, UB5 — £630,000 • 3 bed • 2 bath • 1652 ft²
3 bedroom semi-detached house for sale in Home Close, Northolt, UB5 — £515,000 • 3 bed • 1 bath • 958 ft²
3 bedroom semi-detached house for sale in Daleham Drive, Uxbridge, UB8 — £595,000 • 3 bed • 1 bath • 1060 ft²
3 bedroom semi-detached house for sale in Rowan Road, West Drayton, UB7 — £535,000 • 3 bed • 1 bath • 927 ft²


























































