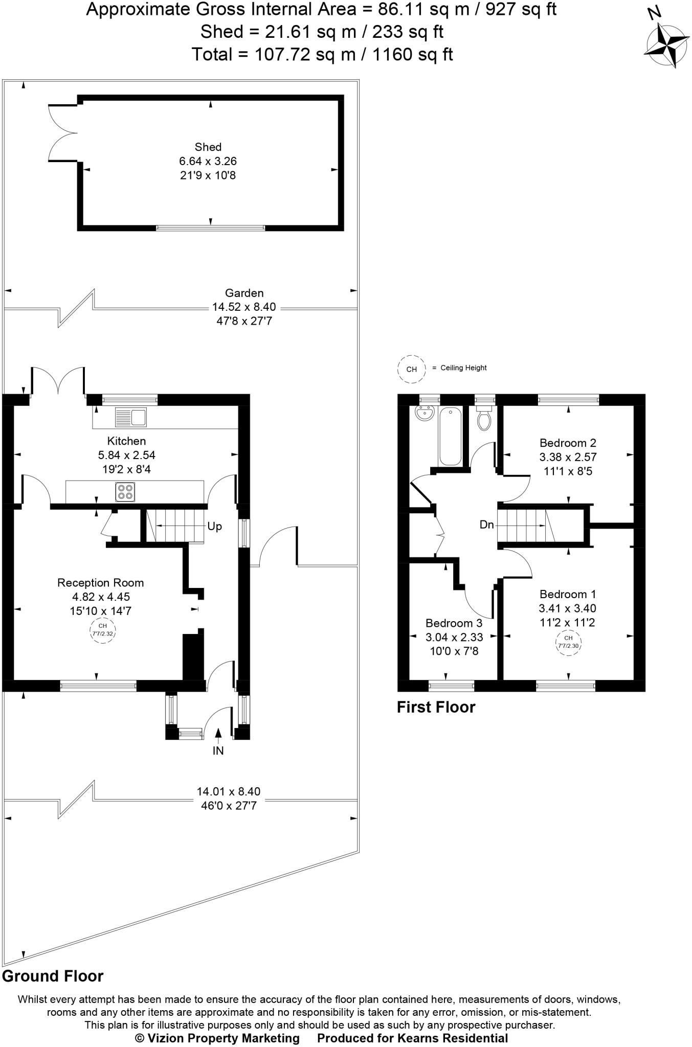
**Standout Features:**
- Three spacious bedrooms, ideal for families or those needing extra space
- Expansive garden perfect for entertaining and relaxation
- Off-street driveway parking for multiple vehicles
- Modern interior with plenty of natural light
- Excellent transport links and nearby amenities
- Freehold tenure
**Potential Concerns:**
- Located in an area with above-average crime rates
- Urban setting with a high level of deprivation
Discover a beautiful semi-detached home that perfectly marries comfort and convenience. This charming property offers three well-sized bedrooms, ideal for families looking to grow or those desiring extra room. The generously sized garden provides a serene escape or venue for summer gatherings, while the large driveway can accommodate multiple cars. Inside, experience modern living with bright, open spaces and plentiful natural light to enhance the cheerful ambiance.
Situated in a suburban locale with great transport links, you’re just a stone’s throw away from various local amenities, making everyday life more manageable. Although the area faces some challenges with crime rates and socio-economic factors, this property holds the potential for an owner to create a haven of comfort and style. With its freehold status and flexible space, you may also envision future renovations or expansions that can further elevate your investment. Don’t miss out on this unique opportunity to own a delightful home designed for modern living!
3 bedroom semi-detached house for sale in Heath Road, Uxbridge, Greater London, UB10 — £465,000 • 3 bed • 1 bath • 753 ft²
3 bedroom end of terrace house for sale in Berberis Walk, West Drayton, UB7 — £500,000 • 3 bed • 1 bath • 878 ft²
3 bedroom end of terrace house for sale in Mulberry Crescent, West Drayton, UB7 — £550,000 • 3 bed • 1 bath • 1292 ft²
2 bedroom semi-detached house for sale in St. Christopher Road, Uxbridge, UB8 — £415,000 • 2 bed • 1 bath • 726 ft²
3 bedroom semi-detached house for sale in Ash Grove, Yiewsley, West Drayton, UB7 — £515,000 • 3 bed • 1 bath • 1500 ft²
3 bedroom semi-detached house for sale in Drayton Gardens, West Drayton, UB7 — £520,000 • 3 bed • 1 bath • 929 ft²










































































