LS9 0LW - 3 bed three bedroom semi detached in Leeds Central, LS9 0LW

View on Property Piper

3 bedroom semi-detached house for sale in Osmondthorpe Lane, Leeds, West Yorkshire, LS9

Summary - 89, OSMONDTHORPE LANE LS9 0LW

3 bed 1 bath Semi-Detached

Auction opportunity close to Leeds for investors or renovators.
Auction sale with vacant possession, guide price £100,000+
Offered for sale at auction with vacant possession, this three-bedroom semi-detached house sits about two miles east of Leeds city centre. The property carries a guide price of £100,000+ and will appeal to investors and developers seeking a straightforward refurbishment or rental opportunity. It has off-street parking, a generous rear garden and basic gas central heating.

Internally the home is in lived-in condition after long-term rental and requires updating — cosmetic decoration and likely some maintenance to bring rooms up to modern standards. The property has one bathroom, double glazing (unknown install date) and cavity walls; the energy rating is D. Council Tax band A keeps ongoing costs low.

Location strengths include quick access to Leeds, a mix of local amenities, several nearby primary and secondary schools, and fast broadband. Material considerations: the area is classified as very deprived and in a hampered neighbourhood, which can affect rental yields, resale timing and mortgage availability for some buyers.

This sale suits a cash buyer or investor prepared to refurbish and re-let, or a small developer looking to improve value. Buyers should budget for standard updating works and factor the auction timetable and local market conditions into their bidding strategy.

Property Details

Image Descriptions

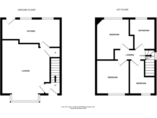
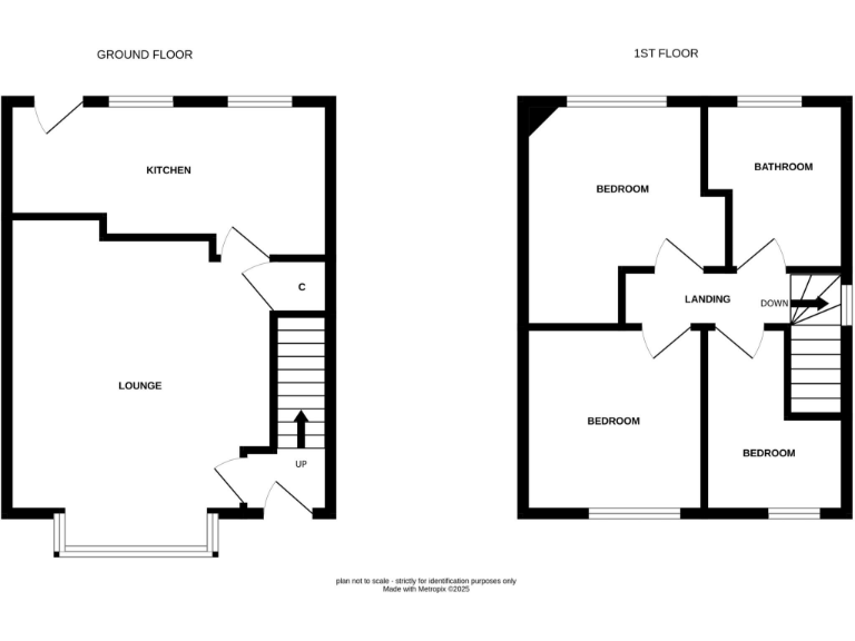
Floorplan Description

Rooms

Textual Property Features

Target Audience

AI Tags

Detected Visual Features

EPC Details

Nearby Schools

Nearest Bars And Restaurants

,,,,}

Nearest General Shops

,,}

Nearest Grocery shops

,,}

Nearest Supermarkets

,,}

Nearest Religious buildings

,,}

Nearest Medical buildings

,,,}

Nearest Airports

}

Nearest Leisure Facilities

,,,,}

Nearest Tourist attractions

,,}

Nearest Train stations

,,,,}

Nearest Bus stations and stops

,,,,}

Nearest Hotels

,,}

Tags

Local Market Stats

AirBnB Data

Similar Properties

Meta

High Res Images

Compatible Images

Low res Images

Thumbnails

Raw Images

High Res Floorplan Images

Compatible Floorplan Images

Low res Floorplan Images

FloorplanImages Thumbnail

Raw Floorplan Images