Well-presented three-bed near Chester with low-maintenance garden and garage.
Detached three-bedroom home in a quiet cul-de-sac
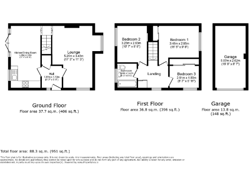
A neatly presented three-bedroom detached home set at the end of a peaceful cul-de-sac, ideal for young families, first-time buyers or downsizers. The dual-aspect lounge and modern kitchen/dining room with French doors create bright, sociable living spaces that flow to a private, low-maintenance garden. A single detached garage and private driveway offer secure parking and useful storage.
Internally the house is stylishly finished with double glazing and a contemporary family bathroom. The layout works well for everyday family life: three well-proportioned bedrooms upstairs, an open-plan feel on the ground floor and handy under-stairs storage. The overall footprint is modest (about 802 sq ft), making the property manageable to run and maintain.
Buyers should note the home has only one bathroom and a smaller overall size, which may feel limiting for larger households or those wanting more living space. The wider area is classified as relatively deprived despite low local crime and good transport links; essential services and several highly regarded schools are nevertheless close by. The property dates from the 1980s and appears well cared for, but any buyer should confirm services and condition during survey and conveyancing.
With fast local broadband, mains gas heating and an EPC C rating, the house offers practical, modern comforts in an established suburb close to Chester. For purchasers seeking a comfortable, low-maintenance family home with scope to personalise, this offers clear appeal within reach of the city and commuter routes.
3 bedroom semi-detached house for sale in Leyland Drive, Saltney Ferry, CH4 — £229,995 • 3 bed • 1 bath • 776 ft²
3 bedroom detached house for sale in Lansdowne Grove, Chester, CH4 — £400,000 • 3 bed • 1 bath • 1173 ft²
3 bedroom detached house for sale in Constantine Close, Chester, CH4 — £550,000 • 3 bed • 3 bath • 1399 ft²
3 bedroom semi-detached house for sale in Dale Close, Chester, CH3 — £340,000 • 3 bed • 2 bath • 961 ft²
3 bedroom semi-detached house for sale in Cleves Close, Blacon, CH1 — £230,000 • 3 bed • 1 bath • 766 ft²
4 bedroom detached house for sale in Alanbrooke Road, Saighton, Chester, Cheshire, CH3 — £495,000 • 4 bed • 2 bath • 1532 ft²


















































































