Ready to move into with large garden and multiple parking spaces.
- Recently renovated throughout; move‑in ready
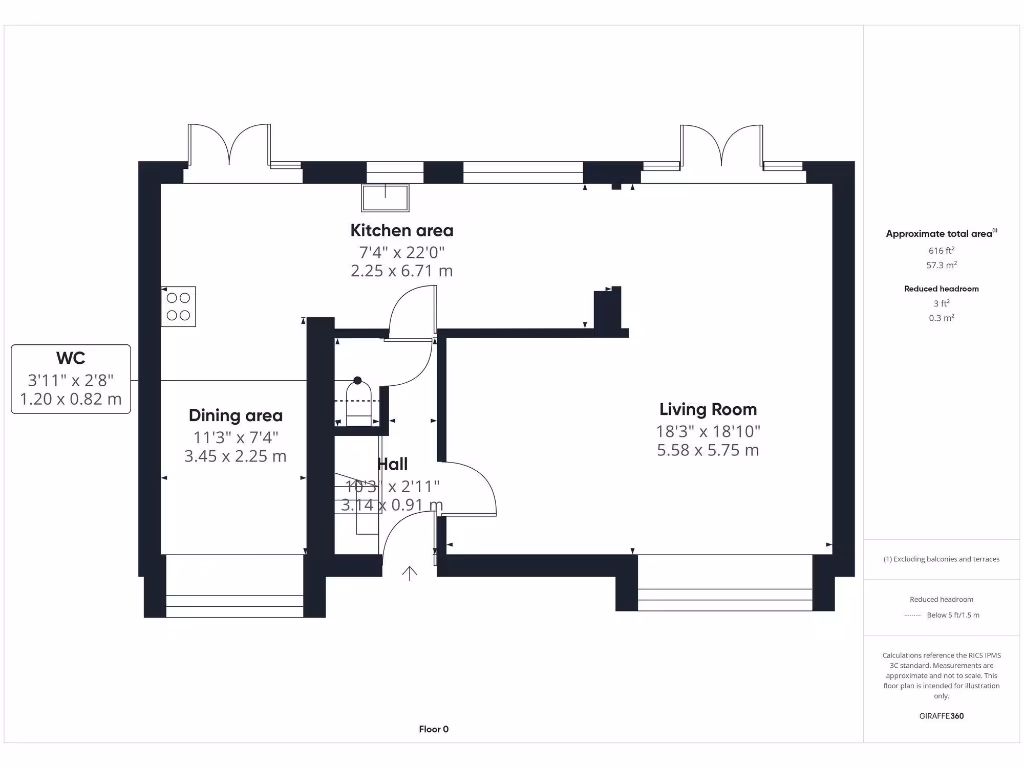
- Spacious open‑plan kitchen/dining/living with integrated appliances
- Private rear garden with raised decking, patio and multiple seating areas
- Off‑street parking for multiple vehicles and side access
- Three bedrooms; two with built‑in storage, one family bathroom
- Large plot in quiet cul‑de‑sac, sought‑after local amenities nearby
- EPC rating D; constructed c.1967–1975 (period maintenance considerations)
- Council tax above average
Tucked at the end of a quiet cul‑de‑sac, this recently renovated three‑bedroom detached home is ready to move into. The ground floor offers a bright, open‑plan kitchen/dining/living space with integrated appliances, a front lounge bay and French doors leading to a private rear garden with raised decking, patio and multiple seating areas.
Upstairs are three well‑proportioned bedrooms (two with built‑in storage) and a stylish family bathroom. The property sits on a large plot with off‑street parking for multiple vehicles and side access to the garden. Broadcasters, mobile and broadband connections are strong and the area is served by several well‑regarded primary and secondary schools.
Practical points to note: the home was constructed in the late 1960s/early 1970s and, although newly renovated throughout, it has an EPC rating of D and one family bathroom. Council tax is above average. The property is freehold and offers scope to personalise further if desired.
3 bedroom detached house for sale in Forge Way, Chester, CH4 — £300,000 • 3 bed • 1 bath • 797 ft²
3 bedroom detached house for sale in Lansdowne Grove, Chester, CH4 — £350,000 • 3 bed • 1 bath • 1359 ft²
3 bedroom detached house for sale in Marian Drive, Great Boughton, CH3 — £325,000 • 3 bed • 1 bath • 969 ft²
3 bedroom detached house for sale in Lansdowne Grove, Chester, CH4 — £300,000 • 3 bed • 2 bath • 1875 ft²
3 bedroom semi-detached house for sale in Sedgefield Road, Chester, CH1 — £290,000 • 3 bed • 2 bath • 678 ft²
3 bedroom detached house for sale in Garden Village, Saltney, CH4 — £250,000 • 3 bed • 2 bath • 872 ft²










































































