**Standout Features:**
- Prime town center location within walking distance to beaches, bars, and restaurants.
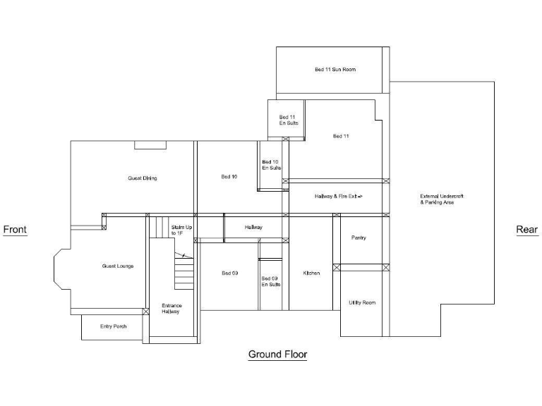
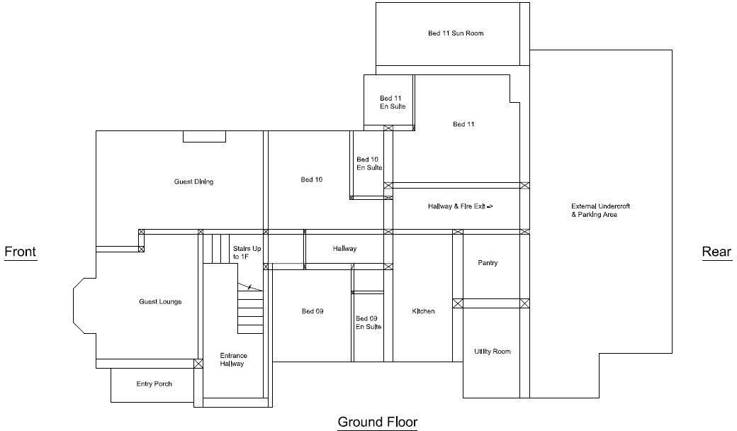
- 15 versatile hotel and letting rooms, ideal for holiday or business travelers.
- Characterful Art Deco style with central heating and double glazing throughout.
- Significant business improvement potential due to current limited trading.
- Freehold property with off-street parking and a mature garden.
- Flexible layout suitable for family living or hospitality ventures.
- Planning permission guidance needed for changes in use.
**Summary:**
Located in the heart of Bournemouth, this exquisite Art Deco property presents an exceptional opportunity for investors or those seeking a fresh start in hospitality. With 15 diverse hotel and letting rooms, ample communal spaces, and a commercial kitchen, this establishment is perfectly positioned to become a lucrative venture, especially given its proximity to the city’s stunning beaches and vibrant nightlife.
The current owners’ semi-retirement has led to restricted trading, showcasing the remarkable potential for growth and revitalization for the next owner. With features that include off-street parking, a serene garden, and a reputation for quality service, this freehold property is poised for both personal enjoyment or as an investment with promising returns.
While the property does require some redecoration in certain areas, this presents a blank canvas for customization and future expansions, should planning permissions allow. Don’t miss out on this unique chance to step into a well-established business in one of the UK's most desired coastal locations—viewings are essential!
15 bedroom detached house for sale in Tregonwell Road, Bournemouth, BH2 — £1,050,000 • 15 bed • 13 bath
14 bedroom terraced house for sale in West Hill Road, Bournemouth, BH2 — £700,000 • 14 bed • 10 bath • 668 ft²
14 bedroom terraced house for sale in West Hill Road, Bournemouth, BH2 — £700,000 • 14 bed • 12 bath
10 bedroom hotel for sale in Boscombe Reef Hotel, 15 Westby Road, Bournemouth, BH5 1HA, BH5 — £625,000 • 10 bed • 1 bath
Hotel for sale in The Beach House, 54 St Michaels Road, Bournemouth, BH2 5DY, BH2 — £750,000 • 1 bed • 1 bath
Hotel for sale in Bournemouth West Cliff Hotel, 7 Durley Chine Road, Bournemouth, BH2 5JS, BH2 — £7,500,000 • 1 bed • 1 bath


















































































