Freehold 15-bedroom building with strong revival and conversion potential.
15 bedrooms with many ensuite rooms suitable for continued hospitality use or conversion
Short walk to beach, bars and restaurants — strong town-centre trading location
Freehold sale including goodwill at £1,050,000; genuine retirement sale
Garden, covered parking area and extra side parking on a decent corner plot
Dated decor, signs of wear and potential damp in reception/staircase — refurbishment needed
Buyer pays a fee of 1.5% plus VAT on purchase; factor into offer costs
Change of use or major alterations will require planning consent and consultant advice
High-crime neighbourhood classification — consider operational/security implications
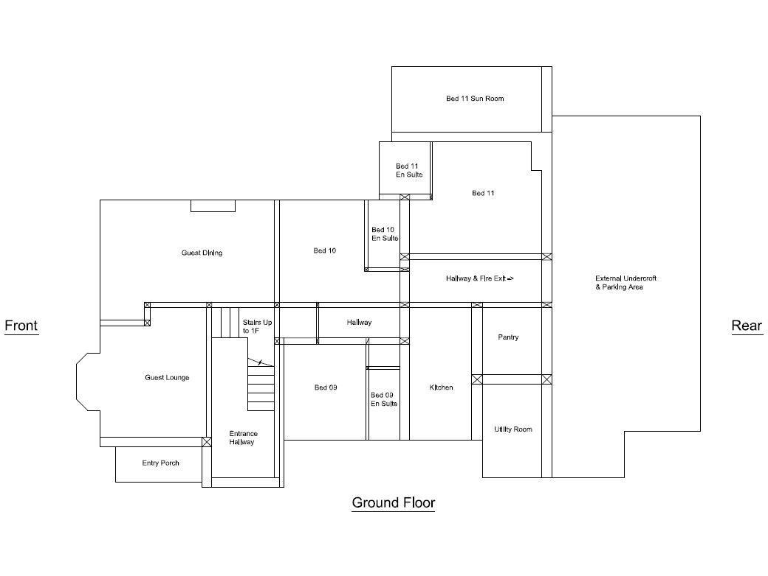
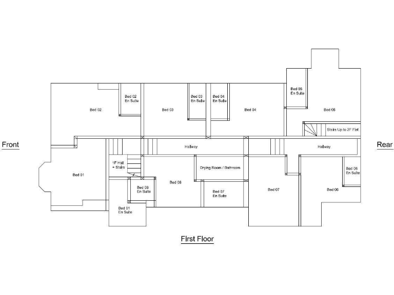
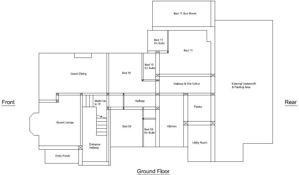
This substantial 15-bedroom detached property on Tregonwell Road is offered as a genuine retirement sale and presents a rare freehold opportunity in central Bournemouth. Set on a decent corner plot with garden and extra side parking, the building currently operates as a mixed hotel and letting house with many ensuite rooms and a commercial kitchen — ideal for a new owner to revive trading or reconfigure for alternative uses (subject to planning).
The layout spans ground, first and second floors with about 32 rooms in total, tall ceilings and 1930s character features. The town-centre location is a short walk from the beach, bars and restaurants, supporting year-round visitor demand. The property has central heating and double glazing throughout and benefits from excellent mobile signal and fast broadband — useful for modern hospitality or multi-let conversion.
There are clear areas for investment: several rooms and communal spaces show dated decor and wear, and parts of the reception/staircase indicate past damp and general maintenance needs. Any change of use would require planning advice before works. Buyers should note a buyer’s fee of 1.5% plus VAT is payable on completion and the sale includes goodwill at the asking price of £1,050,000.
This listing will suit experienced hoteliers or investors seeking a town-centre income asset with strong turnaround potential, or a developer comfortable with refurbishment and planning-led conversion. Viewings are advised to assess the operational layout and scope for income uplift.
15 bedroom hotel for sale in Tregonwell Road, Bournemouth, BH2 — £1,050,000 • 15 bed • 13 bath
14 bedroom terraced house for sale in West Hill Road, Bournemouth, BH2 — £700,000 • 14 bed • 10 bath • 668 ft²
14 bedroom terraced house for sale in West Hill Road, Bournemouth, BH2 — £700,000 • 14 bed • 12 bath
5 bedroom terraced house for sale in Purbeck Road, Bournemouth, Dorset, BH2 5EF, BH2 — £475,000 • 5 bed • 3 bath • 1616 ft²
26 bedroom hotel for sale in Boscombe Spa Road, Bournemouth, Dorset, BH5 — £1,600,000 • 26 bed • 19 bath • 8911 ft²
Hotel for sale in Bournemouth West Cliff Hotel, 7 Durley Chine Road, Bournemouth, BH2 5JS, BH2 — £7,500,000 • 1 bed • 1 bath


































































































