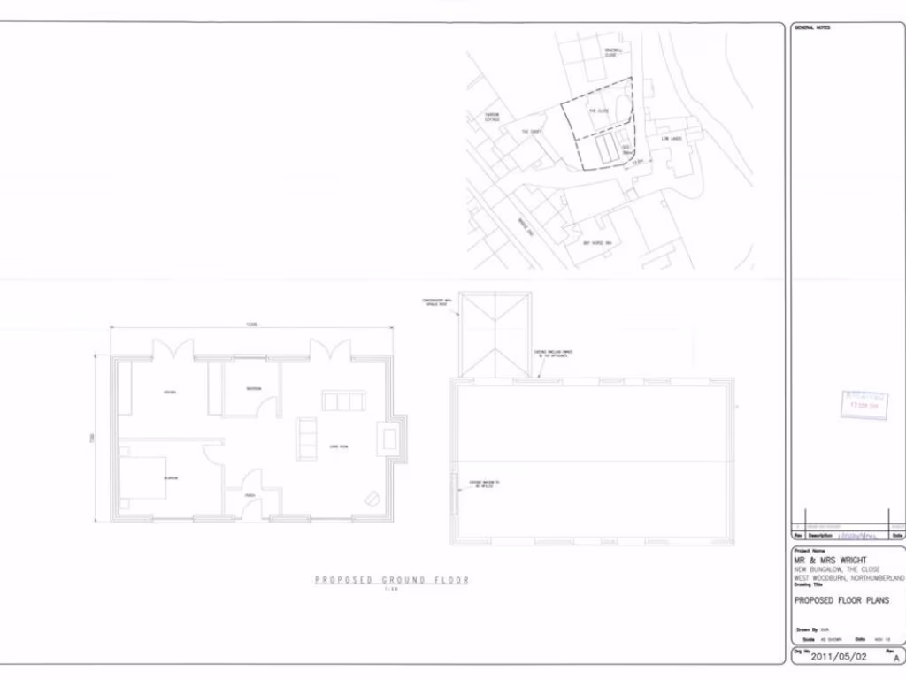
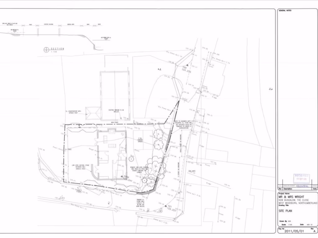
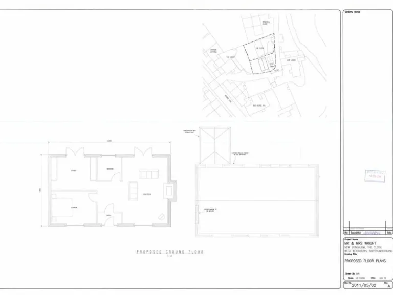
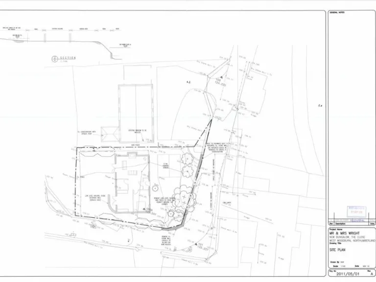
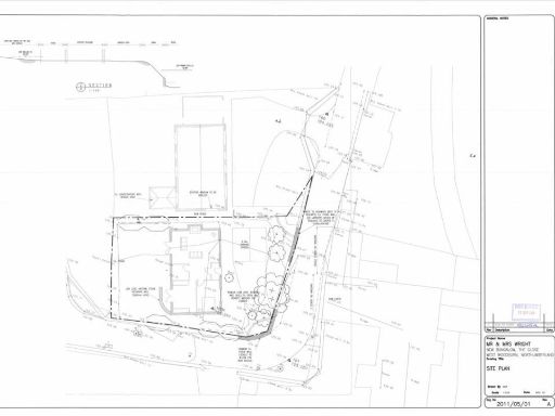
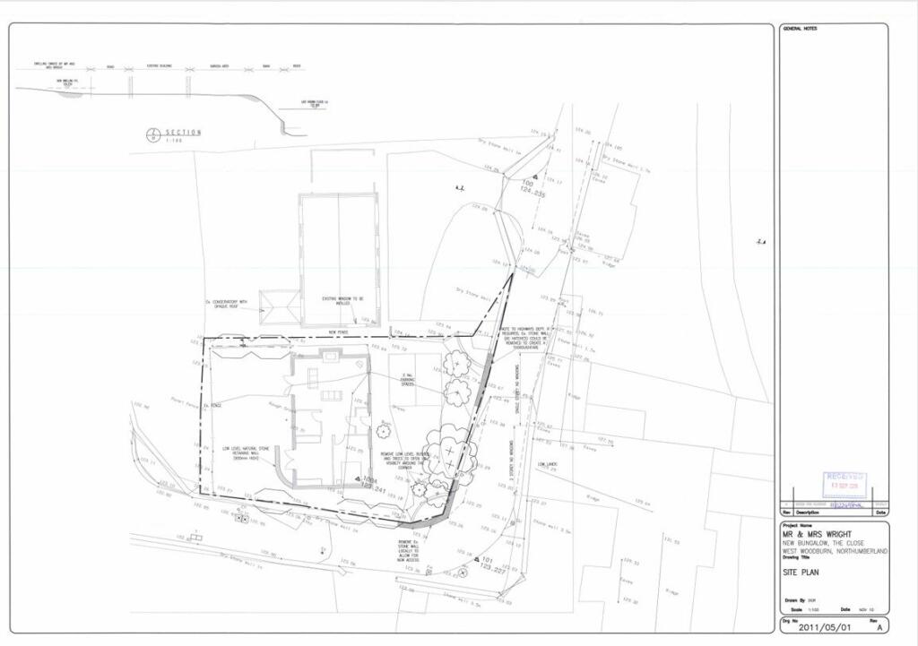
**Standout Features:**
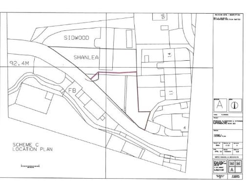
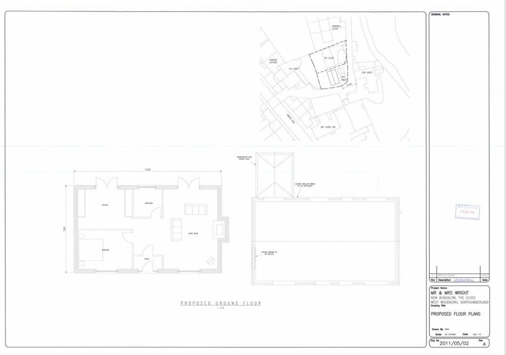
- **Location:** 0.09-acre plot with planning permission for a dormer bungalow in a tranquil rural setting.
- **Access:** Located in West Woodburn, just off the A68, providing convenient travel to Otterburn and Newcastle.
- **Community Amenities:** Close to an independent pub, village shop, and hall, all within 0.5 miles.
- **Garden Space:** Ample outdoor space available for landscaping and a driveway.
**Summary:**
This 0.09-acre plot with approved planning permission for a dormer bungalow is an excellent opportunity for anyone looking to create their dream home in the serene countryside of Northumberland. Nestled in the picturesque village of West Woodburn, the property boasts a large garden, allowing for a private oasis with ample space for outdoor activities.
With exceptional accessibility via the A68, you can enjoy both rural charm and the convenience of nearby amenities, including a pub and shop. This plot is ideal for self-build enthusiasts aiming to invest in a family-friendly environment with good local schools, such as nearby Otterburn Primary School. However, potential buyers should be aware that they will be participating in a secure online bidding process, so act quickly to secure this unique opportunity, perfect for a peaceful rural retreat or a smart investment in a growing area.
Land for sale in Elsdon, Northumberland, NE19 — £175,000 • 1 bed • 1 bath • 1739 ft²
Plot for sale in Wark, Northumberland, NE48 — £95,000 • 1 bed • 1 bath
Land for sale in Land At Weywood, Humshaugh, Northumberland, NE46 — £40,000 • 1 bed • 1 bath
4 bedroom detached house for sale in , West Woodburn, Hexham, NE48 — £525,000 • 4 bed • 3 bath • 2554 ft²
3 bedroom bungalow for sale in Wark, Northumberland, NE48 — £295,000 • 3 bed • 1 bath • 861 ft²
Land for sale in Land At Old Town Farm, Otterburn, Newcastle Upon Tyne, NE19 — £490,000 • 1 bed • 1 bath


































