Victorian former pub with planning permission on a large plot — full renovation required..
Planning permission in place (Cheshire East ref 22/1393M)
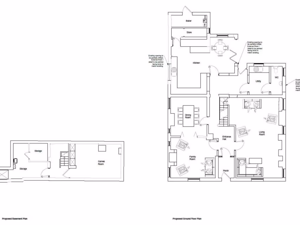
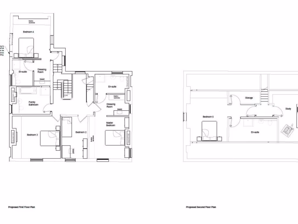
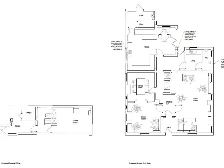
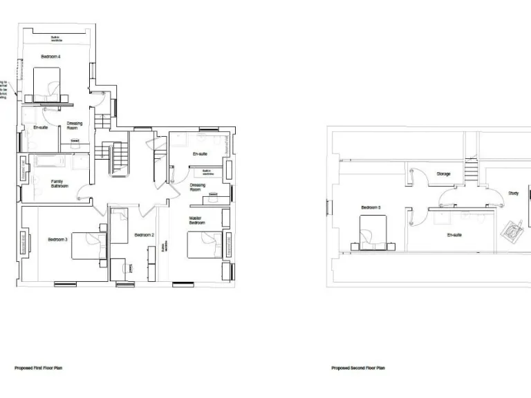
A rare conversion opportunity: a derelict former public house on Leek Road with planning permission (Cheshire East ref 22/1393M) to convert to a residential dwelling. Set on a very large plot with open countryside views to the rear, the site offers scope for a substantial family home with parking and generous gardens.
The building is Victorian in character with traditional masonry, pitched roof and chimneys, but it requires comprehensive renovation — current condition shows damp, chipping paint and general dereliction. Purchasers should expect a full refurbishment or partial reconstruction; utilities, internal layout and finishes will need attention. The property is freehold and flood risk is nil.
Location suits buyers seeking rural living with strong digital connectivity — excellent mobile signal and fast broadband — and low local crime. The immediate setting is a hamlet/isolated dwelling within an affluent, prospering countryside area, with several well-rated local primary and secondary schools nearby. The asking price is £350,000.
This is appropriate for an investor or developer looking to complete the permitted conversion, or a family wanting to create a bespoke home on a large plot. Be realistic about renovation costs and timescale; planning is in place but on-site works and remedial damp treatment will be required before occupation.
3 bedroom detached house for sale in Birtles Farm, Hocker Lane, Over Alderley, Cheshire, SK10 — £595,000 • 3 bed • 3 bath • 2260 ft²
Residential development for sale in 61 Rainow Road, Macclesfield, Cheshire, SK10 — £425,000 • 1 bed • 1 bath • 10000 ft²
Land for sale in Development Land at Thorncliffe, Leek, ST13 — £225,000 • 1 bed • 1 bath • 2139 ft²
5 bedroom detached house for sale in Private Lane Off Prestbury Road, Over Alderley, Cheshire, SK10 — £1,000,000 • 5 bed • 4 bath • 4265 ft²
4 bedroom barn conversion for sale in Hooleyhey Lane, Macclesfield, SK10 — £350,000 • 4 bed • 3 bath
Residential development for sale in Sugar Street, SK11 — £2,600,000 • 1 bed • 1 bath






































