Affordable three-bedroom end terrace with garage and gardens — ideal for first-time buyers or young families.
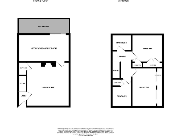
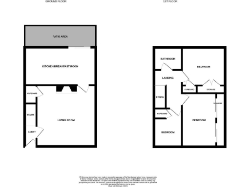
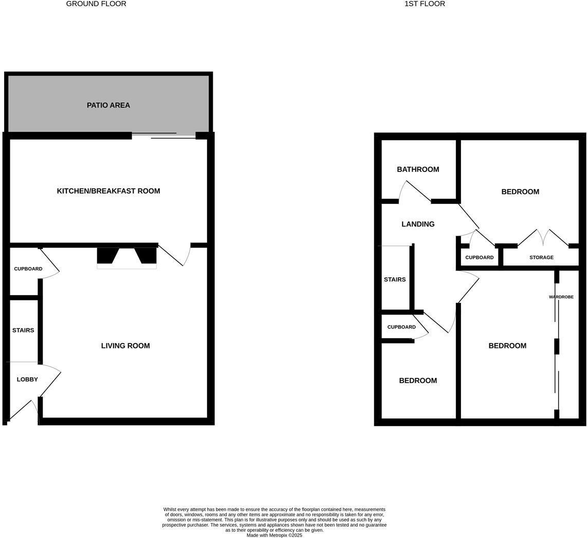
Three bedrooms with built-in robes to master
Well-tended front and rear gardens, small plot
Garage in nearby block (not attached)
Compact footprint — approx. 595 sq ft
Single family bathroom; no en-suite
Close to new Northumberland train line and schools
Area shows deprivation; crime above average
Freehold with low council tax and fast broadband
This well-proportioned three-bedroom end terrace sits in Seaton Delaval, offering affordable family living close to schools, local shops and the newly opened Northumberland train line. The ground floor offers a front lounge with feature fireplace, a dining room with patio doors that open onto a well-tended rear garden, and a fitted kitchen — straightforward spaces that suit everyday family life. The first floor has three bedrooms, the master with built-in robes, and a single family bathroom with shower over the bath.
Outside there are pleasant front and rear gardens and a nearby garage in a shared block. The plot and overall footprint are modest, which keeps maintenance manageable and running costs low; council tax is notably cheap. Broadband and mobile signal are strong, making the home suitable for remote working and modern connectivity needs.
Important points to note: the property is compact (approximately 595 sq ft) and the garage is not attached to the house. The surrounding area shows signs of socioeconomic deprivation and local crime levels are above average — factors to consider for buyers prioritising neighbourhood profile. The house presents good scope for updates or cosmetic improvement should a buyer wish to personalise to taste.
For a first-time buyer or young family looking for an affordable, well-located starter home with gardens and good transport links, this property offers a clear, practical proposition. Viewing is recommended to appreciate the layout and garden aspects in person.
3 bedroom terraced house for sale in Ridsdale Close, Seaton Delaval, NE25 — £180,000 • 3 bed • 1 bath • 948 ft²
3 bedroom semi-detached house for sale in Whitfield Road, Seaton Delaval, Whitley Bay, NE25 — £239,950 • 3 bed • 1 bath • 909 ft²
3 bedroom semi-detached house for sale in Washington Grove, Seaton Delaval, Whitley Bay, NE25 — £220,000 • 3 bed • 2 bath • 877 ft²
3 bedroom semi-detached house for sale in Denham Drive, Seaton Delaval, NE25 — £239,950 • 3 bed • 1 bath • 722 ft²
3 bedroom semi-detached house for sale in Capheaton Way, Seaton Delaval, Whitley Bay, NE25 — £240,000 • 3 bed • 2 bath • 1027 ft²
4 bedroom detached house for sale in Western Avenue, Seaton Delaval, Whitley Bay, Northumberland, NE25 0EA, NE25 — £290,000 • 4 bed • 2 bath • 1363 ft²






















































