Ready-to-move-in three-bedroom semi with garage and train link nearby.
Three-bedroom semi-detached family home, ready to move in
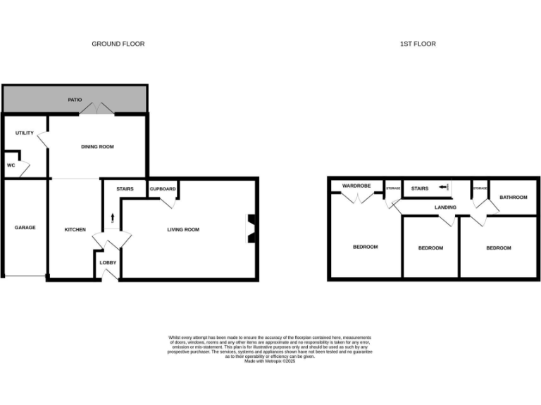
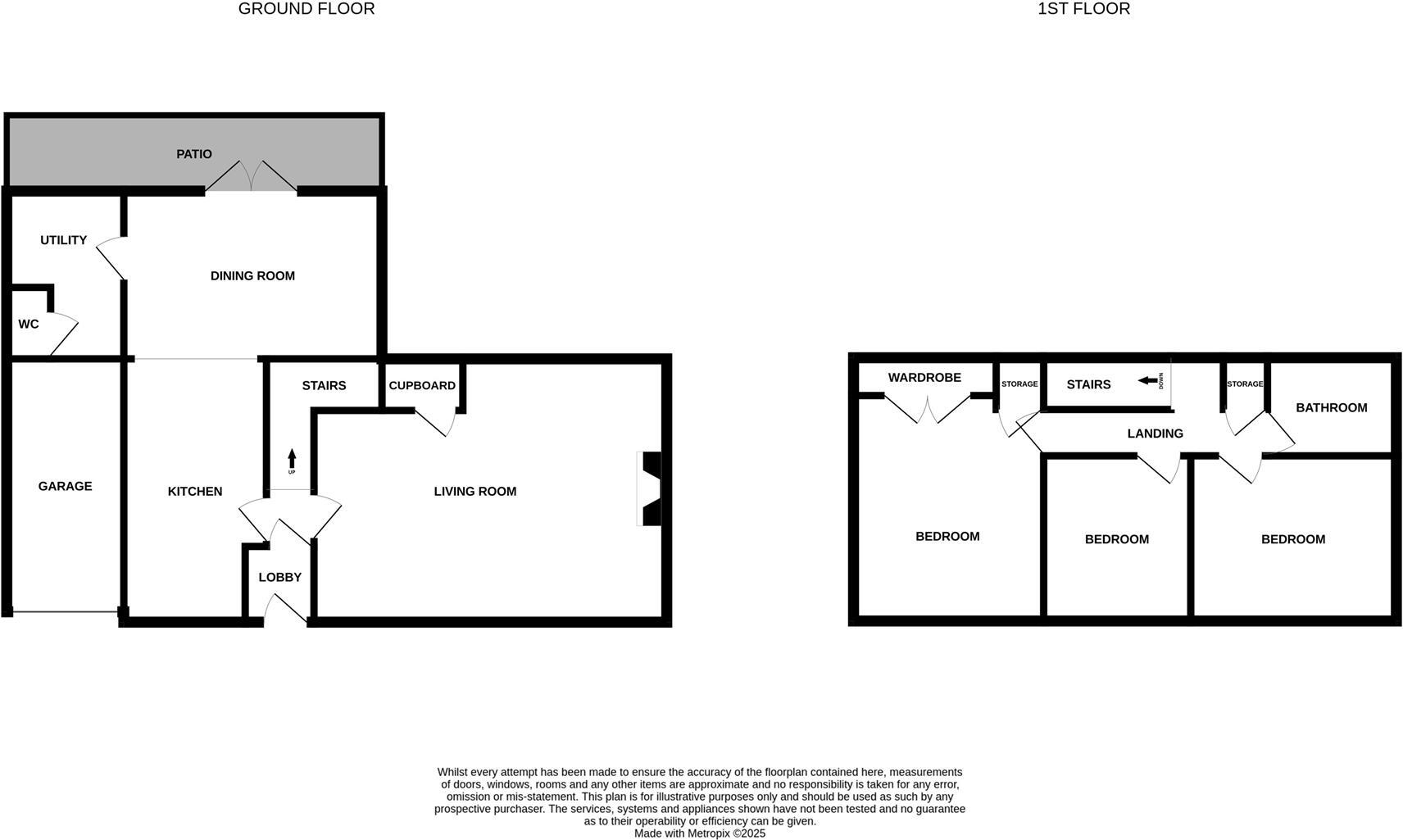
A ready-to-move-in three-bedroom semi-detached house arranged over two storeys, ideal for families or first-time buyers seeking straightforward, well-maintained accommodation. The ground floor features a 19ft lounge/diner, a re-fitted kitchen, extended family room with Velux windows and doors to the rear garden, plus a useful utility and ground-floor WC. Upstairs are three well-proportioned bedrooms and a family bathroom. The property benefits from gas central heating, UPVC double glazing and an attached garage with driveway parking.
Practical features include a decent-sized plot with front and rear gardens and an overall footprint suited to family life. The nearby newly opened Northumberland train line and local amenities make daily travel and shopping convenient. Local schools rated Good provide a clear advantage for families.
Important negatives to note: the local area records higher crime and scores as relatively deprived, which may concern some buyers. The house, built in the mid-20th century, appears well maintained but typical period elements mean buyers should verify age-related maintenance (roof, services) during inspection. Garden size is average for the area and there are no long-distance views. Tenure is Freehold and there is no flood risk.
Overall this is a practical, family-sized home sold in good condition and ready for immediate occupation, offering sensible commuter links and school access but requiring buyers to weigh local-area crime and deprivation factors against the property’s strengths.
3 bedroom semi-detached house for sale in Denham Drive, Seaton Delaval, NE25 — £239,950 • 3 bed • 1 bath • 722 ft²
3 bedroom semi-detached house for sale in Capheaton Way, Seaton Delaval, Whitley Bay, NE25 — £240,000 • 3 bed • 2 bath • 1027 ft²
3 bedroom semi-detached house for sale in Sinclair Gardens, Seaton Delaval, Whitley Bay, NE25 — £249,950 • 3 bed • 1 bath • 723 ft²
3 bedroom semi-detached house for sale in Washington Grove, Seaton Delaval, Whitley Bay, NE25 — £220,000 • 3 bed • 2 bath • 877 ft²
3 bedroom terraced house for sale in Ridsdale Close, Seaton Delaval, NE25 — £180,000 • 3 bed • 1 bath • 948 ft²
4 bedroom detached house for sale in Western Avenue, Seaton Delaval, Whitley Bay, Northumberland, NE25 0EA, NE25 — £290,000 • 4 bed • 2 bath • 1363 ft²






































































