Spacious open-plan family living with garage and en-suite.
Chain free new-build with 10-year NHBC Buildmark warranty
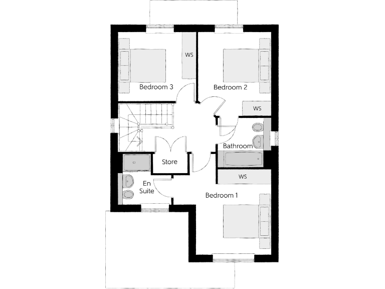
A newly built three-bedroom detached home on a large plot, The Sawyer offers contemporary family living with practical daily comforts. The ground floor has a formal living room plus an open-plan kitchen, dining and family area with a feature bay and French doors to the garden. The layout includes understairs storage, a downstairs cloakroom and an integral garage accessed from outside.
Upstairs are three double bedrooms, with an en-suite to the principal bedroom and a family bathroom serving the other rooms. The home comes with a 10-year NHBC Buildmark policy and is sold chain free, making it straightforward to move into once complete. Broadband and mobile signal are described as strong, useful for home-working or streaming.
Important facts to note: the development sits in an area classified as very deprived and locally described as ‘challenged white communities’, which may affect resale perceptions. There is an annual estate management charge (listed at £145.38) and council tax banding is not yet confirmed. The garage is integral but accessed from outside, and any buyer wanting immediate mature landscaping should allow for garden planting and finishing works.
This house will suit first-time buyers and growing families looking for a modern, low-maintenance new home with family-friendly living space and long structural warranty cover. Buyers seeking a quiet, established neighbourhood or significant private garden amenity should check the finished landscaping and wider surroundings in person.
3 bedroom detached house for sale in Caddie Road
Salford
Greater Manchester
M38 9XH, M38 — £383,995 • 3 bed • 1 bath • 1061 ft²
3 bedroom detached house for sale in Caddie Road
Salford
Greater Manchester
M38 9XH, M38 — £379,995 • 3 bed • 1 bath • 1061 ft²
3 bedroom detached house for sale in Caddie Road
Salford
Greater Manchester
M38 9XH, M38 — £369,995 • 3 bed • 1 bath • 1061 ft²
3 bedroom detached house for sale in Caddie Road
Salford
Greater Manchester
M38 9XH, M38 — £359,995 • 3 bed • 1 bath • 973 ft²
3 bedroom detached house for sale in Oakhead,
Leigh,
WN7 3EE, WN7 — £356,995 • 3 bed • 1 bath • 1092 ft²
3 bedroom detached house for sale in Caddie Road
Salford
Greater Manchester
M38 9XH, M38 — £354,995 • 3 bed • 1 bath • 970 ft²










































