**Standout Features:**
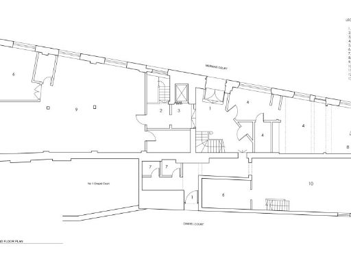
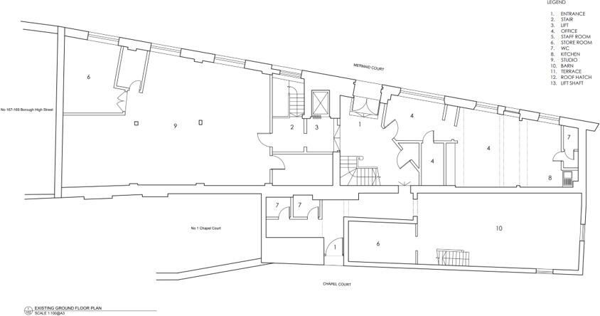
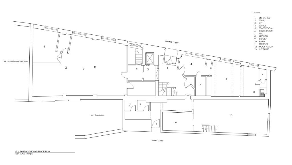
- Expansive office space totaling **6,293 square feet**
- Currently operating as an **Art School** with high ceilings (some double height)
- **Potential for multiple uses:** Residential, office, serviced apartment, or boutique hotel (subject to planning)
- **Excellent location** near Borough Market and Borough tube station
- Good natural light and features **period details** with stripped floors
- Accessible via a **passenger lift**
**Summary:**
Discover a rare investment opportunity at 165A Borough High Street, London, offering an impressive 6,293 square feet of versatile space. This expansive property, currently functioning as an Art School, features high ceilings with periods of double height and a passenger lift, showcasing its historic charm while providing a canvas for creative redevelopment. Situated just moments from the iconic Borough Market and excellent transport links, this prime location ensures excellent foot traffic and visibility. 
Potential buyers can explore various alternative uses, making it suitable for residential apartments, serviced accommodations, or even a boutique hotel—subject to planning permission. The surrounding area has seen significant regeneration, enhancing the attractiveness for future development. With its proximity to vibrant amenities and a bustling cosmopolitan atmosphere, this property presents a compelling prospect, whether you're an investor looking to expand your portfolio or a developer seeking a promising project. Act quickly—opportunities like this in such a prime location are rare and won’t last long!
 Office for sale in 301-303 & 1-3 Borough High Street & Trinity Street, London, SE1 1JH, SE1 — £4,950,000 • 1 bed • 1 bath • 6513 ft²
 Office for sale in 301-303 & 1-3 Borough High Street & Trinity Street, London, SE1 1JH, SE1 — £4,950,000 • 1 bed • 1 bath • 6513 ft² Office for sale in 58 Borough High Street, London, Greater London, SE1 1XF, SE1 — POA • 1 bed • 1 bath • 5725 ft²
 Office for sale in 58 Borough High Street, London, Greater London, SE1 1XF, SE1 — POA • 1 bed • 1 bath • 5725 ft² Office for sale in 183-185 Bermondsey Street, London, SE1 3UW, SE1 — £2,750,000 • 1 bed • 1 bath • 3652 ft²
 Office for sale in 183-185 Bermondsey Street, London, SE1 3UW, SE1 — £2,750,000 • 1 bed • 1 bath • 3652 ft² Office for sale in 166B Tower Bridge Road, London, SE1 3LZ, SE1 — £1,025,000 • 1 bed • 1 bath • 1578 ft²
 Office for sale in 166B Tower Bridge Road, London, SE1 3LZ, SE1 — £1,025,000 • 1 bed • 1 bath • 1578 ft² Office for sale in 5 Maidstone Buildings Mews, London, SE1 1GN, SE1 — £1,000,000 • 1 bed • 1 bath • 2563 ft²
 Office for sale in 5 Maidstone Buildings Mews, London, SE1 1GN, SE1 — £1,000,000 • 1 bed • 1 bath • 2563 ft² Office for sale in 5 Maidstone Buildings Mews, London, SE1 — £1,000,000 • 1 bed • 2 bath • 2563 ft²
 Office for sale in 5 Maidstone Buildings Mews, London, SE1 — £1,000,000 • 1 bed • 2 bath • 2563 ft²


























