PL27 7RS - 4 bedroom barn conversion for sale in Trebyre, Wadebridge,…

View on Property Piper

4 bedroom barn conversion for sale in Trebyre, Wadebridge, PL27

Summary - Trebyre, Treravel Farm, St Ervan PL27 7RS

4 bed 4 bath Barn Conversion

**Standout Features:**
- High specification barn conversion of over 1,700 square feet
- Four spacious double bedrooms, three with en-suites
- Extensive open-plan living areas with vaulted ceilings
- Modern kitchen with granite countertops and premium appliances
- Engineered oak herringbone flooring and underfloor heating
- Solar PV for energy efficiency
- Fully enclosed walled garden with outdoor kitchen and BBQ area
- Idyllic rural setting near scenic Padstow beaches
- Ample off-street parking
- EPC rating B and six-year building guarantee

**Summary:**
Discover Trebyre, an exceptional architect-designed barn conversion situated in the picturesque parish of St Ervan, just three miles from the stunning North Cornish coastline. This impressive four-bedroom home boasts over 1,700 square feet of contemporary living space, featuring high ceilings, engineered oak herringbone flooring, and a stylish open-plan kitchen and living area designed for both comfort and functionality. The modern kitchen offers granite work surfaces and top-of-the-line appliances, making it perfect for entertaining or family gatherings.

Step outside to your private walled garden where tranquility reigns, complete with an outdoor kitchen, built-in BBQ, and ample paved terraces for relaxation. With three of the bedrooms providing direct access to the outdoors, this property is ideal for enjoying the stunning natural surroundings. While boasting a high specification and modern amenities, potential buyers should note that the location provides average mobile signal and slow broadband speeds. This unique oasis is perfectly positioned within reach of vibrant local amenities in Padstow and St Merryn, combined with the beauty of Cornwall's coast. Don’t miss this opportunity to own a piece of serene rural living—schedule your viewing today!

Property Details

Brochure Descriptions

Image Descriptions

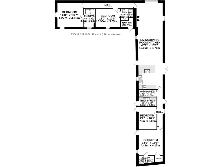
Floorplan Description

Rooms

Textual Property Features

Detected Visual Features

EPC Details

Nearby Schools

Nearest Bars And Restaurants

,,,,}

Nearest General Shops

,,}

Nearest Grocery shops

,,}

Nearest Supermarkets

,,}

Nearest Religious buildings

,,}

Nearest Medical buildings

,,,}

Nearest Leisure Facilities

,,,,}

Nearest Tourist attractions

,,}

Nearest Train stations

,,,,}

Nearest Bus stations and stops

,,,,}

Nearest Hotels

,,}

Tags

Local Market Stats

AirBnB Data

Similar Properties

Meta

High Res Images

Compatible Images

Low res Images

Thumbnails

Raw Images

High Res Floorplan Images

Compatible Floorplan Images

Low res Floorplan Images

FloorplanImages Thumbnail

Raw Floorplan Images