Chain-free detached bungalow with loft en-suite, garage and large garden — scope for cosmetic upgrading.
Detached dormer bungalow with loft en-suite and conservatory
Chain-free sale — offered with immediate vacant possession
Large plot, low-maintenance rear garden with open aspect views
Resin driveway, off-street parking and detached garage
Two ground-floor bedrooms; loft room provides extra flexible space
Requires cosmetic updating throughout — modernisation recommended
Double glazing present (installation date unknown)
Excellent location near Vangarde Shopping Park and park-and-ride
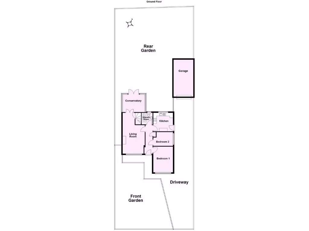
Set on Elmpark View in sought-after Heworth, this chain-free detached dormer bungalow offers comfortable, adaptable living across approximately 1,012 sq ft. The ground floor features two bedrooms, a living room with gas fire and a conservatory that overlooks a low-maintenance rear garden with open aspect views. A first-floor dormer loft room adds flexible space with its own en-suite shower.
Practical benefits include a resin driveway with ample off-street parking, a detached garage, double glazing (install date unknown), mains gas central heating and a large plot. The property sits close to Vangarde Shopping Park, local shops, park-and-ride services and good bus links into York, making it convenient for everyday errands and commuting.
The bungalow requires some cosmetic updating throughout; decorative refurbishment and modernisation will be needed to bring kitchens, bathrooms and finishes up to current tastes. Buyers should note there is a single main shower room on the ground floor and the loft is a dormer conversion — check head height and layout in person. Offered freehold with no onward chain, it suits a buyer seeking immediate occupation or a refurbishment project with strong location advantages.
2 bedroom semi-detached bungalow for sale in Hazel Garth, Heworth, York, YO31 1HR, YO31 — £270,000 • 2 bed • 1 bath • 910 ft²
3 bedroom detached bungalow for sale in Stockton Lane, Heworth, York, YO31 1JJ, YO31 — £450,000 • 3 bed • 2 bath • 1421 ft²
2 bedroom detached house for sale in Ashley Park Road, York, North Yorkshire, YO31 — £350,000 • 2 bed • 2 bath • 1151 ft²
2 bedroom detached house for sale in Whitby Avenue, York, North Yorkshire, YO31 — £300,000 • 2 bed • 1 bath • 824 ft²
2 bedroom detached bungalow for sale in Applecroft Road, York, North Yorkshire, YO31 — £328,000 • 2 bed • 1 bath • 1011 ft²
2 bedroom detached bungalow for sale in Cherry Garth, York, YO31 — £350,000 • 2 bed • 1 bath • 1030 ft²






































































