Half-acre garden with sea views and productive vegetable plot.
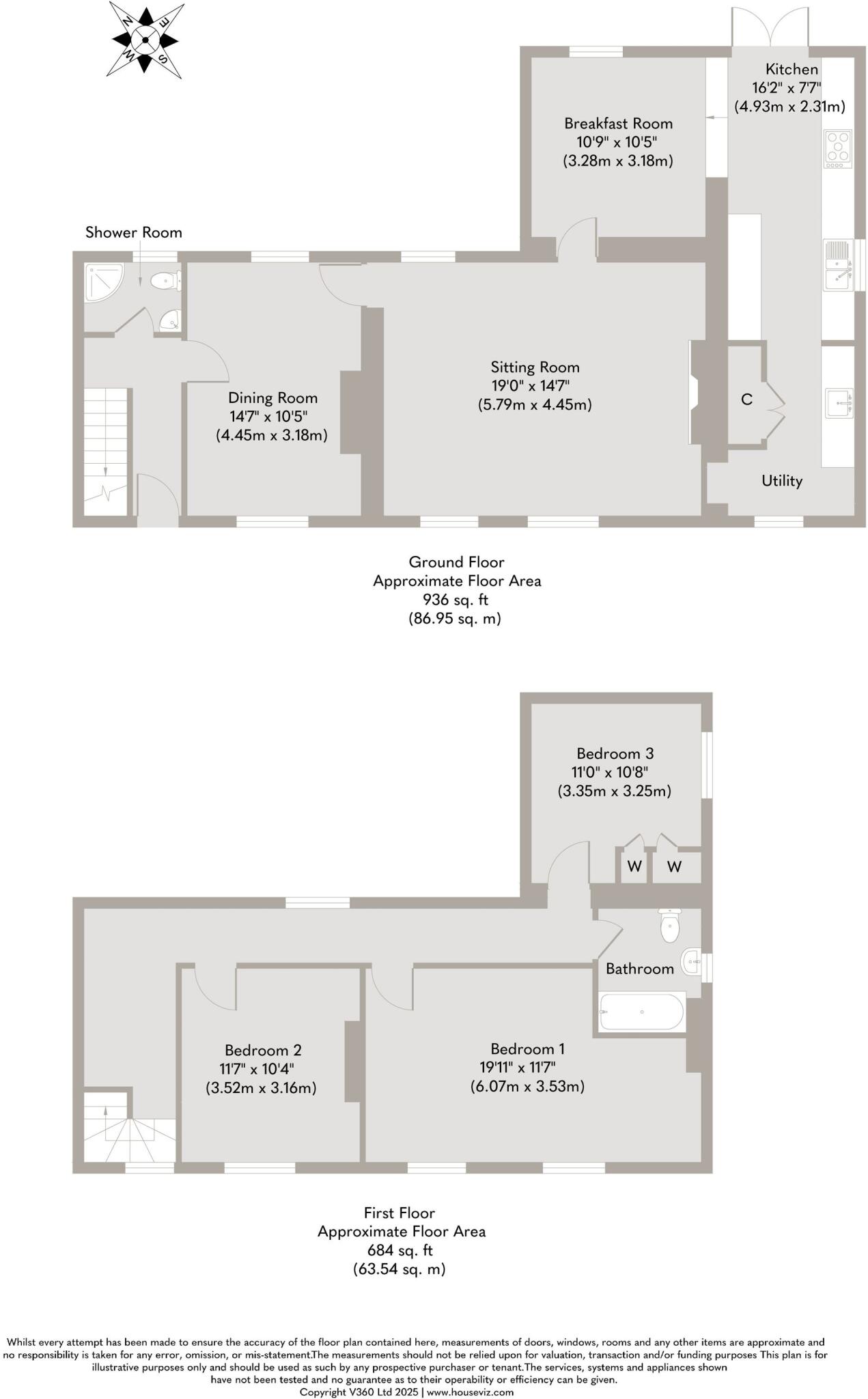
Three bedrooms and two bathrooms in a historic brick-and-flint cottage
Manor Cottage is a characterful brick-and-flint coastal home dating from an original manor farm annex with a substantial early-1900s extension. The cottage offers three well-proportioned bedrooms, two bathrooms and a series of cosy reception rooms centred around an inglenook fireplace and wood-burning stove — spaces that emphasise period charm rather than contemporary open-plan living.
Set on roughly half an acre (STMS), the grounds are a major asset: walled front garden, lawns, productive vegetable plot, fruit trees and a wildlife pond, with uninterrupted sea views from the house and garden. French doors from the country kitchen provide easy access to terraces and outdoor dining, while further land may be available by negotiation for someone seeking extra scope or privacy.
Practical considerations are straightforward but important. Heating is oil-fired with a boiler and radiators; drainage is via a septic tank and the Energy Performance Certificate is rated E. Broadband is average and the area is classed as relatively deprived, though crime is very low and mobile signal is excellent. The village location places coastal walks and beaches at the doorstep, with Cromer two miles away for shops, rail and leisure facilities.
This home will suit buyers after a distinctive coastal cottage with generous gardens and wildlife interest — those who value atmosphere and setting more than modern minimalism. Some updating and running-cost awareness (oil heating, EPC) should be factored in, but the property’s scale, plot and sea views give clear potential for family living, creative refurbishment or a lifestyle change by the Norfolk coast.
2 bedroom terraced house for sale in Delightful Chain Free Sidestrand Cottage, Full of Warmth and Possibility, NR27 — £235,000 • 2 bed • 1 bath • 587 ft²
3 bedroom character property for sale in Main Road, Sidestrand, Cromer, NR27 — £375,000 • 3 bed • 1 bath • 849 ft²
2 bedroom semi-detached house for sale in Chain Free - An Immaculately Presented Grade II Listed Cottage in Sidestrand, NR27 — £295,000 • 2 bed • 1 bath • 779 ft²
3 bedroom cottage for sale in North Walsham Road, Northrepps, Cromer, NR27 — £450,000 • 3 bed • 2 bath • 1393 ft²
3 bedroom detached house for sale in East Beckham, Norwich, NR11 — £475,000 • 3 bed • 3 bath • 1170 ft²
4 bedroom detached house for sale in Peaceful Cottage in Colby, NR11 — £650,000 • 4 bed • 2 bath • 2127 ft²










































































































