Quiet cul-de-sac location close to schools and the North Norfolk coast.
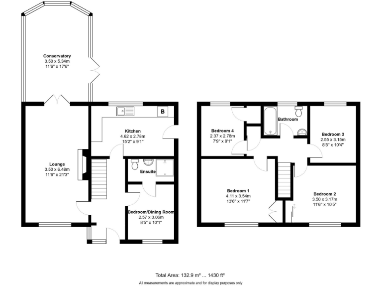
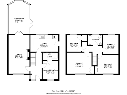
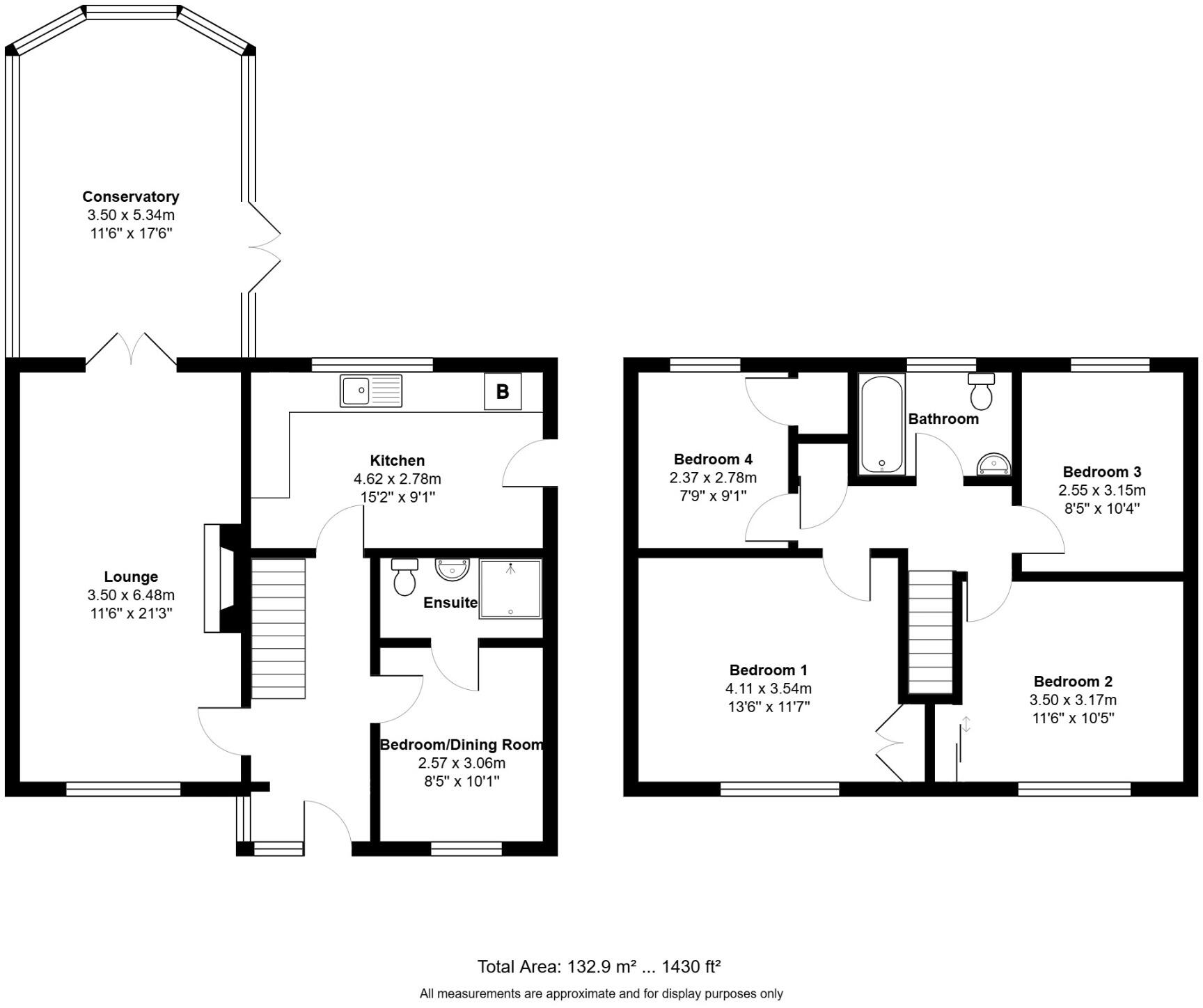
Detached four-bedroom house with flexible 4/5 bedroom layout and ensuite shower room
Conservatory opening onto a lawned rear garden, good for dining and play
Off-street parking and tethered EV charger included
Gas central heating and double glazing installed after 2002
Chain-free freehold with a decent-sized plot
Kitchen likely needs modernisation; scope for improvement
EPC rating D and moderate council tax band D
Broadband speeds are slow — may affect home working
This detached four-bedroom home on a quiet Dersingham cul-de-sac offers comfortable, flexible living across about 1,400 sq ft. The ground floor includes a versatile room with an ensuite shower, useful for guests or multi-generational use, while the lounge leads into a bright conservatory overlooking a lawned garden — good for family life and outdoor dining.
Practical features include off-street parking, a tethered EV charger and gas central heating with double glazing installed after 2002. Upstairs there are four well-proportioned bedrooms and a family bathroom; the property’s layout supports home working, school runs and everyday family routines.
The house was built in the late 1970s/early 1980s and presents scope for updating, particularly the kitchen, which buyers may want to modernise to suit contemporary tastes. The EPC is D and broadband speeds in the area are slow — factors to consider if you work from home or prioritise energy efficiency.
Chain-free freehold sale and a decent plot size add practical value. Nearby good primary schools, local shops and the North Norfolk coast make this a convenient, village-fringe choice for growing families seeking space and future potential.
3 bedroom detached house for sale in Pakenham Drive, Dersingham, King's Lynn, Norfolk, PE31 — £340,000 • 3 bed • 1 bath • 773 ft²
3 bedroom semi-detached house for sale in Station Road, Dersingham, PE31 — £325,000 • 3 bed • 2 bath • 917 ft²
3 bedroom detached house for sale in Kings Croft, Dersingham, King's Lynn, Norfolk, PE31 — £300,000 • 3 bed • 1 bath • 1119 ft²
3 bedroom detached house for sale in Hipkin Road, Dersingham, PE31 — £310,000 • 3 bed • 1 bath • 764 ft²
3 bedroom detached house for sale in Lynn Road, Dersingham, PE31 — £425,000 • 3 bed • 2 bath • 1338 ft²
4 bedroom semi-detached house for sale in White Horse Drive, Dersingham, PE31 — £325,000 • 4 bed • 2 bath • 1709 ft²






































































