**Standout Features:**
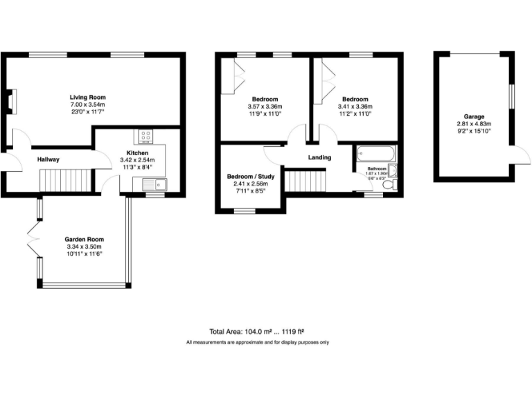
- Neatly presented detached house in a sought-after village location
- Three comfortable bedrooms, plus a versatile study/bedroom
- Bright, spacious garden room with French doors opening onto a sunny patio
- Generous, mature plot with a beautifully established garden
- Detached garage and ample off-street parking on a spacious driveway
- Quiet cul-de-sac position, walking distance to local amenities and bus services
- Close proximity to the stunning North Norfolk coastline and Sandringham Estate
This charming three-bedroom detached house offers a flexible and inviting layout ideal for families and those working from home. The light-filled garden room invites you to relax or entertain, while the well-appointed lounge provides a cozy gathering spot. The sizable, mature garden is perfect for outdoor activities, featuring a sun-trap patio and established greenery, making it a true retreat for nature lovers.
Located in the peaceful village of Dersingham, you’ll enjoy convenient access to local amenities, quality schools, and quick links to beautiful coastal landscapes. Although the property is generally in good condition, it presents an opportunity for personal touches or enhancements, particularly the detached garage, which has the potential for conversion to suit your needs (subject to planning permission).
With an affordable council tax band and excellent mobile signal, this home is not just a property – it’s a lifestyle choice in a friendly community. Opportunities like this are rare – seize the chance to make it your own today!
3 bedroom detached house for sale in Pakenham Drive, Dersingham, King's Lynn, Norfolk, PE31 — £340,000 • 3 bed • 1 bath • 773 ft²
3 bedroom detached house for sale in Lynn Road, Dersingham, PE31 — £425,000 • 3 bed • 2 bath • 1338 ft²
3 bedroom detached house for sale in Duck Decoy Close, Dersingham, King's Lynn, Norfolk, PE31 — £315,000 • 3 bed • 1 bath • 928 ft²
3 bedroom detached house for sale in Saxon Way, Dersingham, PE31 — £335,000 • 3 bed • 2 bath • 688 ft²
3 bedroom detached house for sale in Hipkin Road, Dersingham, PE31 — £310,000 • 3 bed • 1 bath • 865 ft²
4 bedroom detached house for sale in St. Nicholas Close, Dersingham, PE31 — £425,000 • 4 bed • 2 bath • 1644 ft²














































































