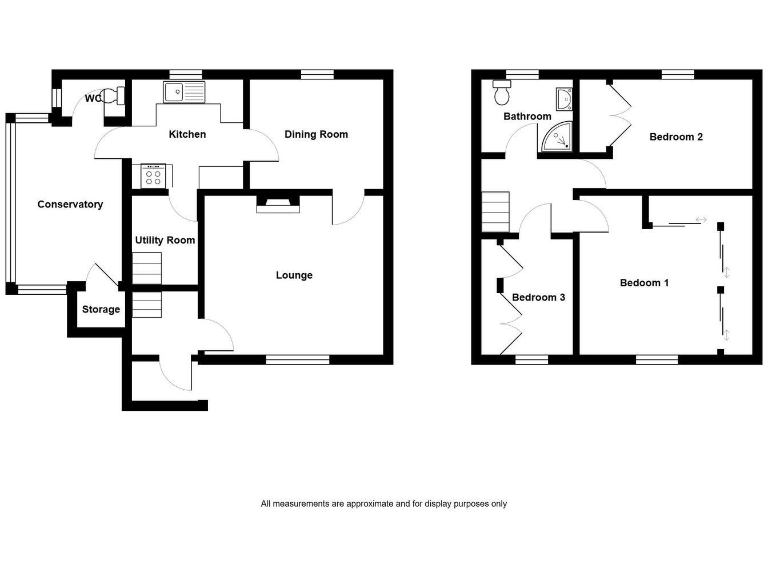
**Standout Features:**
- Three-bedroom semi-detached house on a corner plot
- Extensive garden with potential for development (subject to planning permission)
- Off-road parking for 2-3 vehicles
- Economical Economy 7 heating and double glazing
- Conservatory adding extra living space
- Chain-free and freehold tenure
- Council Tax Band A, attractive low-cost living
**Summary:**
Discover a charming three-bedroom semi-detached home nestled in the village of Gwaun Cae Gurwen, perfect for families, investors, or gardening enthusiasts. This property boasts an expansive garden, offering ample room for outdoor activities or the potential for additional development (subject to planning permission). Inside, enjoy the comfort of Economy 7 heating, a bright conservatory, and double glazing throughout, ensuring a cozy environment year-round.
The practical layout includes a first-floor bathroom, a ground-floor WC, and essential living spaces that provide a canvas for customization. While the property requires some maintenance and the garden could benefit from revitalization, the structure itself is solid and presents an excellent opportunity for those with a vision. Convenient off-road parking, combined with the low Council Tax and vibrant local amenities, enhances this home's appeal, meeting the needs of both renters and first-time buyers looking for an affordable entry point into property ownership. Don’t miss out on this unique chance to own a slice of countryside living with versatile potential—schedule a viewing today!
3 bedroom semi-detached house for sale in Crescent Road, Gwaun Cae Gurwen, SA18 — £169,950 • 3 bed • 1 bath • 685 ft²
3 bedroom semi-detached house for sale in Leyshon Road, Gwaun Cae Gurwen, SA18 — £164,950 • 3 bed • 1 bath • 950 ft²
2 bedroom semi-detached house for sale in Derwydd Avenue, Gwaun Cae Gurwen, SA18 1PG, SA18 — £115,000 • 2 bed • 1 bath • 808 ft²
3 bedroom detached house for sale in Twynrefail Place, Gwaun Cae Gurwen, Ammanford, SA18 1HY, SA18 — £240,000 • 3 bed • 1 bath • 2939 ft²
3 bedroom end of terrace house for sale in Heol Cae Gurwen, Gwaun Cae Gurwen, Ammanford, SA18 — £167,950 • 3 bed • 1 bath • 1322 ft²
3 bedroom semi-detached house for sale in Maesybont, Glanamman, Ammanford, SA18 — £165,000 • 3 bed • 1 bath • 786 ft²






































































































