EN5 3LY - 5 bedroom detached house for sale in Meadowbanks, Arkley, E…

View on Property Piper

5 bedroom detached house for sale in Meadowbanks, Arkley, EN5

Summary - 7 MEADOWBANKS BARNET EN5 3LY

5 bed 4 bath Detached

**Standout Features:**
- Spacious detached Neo-Georgian home with 5 bedrooms and 4 bathrooms
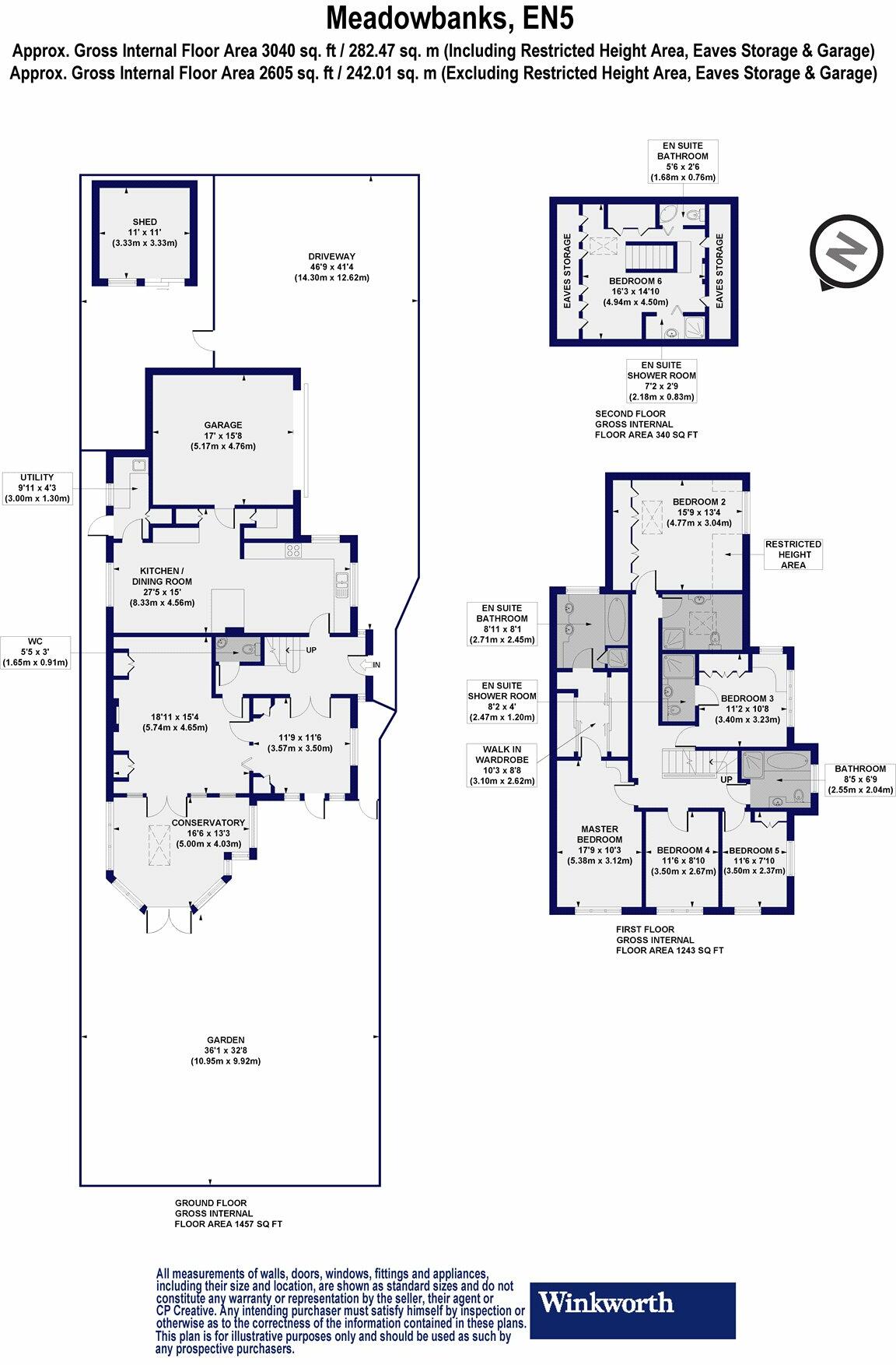
- Expansive living space: 3,040 sq. ft. (282.47 sq.m)
- Modern open-plan kitchen and multiple reception rooms
- Master suite with walk-in wardrobe and en-suite bathroom
- Additional top-floor loft room with en-suite could serve as a sixth bedroom
- Generous garden, double garage, and off-street parking
- Located in a quiet cul-de-sac with excellent transport links and schools nearby

This impressive detached five-bedroom family home is nestled in a serene cul-de-sac, offering a remarkable 3,040 sq. ft. of living space. Perfect for families, the property boasts a modern open-plan kitchen that flows seamlessly into spacious reception areas, including a charming conservatory filled with natural light. The master suite features a luxurious walk-in wardrobe and en-suite, complemented by four additional bedrooms, two of which benefit from en-suites, along with two separate bathrooms, ensuring comfort and privacy for all.

While the property is in good condition and presents excellent potential for personalization, enhance your living experience further with beautiful outdoor space in the rear garden. Parking includes a double garage and additional off-street availability. With A1M and M25 motorways close by, along with overground and tube connections, daily commuting is a breeze. Surrounding amenities include a variety of recreational facilities and highly regarded schools, making this home an ideal investment for families or those seeking a tranquil abode with future renovation possibilities. Don't miss the opportunity to secure this exclusive property!

Property Details

Image Descriptions

Floorplan Description

Rooms

Textual Property Features

Detected Visual Features

EPC Details

Nearby Schools

Nearest Bars And Restaurants

,,,,}

Nearest General Shops

,,}

Nearest Grocery shops

,,}

Nearest Supermarkets

,,}

Nearest Religious buildings

,,}

Nearest Medical buildings

,,,}

Nearest Airports

,}

Nearest Leisure Facilities

,,,,}

Nearest Tourist attractions

,,}

Nearest Train stations

,,,,}

Nearest Bus stations and stops

,,,,}

Nearest Hotels

,,}

Tags

Local Market Stats

Similar Properties

Meta

High Res Images

Compatible Images

Low res Images

Thumbnails

Raw Images

High Res Floorplan Images

Compatible Floorplan Images

Low res Floorplan Images

FloorplanImages Thumbnail

Raw Floorplan Images