Calm low-maintenance home close to shops, medical services and countryside.
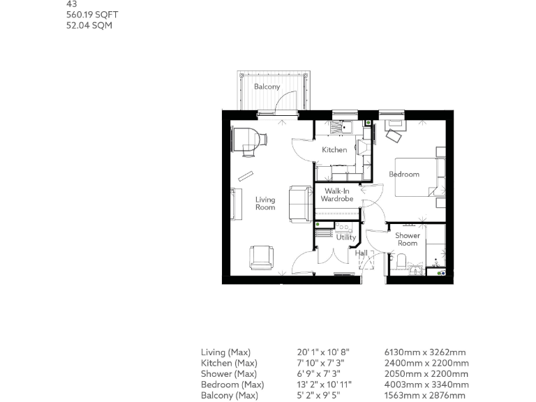
Second-floor one-bedroom retirement apartment with private balcony
Apartment 43 is a modern one-bedroom retirement apartment on the second floor of a 2022-built development, offering low-maintenance living with practical accessibility. The living room opens to a private balcony that overlooks landscaped communal gardens, and the bedroom includes a generous walk-in wardrobe for organised storage. Heating is electric with room heaters; the property benefits from a high SAP rating (up to 86) indicating good energy performance.
Positioned tucked into a residential hub in Tadley, the location puts everyday conveniences on the doorstep: a Co-op, doctor’s surgery and pharmacy are adjacent, and the town centre is nearby. Scenic fields and woodland are within easy reach for walks, while communal parking and a calm exterior provide an orderly setting for retirement living.
This is a leasehold retirement apartment with 998 years remaining on the lease, suitable for those looking to downsize without long-term lease worries. The apartment includes a fully fitted kitchen with integrated appliances and a fully accessible shower room, which supports mobility needs; wheelchair access to the building is provided.
Buyers should note the apartment faces north, so garden and balcony light is more muted than south-facing aspects. Main heating is electric room heaters rather than central gas, which may affect running costs depending on tariff and usage. As a retirement property, there may be service charges and resident eligibility rules typical of such developments — these should be checked before purchase.
2 bedroom retirement property for sale in 46 New Road,
Tadley,
RG26 — £349,000 • 2 bed • 1 bath • 775 ft²
1 bedroom retirement property for sale in 46 New Road,
Tadley,
RG26 — £195,000 • 1 bed • 1 bath • 560 ft²
2 bedroom retirement property for sale in 46 New Road,
Tadley,
RG26 — £399,000 • 2 bed • 1 bath • 775 ft²
2 bedroom apartment for sale in New Road, Tadley, RG26 — £296,250 • 2 bed • 2 bath • 797 ft²
1 bedroom retirement property for sale in New Road, Tadley, RG26 — £260,000 • 1 bed • 1 bath • 587 ft²
1 bedroom apartment for sale in New Road, Tadley, Hampshire, RG26 — £245,000 • 1 bed • 1 bath • 558 ft²














































































































