Shared-ownership option with on-site support and landscaped garden outlook.
One-bedroom first-floor apartment with private balcony
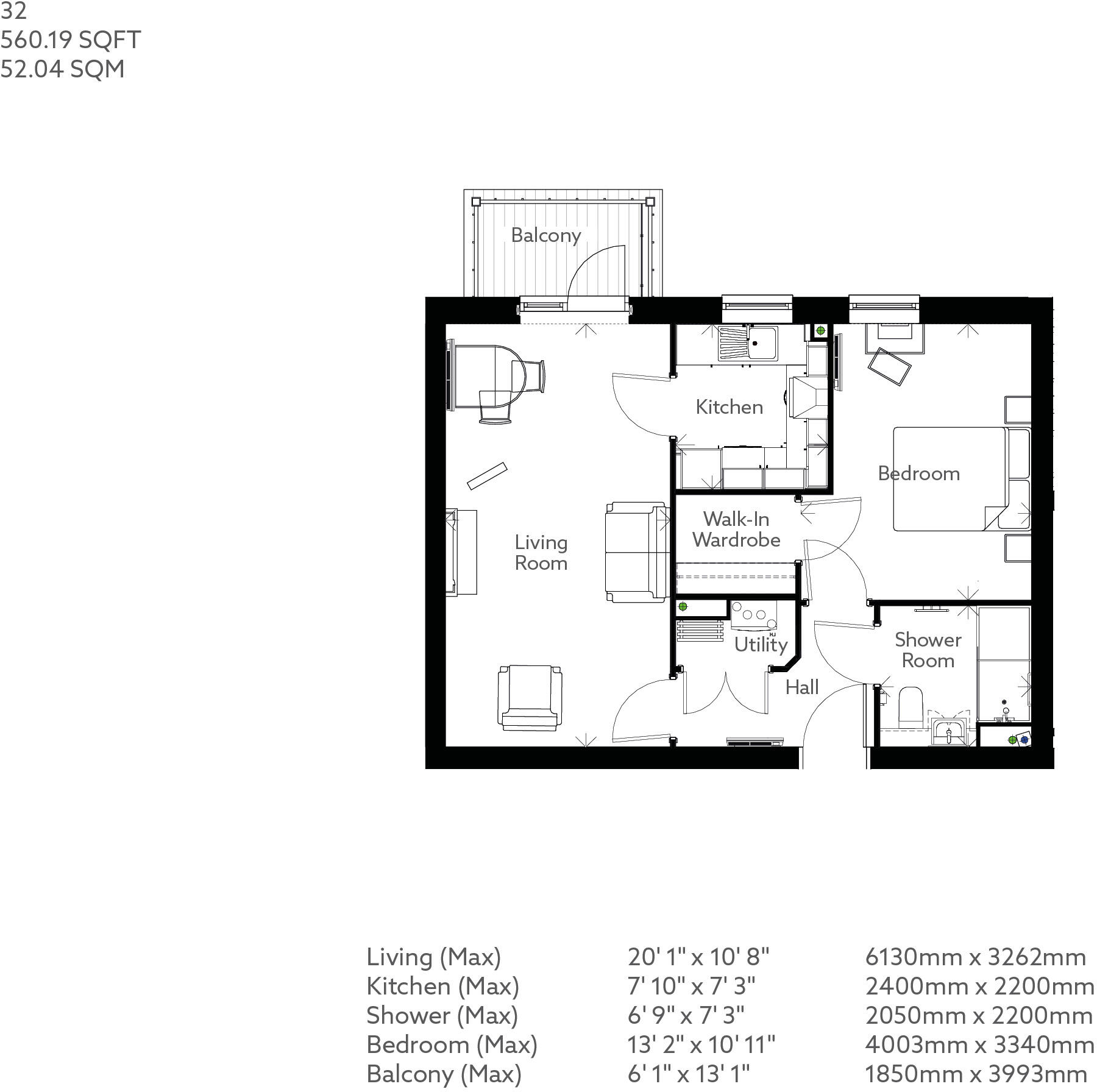
Apartment 32 at Yelland Place is a modern one-bedroom retirement apartment on the first floor, arranged in an L-shaped layout and backing onto landscaped communal gardens. The living room opens onto a private walk-out balcony, and the bedroom includes a walk-in wardrobe with fitted shelving. Shared-ownership options are available (examples: 50% share £130,000 with £298pcm charge; 75% share £195,000 full purchase example). A House Manager attends around 25 hours per week and a 24/7 emergency call system covers all apartments.
The build is recent (constructed 2022) with up-to-date finishes: integrated kitchen appliances, a fully accessible shower room and bright natural decor throughout. The property has wheelchair access and allows pets, and sits close to local amenities: a convenience store, Co-op, doctor’s surgery and pharmacy are immediately nearby, and Tadley town centre is within easy reach.
Practical considerations: this is a leasehold retirement property with a long lease (989 years) and a below-average monthly service charge of £298. Heating is by electric room heaters, which can be more costly than gas alternatives. The balcony faces north, so it receives limited direct sun. Council tax band and some communal service details are not specified in the listing.
Overall, the apartment suits someone seeking low-maintenance retirement living close to local services, with communal support, secure emergency systems and the flexibility of shared-ownership if preferred. Buyers should factor in electric heating costs and the leasehold/shared-ownership structure when assessing affordability.
 1 bedroom retirement property for sale in 46 New Road,
Tadley,
RG26 — £245,000 • 1 bed • 1 bath • 560 ft²
 1 bedroom retirement property for sale in 46 New Road,
Tadley,
RG26 — £245,000 • 1 bed • 1 bath • 560 ft² 2 bedroom retirement property for sale in 46 New Road,
Tadley,
RG26 — £349,000 • 2 bed • 1 bath • 775 ft²
 2 bedroom retirement property for sale in 46 New Road,
Tadley,
RG26 — £349,000 • 2 bed • 1 bath • 775 ft² 2 bedroom retirement property for sale in 46 New Road,
Tadley,
RG26 — £399,000 • 2 bed • 1 bath • 775 ft²
 2 bedroom retirement property for sale in 46 New Road,
Tadley,
RG26 — £399,000 • 2 bed • 1 bath • 775 ft² 2 bedroom apartment for sale in New Road, Tadley, RG26 — £296,250 • 2 bed • 2 bath • 797 ft²
 2 bedroom apartment for sale in New Road, Tadley, RG26 — £296,250 • 2 bed • 2 bath • 797 ft² 1 bedroom apartment for sale in New Road, Tadley, Hampshire, RG26 — £245,000 • 1 bed • 1 bath • 558 ft²
 1 bedroom apartment for sale in New Road, Tadley, Hampshire, RG26 — £245,000 • 1 bed • 1 bath • 558 ft² 1 bedroom apartment for sale in New Road, Tadley, Hampshire, RG26 — £130,000 • 1 bed • 1 bath • 558 ft²
 1 bedroom apartment for sale in New Road, Tadley, Hampshire, RG26 — £130,000 • 1 bed • 1 bath • 558 ft²














































































































