Ready-fitted medical office with excellent parking and city access.
Period Victorian three-storey building with substantial internal footprint
Extensively fitted for medical/clinical use with specialist fixtures
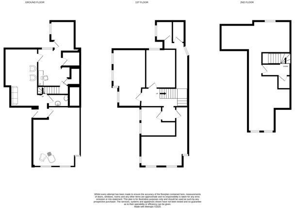
Ground-floor reception, staff room, large front treatment area, accessible WC
Four treatment rooms on first floor; separate ladies and gents WCs
Second floor staff/storage area, kitchenette; small basement storage
Up to nine off-street car spaces on tarmac hardstanding
No private garden; outdoor space limited to parking and paved areas
Specialist fittings may require removal for alternative uses or conversion
A handsome Victorian period building on Unthank Road, presented as a large Class E office extensively fitted for medical use. The property offers a functional layout across ground, first and second floors with dedicated reception, multiple treatment/consulting rooms, staff areas and a small basement — ideal for continuing clinical operations or straightforward office occupation.
Practical strengths include comprehensive medical-grade fixtures: vinyl safety flooring, dado trunking, suspended ceilings with recessed strip lighting, extensive air-conditioning and backup radiator heating. The site benefits from a prominent corner position and hardstanding providing up to nine off-street car spaces — a rare find so close to the city centre and local retail parade.
The building is freehold and in generally good condition for its fitted use, but it is specialist in layout and finishes. Prospective buyers should note the interior will require customization if converting to non-clinical uses; suspended ceilings and clinical fittings may need removal or adaptation. There is no private garden and outdoor space is limited to parking and small paved areas.
This property suits purchasers seeking a ready-to-run medical/clinical practice, an owner-occupier office needing ample parking, or an investor targeting long-term commercial rental. Its city-centre approach, excellent local amenities and strong connectivity add to its appeal, while conversion or repurposing costs should be factored into acquisition budgets.
Office for sale in Spire House, 13-15 Cathedral Street, Norwich, Norfolk, NR1 — £390,000 • 1 bed • 1 bath • 2573 ft²
Office for sale in St Clements House, Colegate, Norwich, Norfolk, NR3 — POA • 1 bed • 1 bath • 7706 ft²
Office for sale in 14 Prince of Wales Road, Norwich, Norfolk, NR1 1LB, NR1 — £259,995 • 1 bed • 1 bath • 2113 ft²
Office for sale in 46 Rose Lane, Norwich, NR1 1PN, NR1 — POA • 1 bed • 1 bath • 3574 ft²
Commercial property for sale in Caister Road, Great Yarmouth, NR30 — £700,000 • 1 bed • 4 bath • 4396 ft²
High street retail property for sale in 105A Waddington Street, Norwich, Norfolk, NR2 4JX, NR2 — £69,500 • 1 bed • 1 bath






















