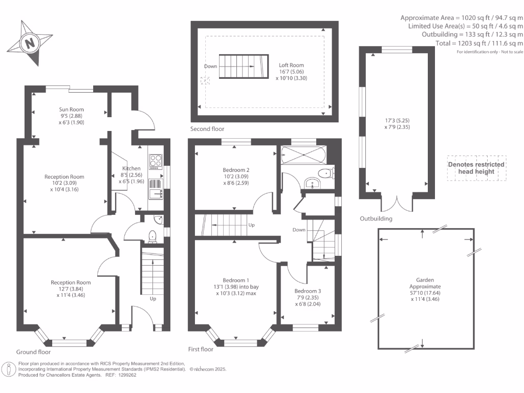
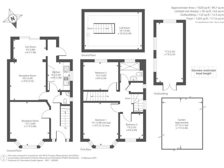
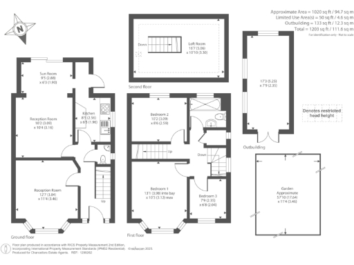
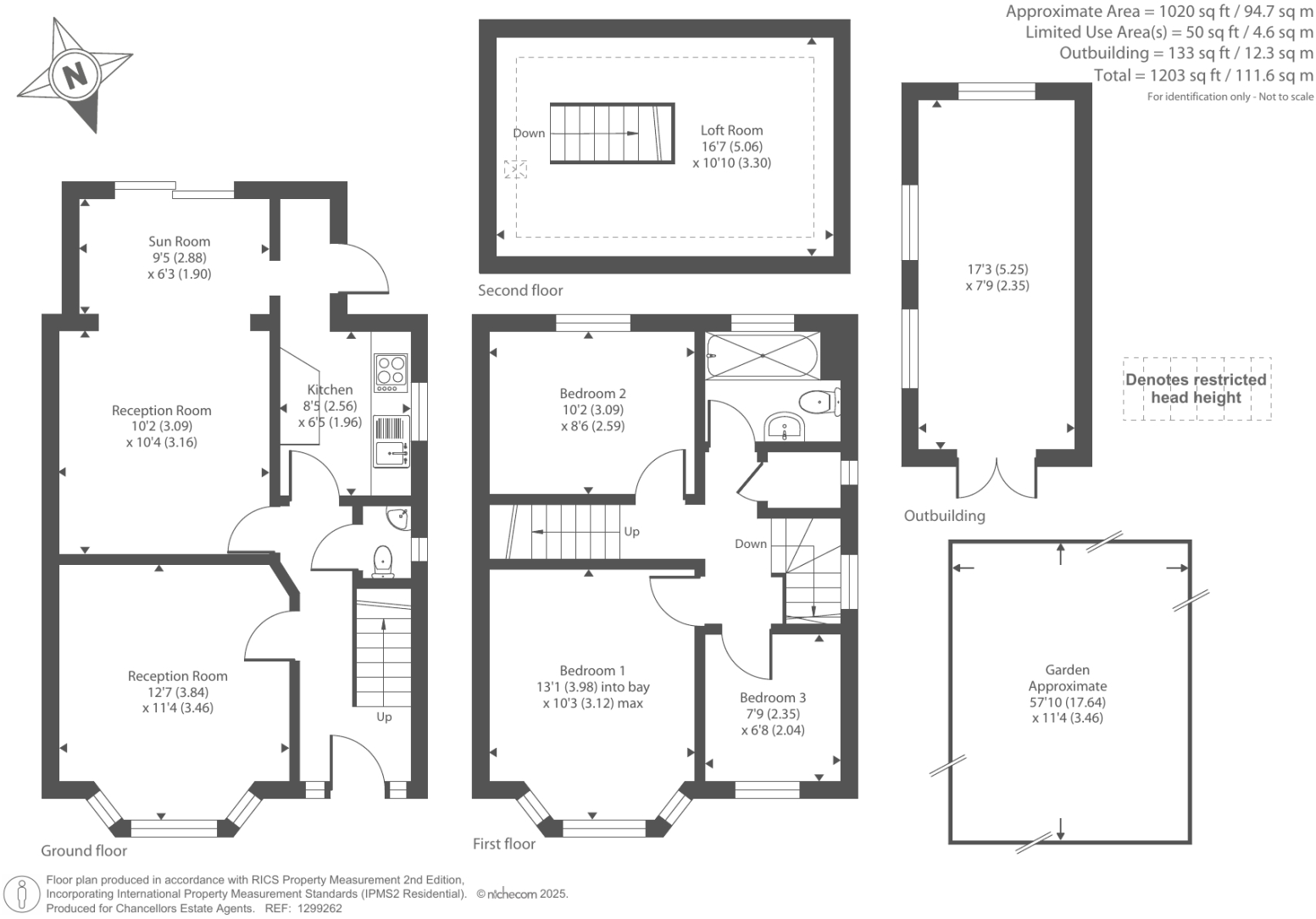
**Standout Features:**
- Extended three-bedroom semi-detached house
- Loft room with potential for further development
- Driveway parking and mature rear garden
- Bright living room with sliding glass doors
- Located just 0.4 miles from Lye Valley Nature Reserve
- Access to several schools with 'Good' Ofsted ratings
**Potential Concerns:**
- Solid brick walls assumed to have no insulation
- Average-sized rooms with standard ceiling height
Discover this beautifully presented three-bedroom semi-detached home, perfect for families or professionals looking for a blend of urban convenience and nature's tranquility. Enjoy a spacious living area bathed in natural light, complemented by a versatile loft room ideal for a home office or additional storage. The property features a driveway for off-street parking and a mature garden, ideal for outdoor activities and family gatherings.
Located on a quiet road in Headington, this home is a mere 0.4 miles from the scenic Lye Valley Nature Reserve, offering an escape into nature right on your doorstep. You’ll also appreciate the immediate access to a variety of schools rated 'Good' by Ofsted, making it an ideal setting for family life.
While the property has solid brick walls that are likely to lack insulation, its overall condition is well-maintained and move-in ready. With fast broadband and excellent mobile signal, work-from-home possibilities are promising. Don’t miss the chance to secure this charming home – opportunities like this in such a desirable neighborhood are rare, so act quickly!
3 bedroom semi-detached house for sale in Lye Valley, Oxford, OX3 — £500,000 • 3 bed • 1 bath • 1088 ft²
3 bedroom semi-detached house for sale in Lye Valley, Oxford, OX3 — £475,000 • 3 bed • 1 bath • 894 ft²
4 bedroom semi-detached house for sale in Lye Valley, Headington, Oxford, OX3 — £600,000 • 4 bed • 2 bath • 1221 ft²
3 bedroom semi-detached house for sale in Benson Road, Headington, OX3 — £460,000 • 3 bed • 3 bath • 1089 ft²
4 bedroom semi-detached house for sale in Delbush Avenue, Headington, OX3 — £625,000 • 4 bed • 2 bath • 1425 ft²
3 bedroom semi-detached house for sale in Benson Road, Headington, Oxford, OX3 — £450,000 • 3 bed • 1 bath • 926 ft²














































































