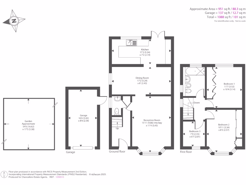
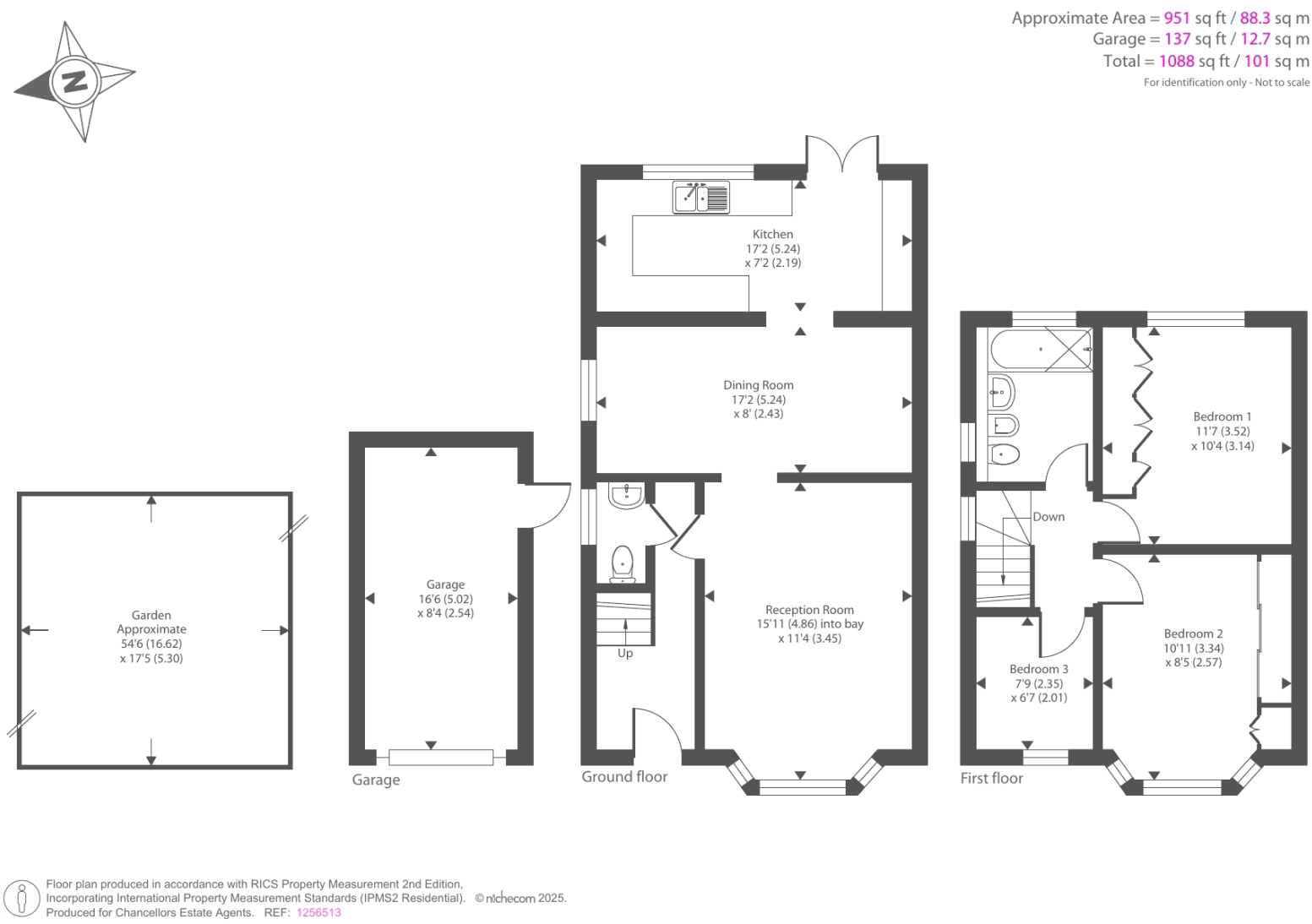
### Standout Features:
- **Three spacious bedrooms** with built-in wardrobes
- **Two reception rooms** including a traditional living area with a charming bay window
- **Private rear garden** plus additional versatile land at the front
- **Single garage** with power and driveway parking
- Conveniently located near **Lye Valley Nature Reserve** and Oxford Golf Club
### Potential Concerns:
- Property is described as needing **modernization**
- Original 1930s structure with **solid brick walls** lacking insulation
Explore the potential of this appealing semi-detached family home located on a tranquil side road in Headington. Spanning 1,088 sq. ft., the property features a welcoming entrance hall leading to two bright reception rooms, perfect for family gatherings or entertaining guests. The charming period details and spacious layout provide a comfortable living space, while the private rear garden is an excellent spot for children or pets to play securely.
Nestled adjacent to the scenic Lye Valley Nature Reserve, this property offers not only a peaceful atmosphere but also additional versatile land at the front that could be utilized for a garden, patio, or other projects, making it ideal for creative buyers or families looking to expand their outdoor space. The excellent local schools, including several Ofsted-rated 'Good' institutions, enhance its appeal to families.
With driveway parking and a garage for added convenience, this home combines comfort with functionality. Priced at £500,000, it presents a unique opportunity for first-time buyers or families seeking a residence in this desirable, culturally rich urban area. Don't miss out on the chance to make this property your own and explore its renovation potential to suit your family's needs!
3 bedroom semi-detached house for sale in Lye Valley, Oxford, OX3 — £475,000 • 3 bed • 1 bath • 894 ft²
3 bedroom semi-detached house for sale in Lye Valley, Oxford, OX3 — £480,000 • 3 bed • 1 bath • 1153 ft²
3 bedroom semi-detached house for sale in Titup Hall Drive, Oxford, OX3 — £400,000 • 3 bed • 1 bath • 1006 ft²
4 bedroom semi-detached house for sale in The Slade, Headington, Oxford, OX3 — £625,000 • 4 bed • 2 bath • 1388 ft²
3 bedroom semi-detached house for sale in Margaret Road, Headington, OX3 — £650,000 • 3 bed • 1 bath • 694 ft²
5 bedroom semi-detached house for sale in London Road, Headington, Oxford, OX3 — £625,000 • 5 bed • 1 bath • 1401 ft²










































































