Spacious five-bed maisonette near Elizabeth Line — compact rooms, strong transport links..
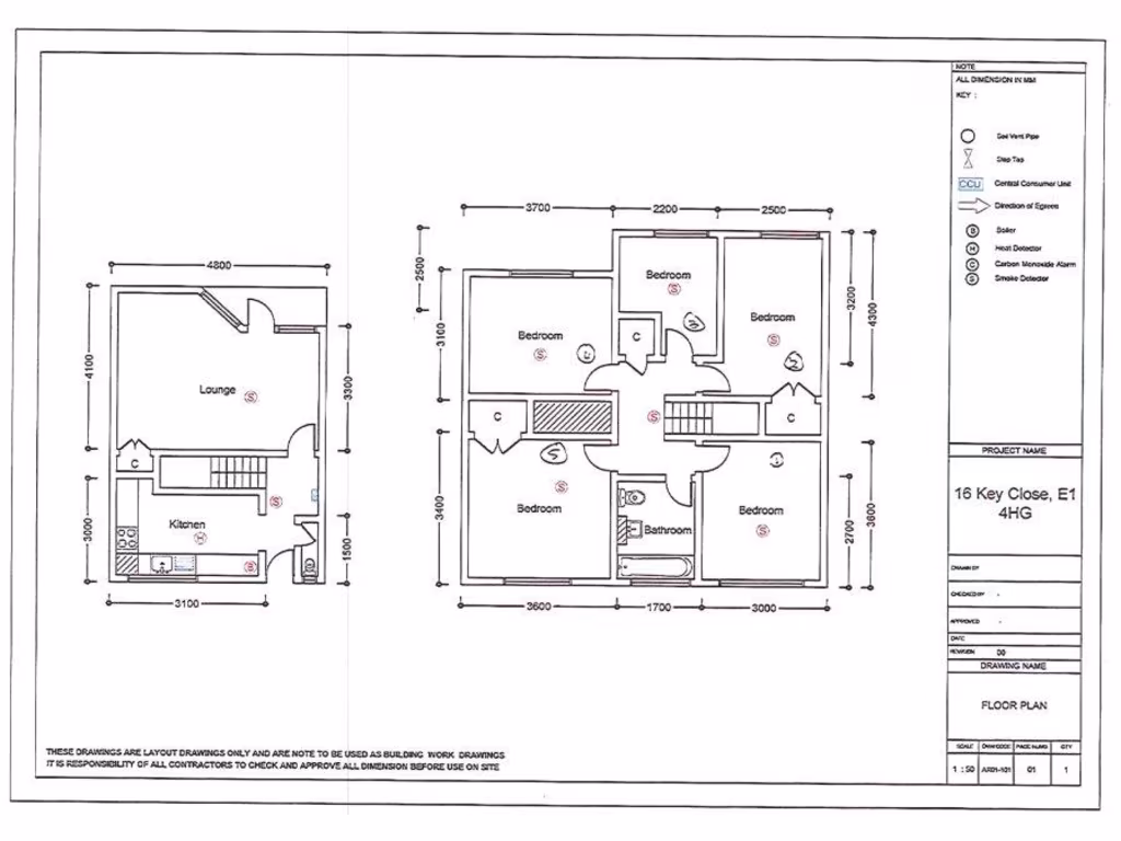
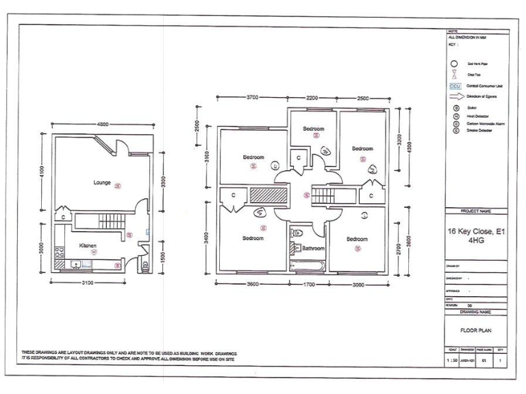
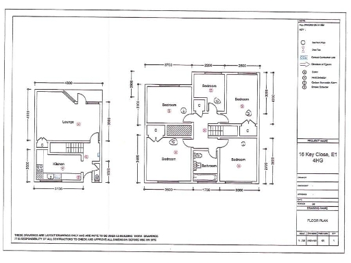
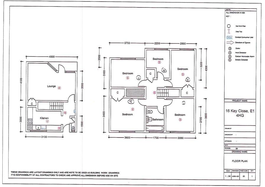
5 bedrooms across two floors, efficient 816 sq ft layout
Only one full bathroom plus an additional WC for five bedrooms
Leasehold property in a mid-century block with communal access
Compact room sizes; some modernization likely required
Excellent transport links: Elizabeth Line, Overground, multiple buses
High local crime and very high area deprivation — consider safety/insurance
Strong nearby amenities and several Good to Outstanding schools
No flooding risk; mobile signal excellent and broadband fast
This five-bedroom maisonette on Key Close, E1 sits over two floors and makes efficient use of its 816 sq ft. Large windows and a private entrance bring light to the reception and bedrooms, while a separate kitchen and ample built-in storage add everyday practicality. The layout suits a larger household or an investor seeking multi-occupancy rental potential, though room sizes are compact.
Practical drawbacks are clear and should be factored into any purchase decision. The property has only one full bathroom plus an additional WC for five bedrooms, which will be a usability issue for families. It is leasehold and set within a mid-century block with communal access and an external stairwell; the building’s communal maintenance and lease terms should be checked. The local area records high crime and very high deprivation, which may affect family choice and rental yields.
Location is a strong asset: immediate access to Whitechapel and Bethnal Green, the Elizabeth Line, Overground and frequent buses, plus nearby parks, shops and a wide range of amenities. Good local schools include several state primaries rated Good and a top-performing secondary, making the location practical for school runs. For investors, the combination of multiple bedrooms, central location and excellent transport links supports strong tenancy demand, albeit tempered by local area challenges.
Overall this maisonette offers practical central London living with upside for those willing to manage the building lease, update interiors, and accept limited communal environment. It will suit growing families who prioritise location and school access, or landlords targeting shared-house rentals in East London.
4 bedroom flat for sale in Sutton Street, Shadwell, London, E1 — £585,000 • 4 bed • 2 bath • 1151 ft²
2 bedroom flat for sale in Coopers Close, London, E1 — £450,000 • 2 bed • 1 bath • 795 ft²
3 bedroom maisonette for sale in Tay House, 50, St Stephens Road, E3 — £450,000 • 3 bed • 1 bath • 893 ft²
3 bedroom apartment for sale in Musbury Street, London, E1 — £500,000 • 3 bed • 2 bath • 1006 ft²
3 bedroom maisonette for sale in Donegal House, Cambridge Heath Road, London, E1 — £425,000 • 3 bed • 1 bath • 840 ft²
3 bedroom maisonette for sale in Gwilym Maries House, 21 Canrobert Street, London, E2 — £600,000 • 3 bed • 1 bath • 936 ft²


































