Low-maintenance first-floor apartment with social facilities and secure support.
One double bedroom with walk-in wardrobe and Juliet balcony
Modern fitted kitchen with integrated appliances
Lift access, off-street parking and communal landscaped grounds
Lodge Manager five days a week and 24-hour Careline support
Owners’ Lounge, regular social events and guest suite available
Long lease (circa 999 years) offers secure tenure
Service charge £2,717.83pa covers ground source heating and services
Ground rent £575pa (reviewed) — factor into annual costs
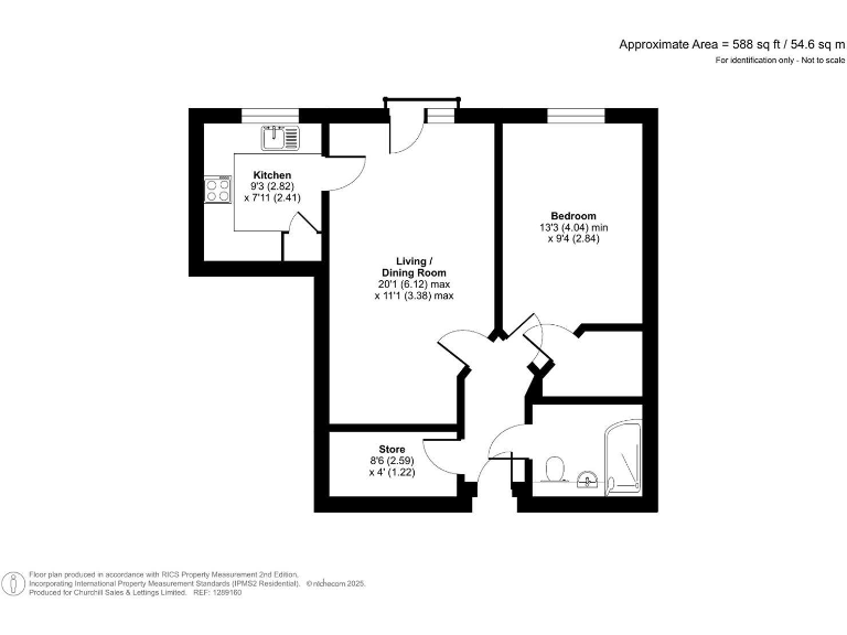
Light, secure and conveniently located, this one-bedroom first-floor retirement apartment at Trewin Lodge suits anyone seeking low-maintenance living close to Yate town centre. The living room opens to a Juliet balcony with a pleasant communal-garden outlook; a modern fitted kitchen includes integrated appliances and practical wood-effect flooring. The bedroom is a good-sized double with a walk-in wardrobe, and the shower room is fitted with accessible safety features.
Designed for peaceful retirement living, the development provides a Lodge Manager five days a week, a 24-hour Careline system, owners’ lounge with regular social events, and guest suites for visiting family. Lift access to all floors and off-street parking add everyday convenience. Ground source heating is used across the scheme, included within the service charge, and broadband and mobile signals are strong in this location.
Important practical facts: this is a leasehold apartment with a long lease (circa 999 years) and an annual service charge of about £2,717.83 that covers heating, buildings insurance, water, communal maintenance and the lodge manager. Ground rent is £575 per year, payable and reviewed as stated, and should be factored into annual running costs. The property is in a generally affluent, low-flood-risk area with good transport links to Bristol and local amenities nearby.
1 bedroom retirement property for sale in Trewin Lodge, Yate, Bristol, BS37 — £230,000 • 1 bed • 1 bath • 536 ft²
1 bedroom retirement property for sale in Concorde Lodge, Filton, Bristol, BS34 — £115,000 • 1 bed • 1 bath • 453 ft²
1 bedroom retirement property for sale in Grace Lodge, Thornbury, Bristol, BS35 — £219,995 • 1 bed • 1 bath • 615 ft²
1 bedroom retirement property for sale in Blue Cedar Close, Yate, Bristol, BS37 — £207,000 • 1 bed • 1 bath • 559 ft²
2 bedroom apartment for sale in Coopers Court, Blue Cedar Close, Yate, Bristol, BS37 4FF, BS37 — £289,950 • 2 bed • 2 bath • 883 ft²
2 bedroom retirement property for sale in Concorde Lodge, Filton, Bristol, BS34 — £170,000 • 2 bed • 1 bath • 693 ft²


























































