Comfortable low-maintenance home close to Thornbury town centre and transport links.
One double bedroom with built-in mirrored wardrobe
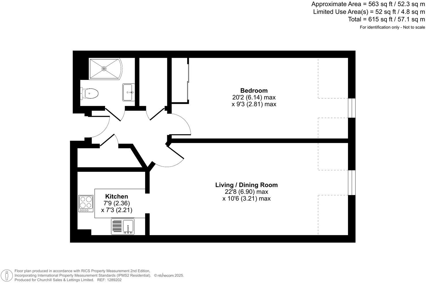
Set within Grace Lodge, this well-presented one-bedroom second-floor apartment offers a comfortable, low-maintenance home for someone looking to downsize. The living room is generous, the bedroom has built-in wardrobes and the kitchen is fully fitted with integrated appliances — ready to move into without major works.
The development is purpose-built for retirement living and prioritises safety and community. A Lodge Manager is on-site five days a week, a 24-hour Careline system operates year-round, and residents have access to an owners’ lounge with regular social events and a guest suite for visitors. Lift access, landscaped communal gardens and private off-street parking add everyday convenience.
Practical running costs and local services are important to note. The annual service charge is £3,568.80 and ground rent is £691.22 (review due March 2029). Air-source heating and many communal utilities are included in the service charge, but broadband speeds are reported slow. The property is leasehold (approx. 115 years remaining) and was built in 2015, so major structural work is unlikely in the near term.
Location is a strong selling point for those who want a town-centre lifestyle with good transport links. Thornbury’s high street, community centre and local medical centre are all close by, with regular bus services into Bristol. Be aware the local area statistics indicate higher crime and some deprivation, which may influence views on security despite the building’s comprehensive alarm and detection systems.
1 bedroom retirement property for sale in Rock Street, Thornbury, South Gloucestershire, BS35 — £229,500 • 1 bed • 1 bath • 633 ft²
1 bedroom retirement property for sale in Alexandra Lodge, Thornbury, BS35 — £279,950 • 1 bed • 1 bath • 666 ft²
1 bedroom retirement property for sale in Alexandra Lodge, Thornbury, Bristol, BS35 — £289,995 • 1 bed • 1 bath • 781 ft²
1 bedroom retirement property for sale in Concorde Lodge, Filton, Bristol, BS34 — £115,000 • 1 bed • 1 bath • 453 ft²
2 bedroom retirement property for sale in Midland Way, Thornbury, BS35 — £160,000 • 2 bed • 1 bath • 553 ft²
1 bedroom retirement property for sale in Peacock Lodge, Fishponds, Bristol, BS16 — £130,000 • 1 bed • 1 bath • 465 ft²






























































